--
市规划国土委滨海管理局关于[大鹏中心区]法定图则03-04地块调整方案公示的通告

市规划国土委滨海管理局关于[大鹏中心区]法定图则03-04地块调整方案公示的通告

来源: 滨海管理局  日期: 2016-02-27  【字号:

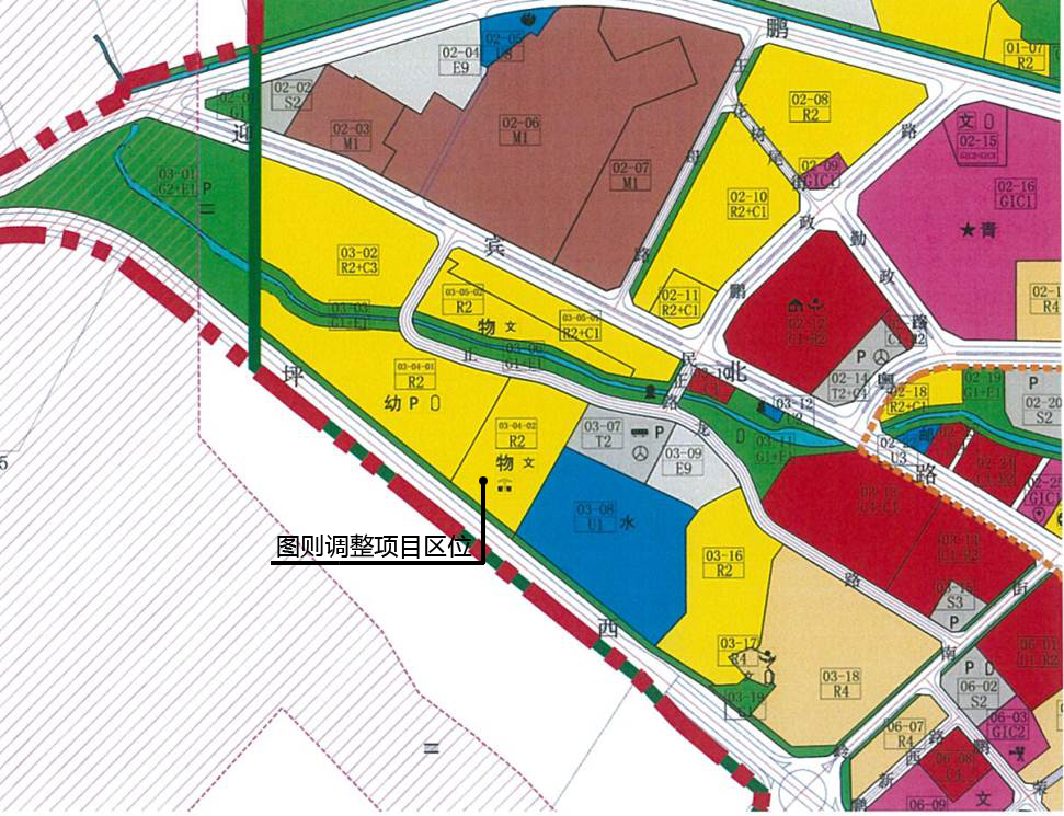
  根据大鹏新区有关工作决议,大鹏新区大鹏办事处王母社区涉及原村民未建房户漏报户,需在王母社区已批的统建楼用地中安排建设。为此,王母社区居民委员会来文申请调整该统建楼用地容积率,涉及[大鹏中心区]法定图则03-04地块规划调整。我局已受理该申请,并拟对王母社区统建楼用地涉及的[大鹏中心区]法定图则03-04地块内东侧规划容积率进行调整。根据公开、公平、公正原则,现将规划调整方案公示如下:

  一、[大鹏中心区]法定图则03-04地块原规划功能及指标:用地面积为63281平方米,规划用地性质为二类居住用地,规划容积率2.2,配建社会停车场、体育活动场地及幼儿园(9班)。

  二、03-04地块调整后的规划功能及指标:03-04地块划分为东西两块:西侧03-04-01地块用地面积为39332.93平方米,规划用地性质二类居住用地,规划容积率2.2,配套设施为社会停车场、社区体育活动场地、幼儿园(9班);东侧03-04-02地块(即本次申请调整的王母社区统建楼用地)用地面积23948.07平方米,规划用地性质二类居住用地,规划容积率3.0,配套设施为文化活动室、物业服务用房、垃圾收集站,社区老年人日间照料中心。

  三、本通告公示期30天(2016年2月27日至2016年3月27日)。如对上述规划调整方案有意见或建议,请在公示期内使用真实姓名及联系方式以书面形式反馈至深圳市规划和国土资源委员会滨海管理局(地址:盐田区海景路10号,邮编:518081)。公示期满无异议,我局将按规定办理相关手续。本通告自发布之日起,将同时在以下网站和地点发布。

  网站:深圳市规划和国土资源委员会(http://www.szpl.gov.cn/)

  地点:1.深圳市规划和国土资源委员会滨海管理局一楼大厅

     2.项目用地现场

  深圳市规划和国土资源委员会滨海管理局

  2016年2月27日

  (联系人:张工,电话:25355975,传真:25356213)

03-04公示图纸.jpg


分享到: