--
深圳市规划和自然资源局

深圳市规划和自然资源局龙岗管理局关于宝德云谷大厦项目总平面修改事宜的公示

来源: 深圳市规划和自然资源局  日期: 2022-06-02  【字号:

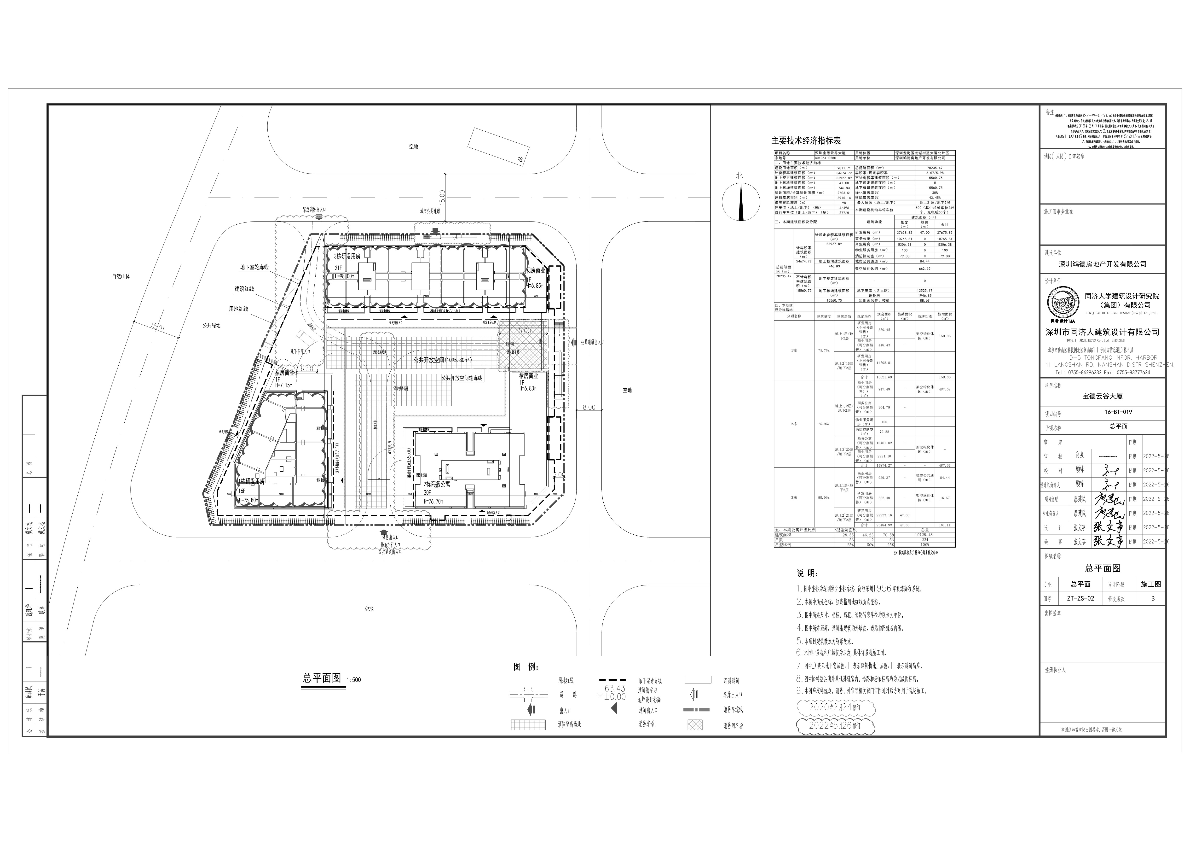
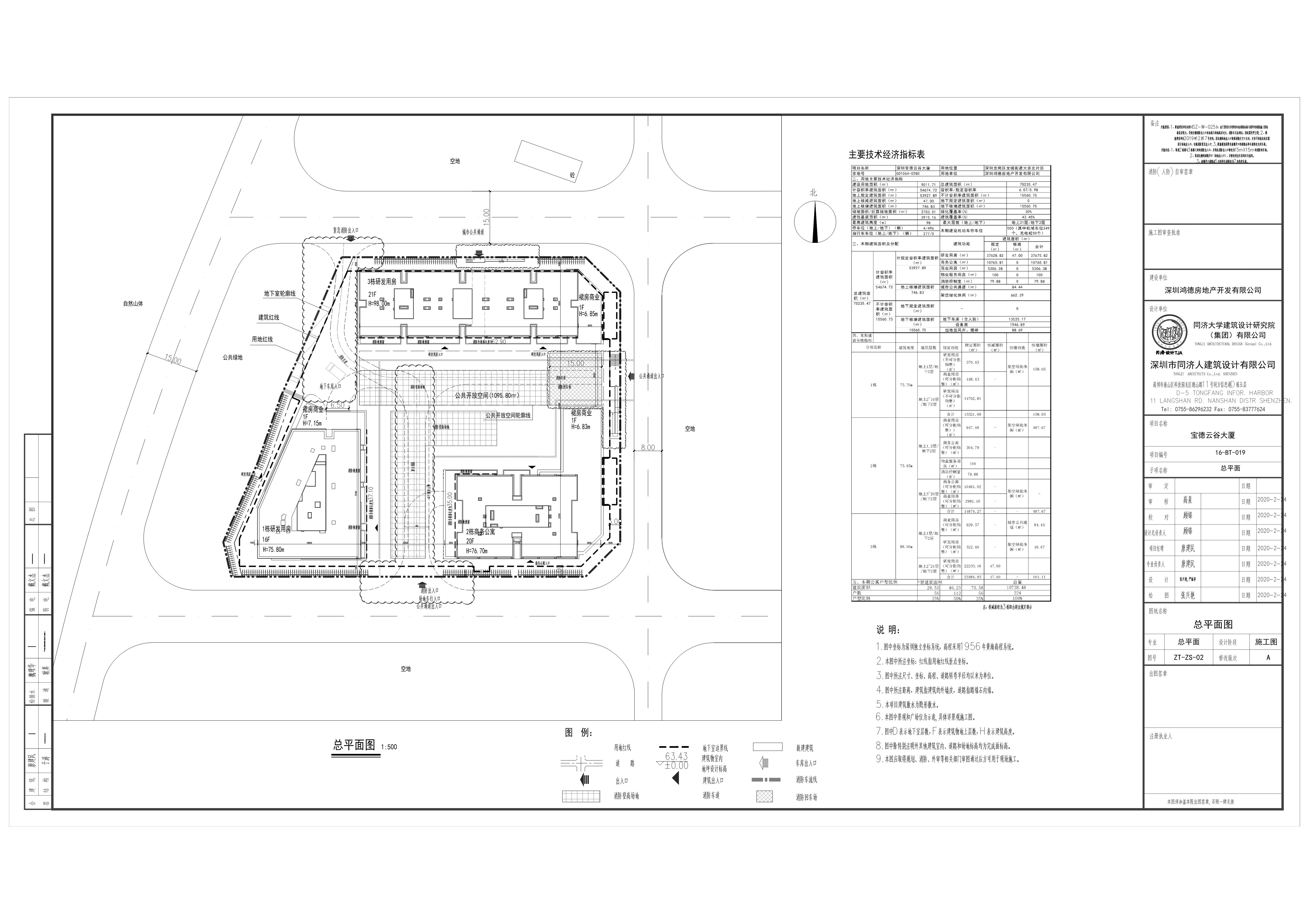
  深圳鸿德房地产开发有限公司申请办理宝德云谷大厦项目施工图修改,宝德云谷大厦项目位于龙城街道G01064-0280号宗地,于2017年4月18日取得《建设工程规划许可证》(深规划资源建许字LG-2017-0018号)。本次施工图修改内容涉及总平面修改,主要内容为(详情如附图云线所示):

  1号楼、3号楼屋面增加水平连梁。

  本次修改内容满足《建设工程规划许可证》(深规划资源建许字LG-2017-0018号)及《土地使用权出让合同书》(深地合字(2016)2020号)要求。

  现根据《中华人民共和国城乡规划法》相关规定予以公示,公示期为10个工作日(2022年6月2日至2022年6月16日),自发布之日起在项目现场(地址:深圳市龙岗区龙城街道盐龙大道辅道园区宝德云谷大厦)、深圳市规划和自然资源局门户网站(http://pnr.sz.gov.cn/)及深圳市规划和自然资源局龙岗管理局一楼大厅(地址:龙岗区中心城行政路2号)同时公示。公示期间,如对该项目上述变更内容有异议,请使用真实姓名及有效联系方式通过书面形式与深圳市规划和自然资源局龙岗管理局联系,公示期满无异议,将按规定办理相关手续。

  特此公示。

  附件:1.修改前总平面图

  2.修改后总平面图

  联系人:周工,电话:(0755)28916910

深圳市规划和自然资源局龙岗管理局

2022年6月2日

修改前总平面图.jpg
修改后总平面图.jpg


分享到: