--
深圳市规划和自然资源局

深圳市规划和自然资源局福田管理局关于公布福田区新皇岗口岸综合业务楼总平面图的通告

来源: 深圳市规划和自然资源局  日期: 2021-12-30  【字号:

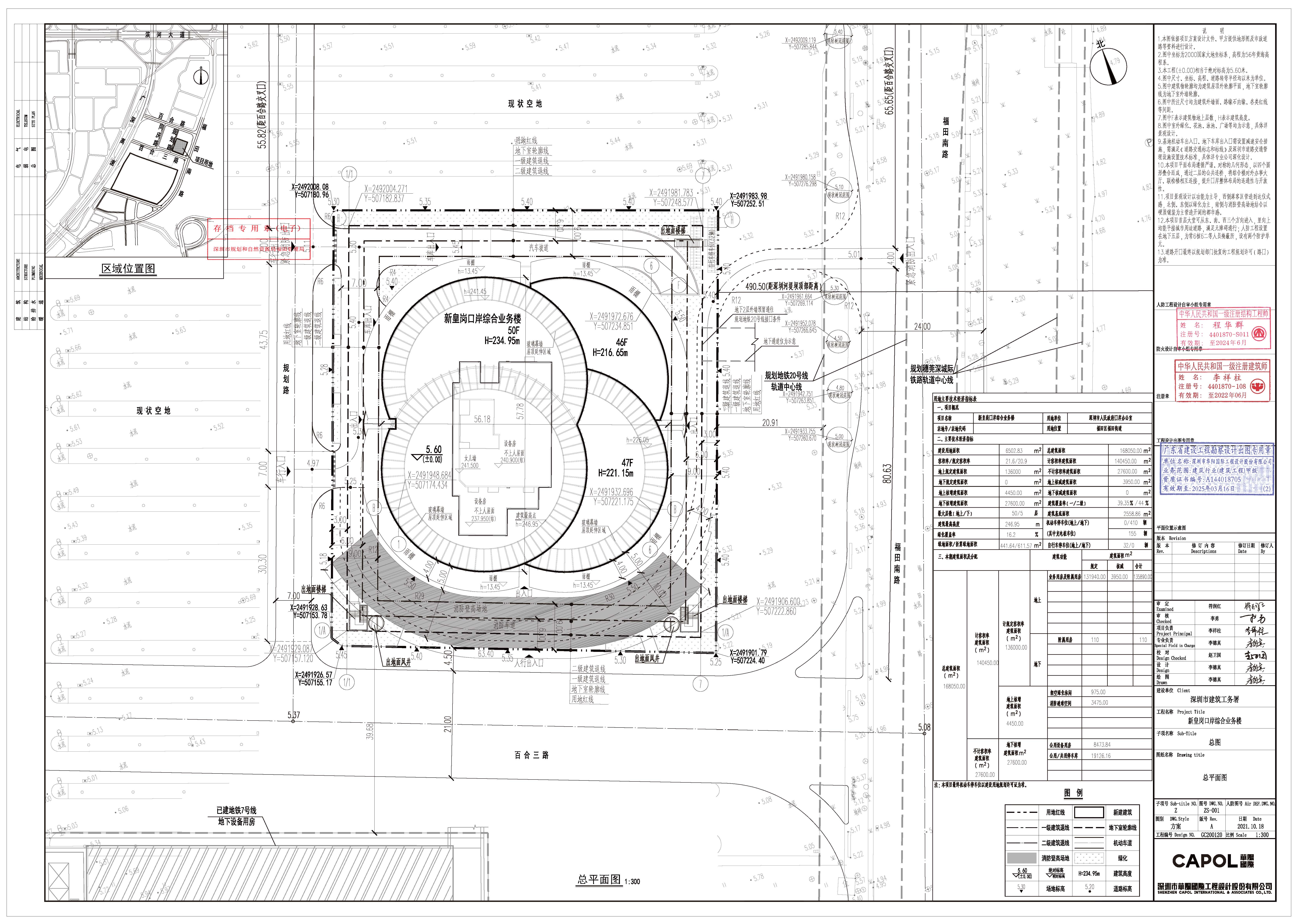
  福田区新皇岗口岸综合业务楼项目位于福田街道福田南路与百合三路交汇处。项目用地面积6502.83平方米,于2021年12月22日取得《深圳市建设工程规划许可证》(深规划资源建许字FT-2021-0080号)。依据《中华人民共和国城乡规划法》相关规定,现对福田区新皇岗口岸综合业务楼项目总平面图予以公布。

  附件:项目总平面图

深圳市规划和自然资源局福田管理局

2021年12月30日


附件:项目总平面图.jpg


分享到: