--
深圳市规划和自然资源局

市规划和自然资源局坪山管理局关于安培龙智能传感器产业园项目(G13113-8025号宗地)总平面图的通告

来源: 深圳市规划和自然资源局  日期: 2021-09-26  【字号:

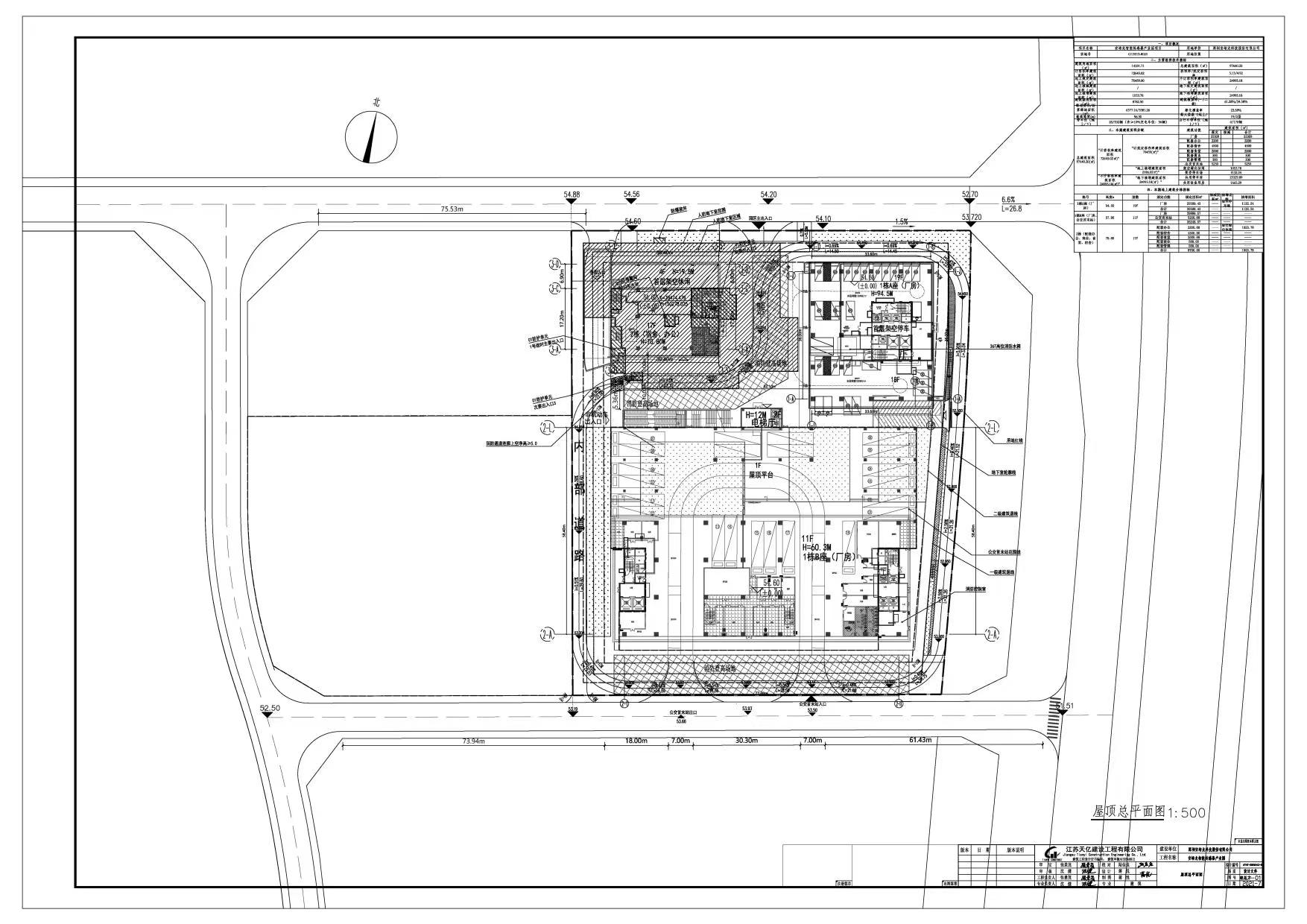
  深圳安培龙科技股份有限公司开发建设的安培龙智能传感器产业园项目(G13113-8025号宗地)位于坪山区坑梓街道规划九路与规划十路交汇处东北角,总用地面积14331.71㎡,其中建设用地面积14331.71㎡,土地用途为普通工业用地。该项目于2021年7月30日取得《建设工程规划许可证》(深规划资源建许字PS-2021-0021号)。

  依据《中华人民共和国城乡规划法》相关规定,现对该项目的总平面图予以公布。公布地址为:深圳市规划和自然资源局网站http://pnr.sz.gov.cn;深圳市规划和自然资源局坪山管理局网站http://pnr.sz.gov.cn/ps/。

  附件:安培龙智能传感器产业园项目(G13113-8025号宗地)总平面图

市规划和自然资源局坪山管理局

2021年9月26日

附件:安培龙智能传感器产业园项目(G13113-8025号宗地)总平面图.jpg


分享到: