--
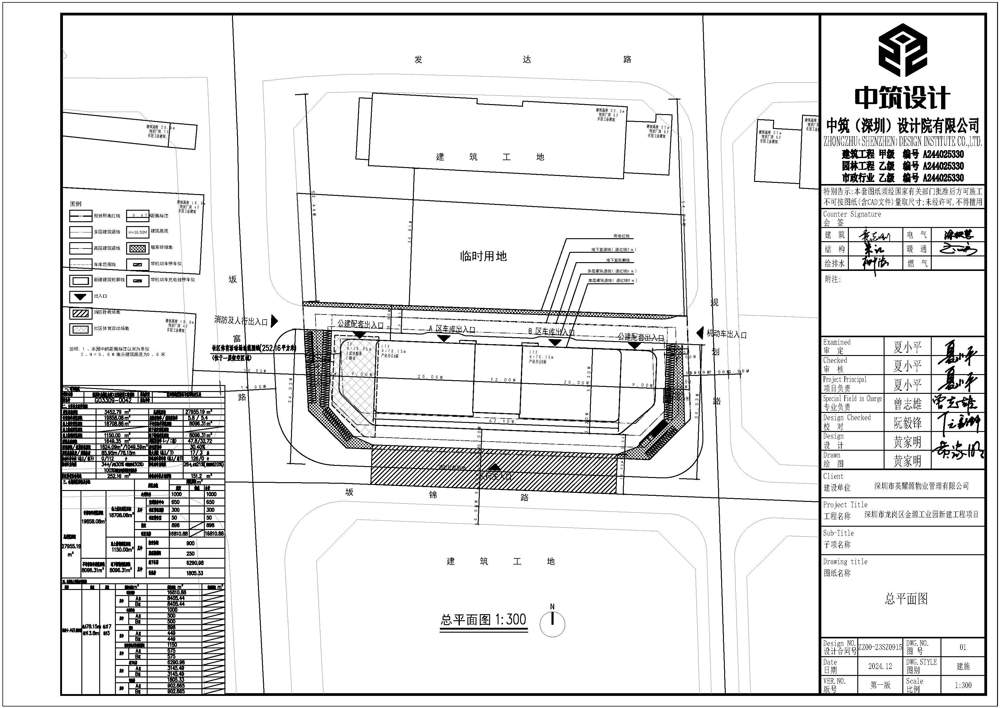
深圳市规划和自然资源局龙岗管理局关于公布金源科技大楼项目《建设工程规划许可证》及总平面图的通告

深圳市规划和自然资源局龙岗管理局关于公布金源科技大楼项目《建设工程规划许可证》及总平面图的通告

来源: 深圳市规划和自然资源局  日期: 2025-09-29  【字号:

  陈荣辉、吴福强申请办理金源科技大楼项目的建设工程规划许可证(建筑类)。经审查,现已取得《深圳市建设工程规划许可证》(建字第4403072025GG0210576号)。

  根据《中华人民共和国城乡规划法》第四十条规定,现将本次核发的《深圳市建设工程规划许可证》及总平面图予以公布。

  特此通告。

  附件:1.深圳市建设工程规划许可证

  2.深圳市建设工程设计文件核查表

  3.项目总平面图         

  深圳市规划和自然资源局龙岗管理局

  2025年9月29日

深圳市建设工程规划许可证.pdf
深圳市建设工程设计文件核查表.pdf
项目总平面图.jpg


分享到: