--
深圳市规划和自然资源局龙岗管理局关于雪岗大厦总平面图的公告

深圳市规划和自然资源局龙岗管理局关于雪岗大厦总平面图的公告

来源: 深圳市规划和自然资源局  日期: 2025-09-05  【字号:

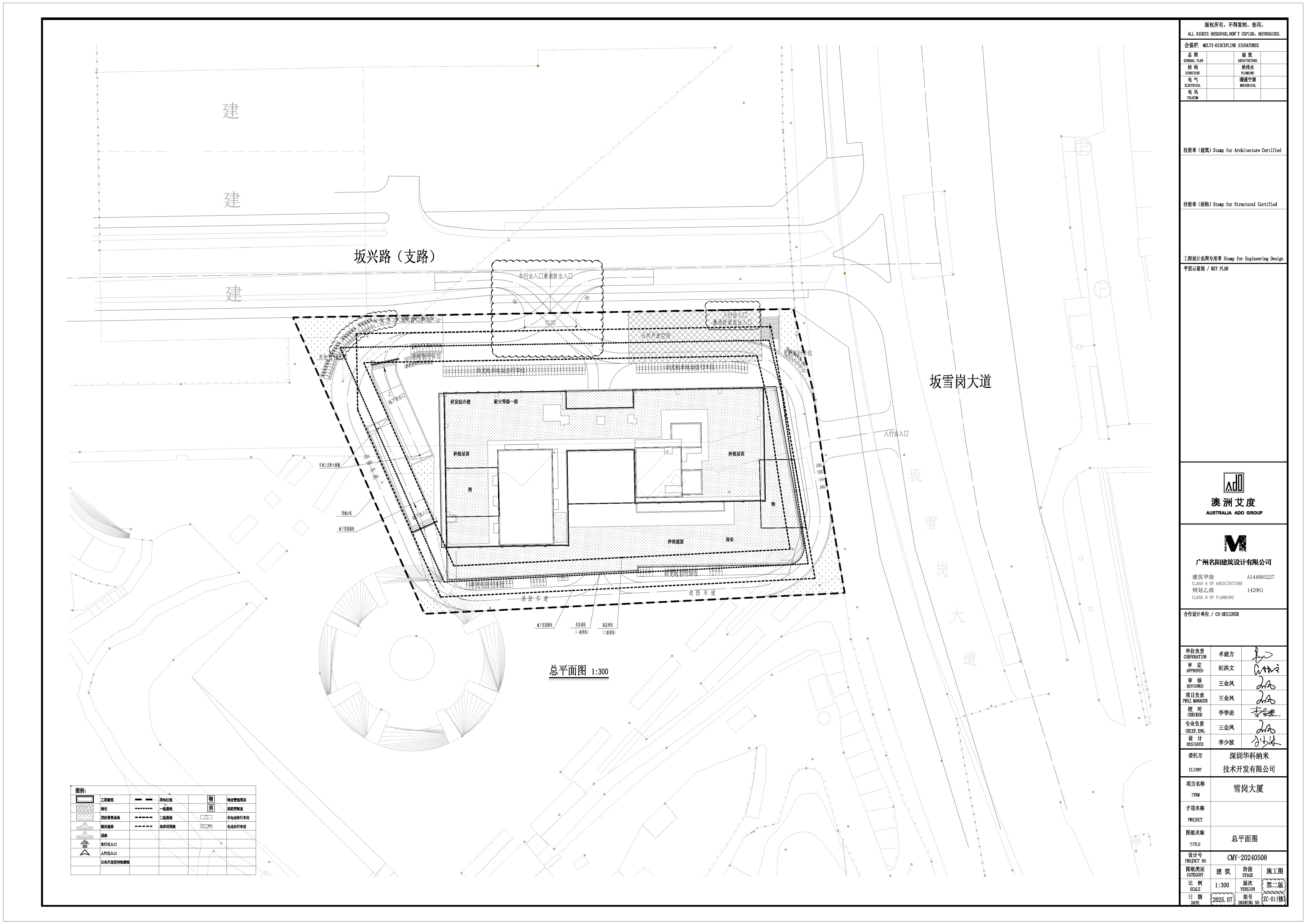
  深圳华科纳米技术开发有限公司申请办理雪岗大厦的建设工程设计文件修改备案,现已完成总平面图变更。依据《中华人民共和国城乡规划法》相关规定,现将该项目总平面图予以公布。

  特此公告。

  附件:总平面图

  深圳市规划和自然资源局龙岗管理局

  2025年9月5日

总平面图.jpg


分享到: