--
市规划和自然资源局罗湖管理局关于翠园中学新校区新建工程项目总平面图修改的公示

市规划和自然资源局罗湖管理局关于翠园中学新校区新建工程项目总平面图修改的公示

来源: 深圳市规划和自然资源局  日期: 2024-08-21  【字号:

  深圳市罗湖区翠园中学新校区新建工程项目(宗地号H221-0011)位于翠竹街道爱国路西侧、鸿业街南侧,2023年08月取得《深圳市建设工程规划许可证》(建字第4403032023GG0032317号)。深圳市罗湖区政府投资项目前期工作管理中心现申请变更建设工程规划许可证。

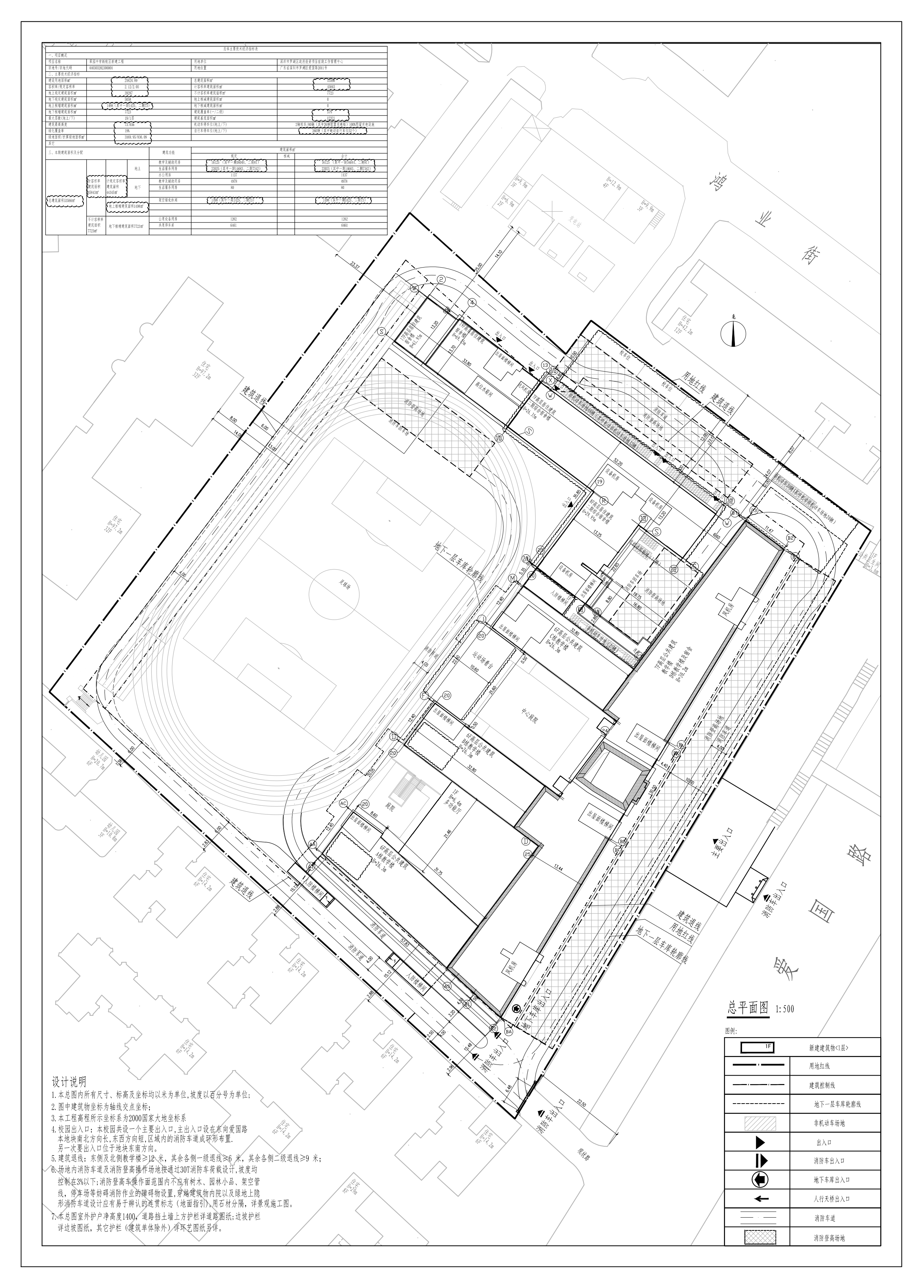
  本次修改内容主要是:1、总平面:增加综合宿舍楼及运动场看台、消防登高场地及表达非机动车位区域,调整北侧局部消防车道,取消原一期教学楼屋顶空调机房。2、主要技术经济指标表部分数据调整:总建筑面积由46070平方米调整为53566平方米,计容建筑面积由38347平方米调整为45843平方米,计规定建筑面积由36922平方米调整为44345平方米,建筑高度由69.15米调整为73.65米。其中新增加综合宿舍楼7342平方米、运动场看台81平方米、地上核增面积73平方米、自行车停车位260辆。修改内容仅限云线圈注部分(详见附图)。

  根据《中华人民共和国城乡规划法》的有关规定,现对该项目修改后的总平面图(附图)在《深圳商报》、深圳市罗湖区翠园中学新校区新建工程项目现场公示栏、深圳市规划和自然资源局门户网站(http://pnr.sz.gov.cn)、深圳市规划和自然资源局罗湖管理局网站(http:// pnr.sz.gov.cn/luohu)予以公示,公示期为10个工作日(2024年8月21日至2024年9月3日)。在公示期内,如对该项目的总平面图有意见和建议,请使用真实姓名及联系方式以书面意见形式与深圳市规划和自然资源局罗湖管理局联系。

  联系人:吴工  联系电话:0755-82348908

  联系地址:深圳市罗湖区清水河一路博隆大厦5楼

  附图:翠园中学新校区公示总平面图



  深圳市规划和自然资源局罗湖管理局

  2024年8月20日

翠园中学新校区公示总平面图.jpg


分享到: