--
深圳市规划和自然资源局罗湖管理局关于政法大楼(原政法大厦旧办公楼)规划确认的公示

深圳市规划和自然资源局罗湖管理局关于政法大楼(原政法大厦旧办公楼)规划确认的公示

来源: 深圳市规划和自然资源局  日期: 2023-08-05  【字号:

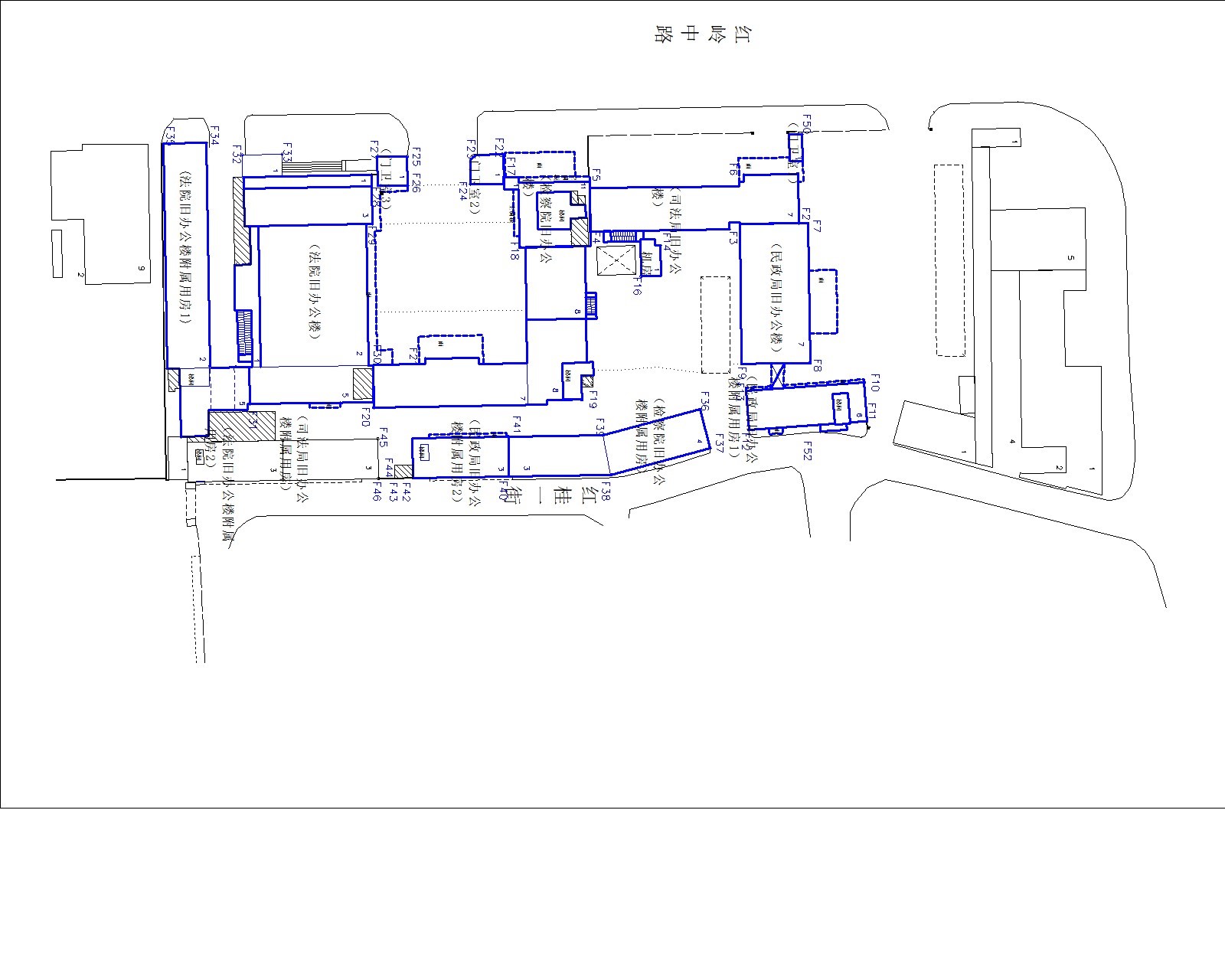
  深圳市机关事务管理局申请政法大楼(含法院旧办公楼、法院旧办公楼附属用房1、检察院旧办公楼、检察院旧办公楼附属用房、民政局旧办公楼、民政局旧办公楼附属用房1、民政局旧办公楼附属用房2、司法局旧办公楼、机房、门卫室等12栋)规划确认。根据《广东省城乡规划条例》、《关于加强房地产登记历史遗留问题处理工作的若干意见》(深府[2010]66号)等相关规定,现将本次规划确认内容予以公示,具体内容如下:

  政法大楼位于罗湖区红岭中路(宗地H201-0100),拟规划确认总建筑面积21418.59平方米,地面以上建筑面积21252.43平方米(含01层通道建筑面积10.39平方米),地下室建筑面积166.16平方米。其中:法院旧办公楼6881.1平方米、地上8层、一至五层为办公及宿舍、六层至八层为办公;法院旧办公楼附属用房1为1651.78平方米、地上5层、一至二层为食堂及宿舍、三至五层为宿舍;检察院旧办公楼4066.85平方米、地上11层、一层、三至十一层为办公、二层为办公及食堂;检察院旧办公楼附属用房1235.27平方米、地上4层、为宿舍;民政局旧办公楼2441.13平方米、地上7层、为办公;民政局旧办公楼附属用房1为1487.30平方米、地上6层、地下1层、为办公;民政局旧办公楼附属用房2为507.34平方米、地上3层、一层为食堂、二层至三层为办公;司法局旧办公楼3029.19平方米、地上7层、为办公;机房31.08平方米、地上1层;门卫室1为14.99平方米、地上1层;门卫室2为35.96平方米、地上1层;门卫室3为36.6平方米、地上1层。

  公示期不少于10日,从2023年8月5日起至2023年8月18日止。本公示自发布之日起,在深圳市规划和自然资源局门户网站、深圳市规划和自然资源局罗湖管理局网站、深圳商报、深圳市规划和自然资源局罗湖管理局大厅和项目现场同时进行展示。公示期间,如对公示内容有任何意见和建议,请使用真实姓名及联系方式以书面形式反馈至深圳市规划和自然资源局罗湖管理局(地址:深圳市罗湖区清水河一路博隆大厦5楼)。公示期满如无异议,将按规定办理相关手续。

  特此公示。

  附图:政法大楼总平面图

深圳市规划和自然资源局罗湖管理局

2023年8月5日

  (联系人:赖工,电话:82348622、82346118)

附图:政法大楼总平面图.jpg


分享到: