--
深圳市规划和自然资源局宝安管理局关于公布未来荟大厦《建设工程规划许可证》及总平面图的通告

深圳市规划和自然资源局宝安管理局关于公布未来荟大厦《建设工程规划许可证》及总平面图的通告

来源: 深圳市规划和自然资源局  日期: 2023-04-23  【字号:

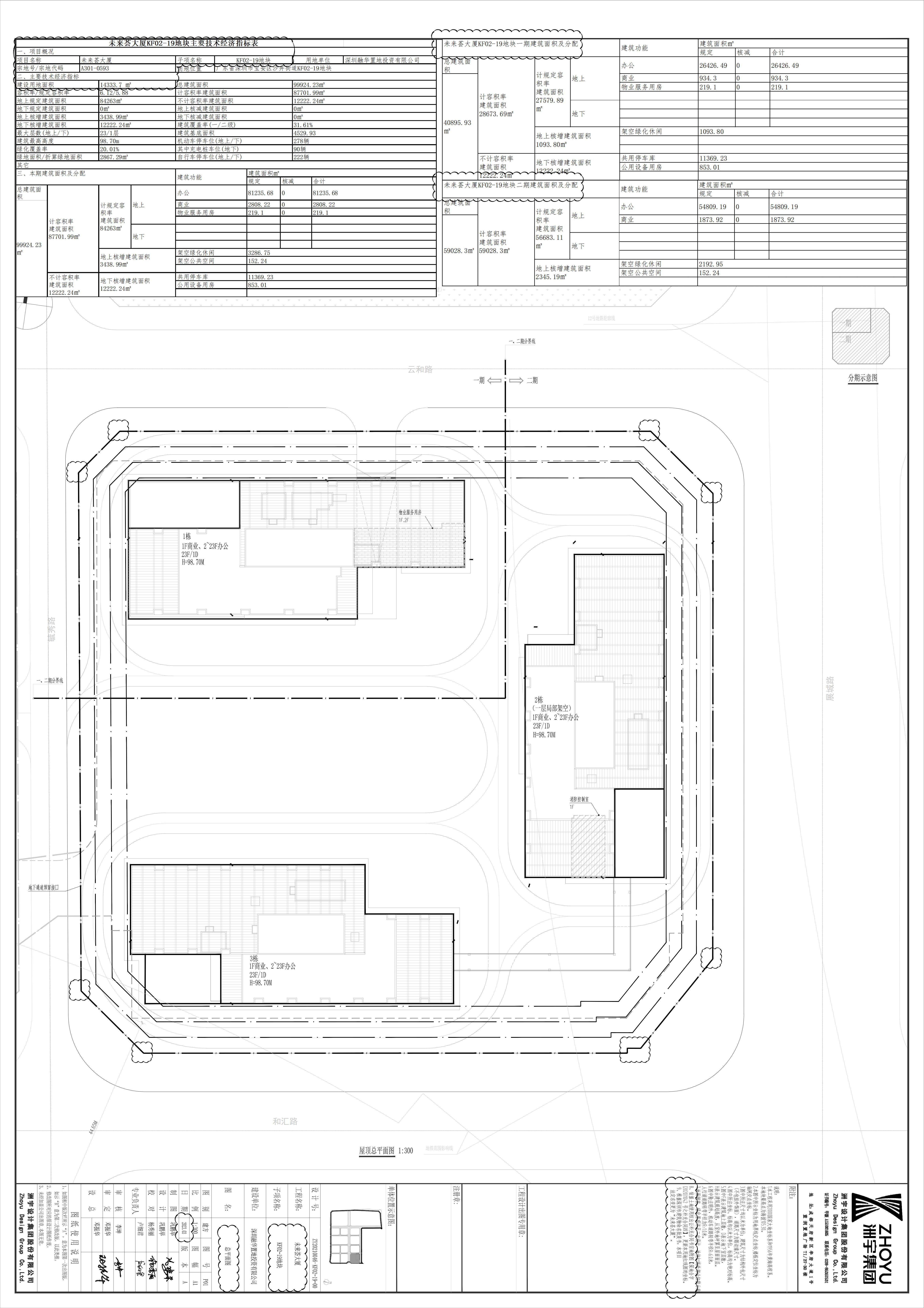
  深圳融华置地投资有限公司的“未来荟大厦”(宗地号为A301-0593)位于沙井街道,经审查,深圳市规划和自然资源局宝安管理局同意变更该项目的《建设工程规划许可证》(深规划资源建许字BA-2021-0083(改1)号、深规划资源建许字BA-2021-0089(改1)号)。根据《中华人民共和国城乡规划法》第四十条的规定,现将本次核发的《建设工程规划许可证》及总平面图予以公布。

  附件:1.建设工程规划许可证(深规划资源建许字BA-2021-0083(改1)号)

  2.建设工程规划许可证(深规划资源建许字BA-2021-0089(改1)号)

  3.总平面图

深圳市规划和自然资源局宝安管理局

2023年4月23日

附件1:建设工程规划许可证(深规划资源建许字BA-2021-0083(改1)号).pdf
附件2:建设工程规划许可证(深规划资源建许字BA-2021-0089(改1)号).pdf
附件3:总平面图.jpg


分享到: