--
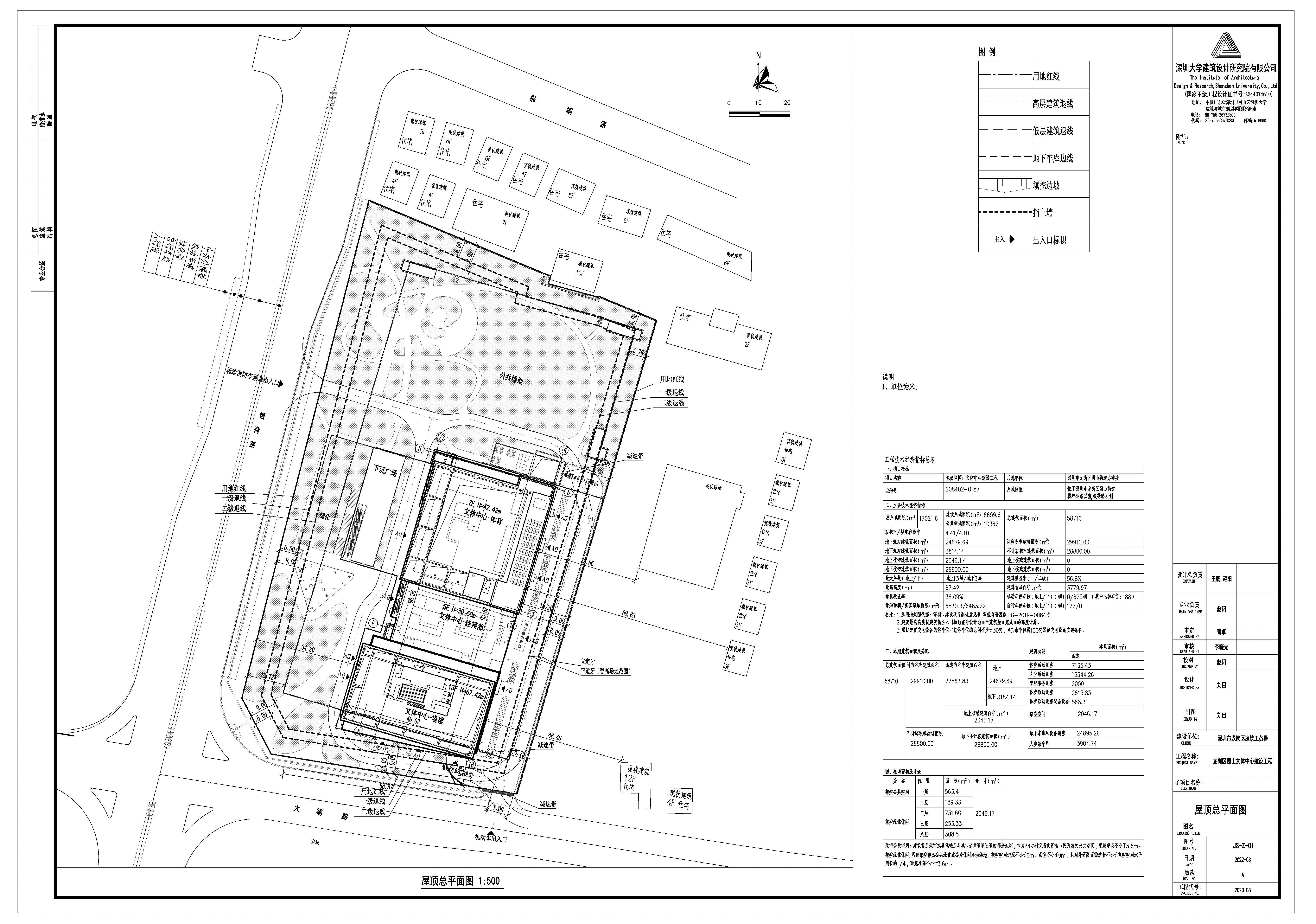
深圳市规划和自然资源局龙岗管理局关于公布龙岗区园山文体中心建设工程总平面图的通告

深圳市规划和自然资源局龙岗管理局关于公布龙岗区园山文体中心建设工程总平面图的通告

来源: 深圳市规划和自然资源局  日期: 2023-04-24  【字号:

  深圳市龙岗区建筑工务署来文申请办理龙岗区园山文体中心建设工程的建设工程规划类许可证核发(建筑类)(建设工程规划许可证核发建筑类),现已取得《深圳市建设工程规划许可证》(深规划资源建许字LG-2023-0058号)。 

  依据《中华人民共和国城乡规划法》相关规定,现对龙岗区园山文体中心建设工程的工程规划许可证及总平面图予以公布。

  特此通告。

  附件:1.项目总平面图

  2.深圳市建设工程规划许可证(深规划资源建许字LG-2023-0058号)

深圳市规划和自然资源局龙岗管理局

2023年4月24日

项目总平面图.jpg
深圳市建设工程规划许可证(深规划资源建许字LG-2023-0058号).pdf


分享到: