--
深圳市规划和自然资源局

深圳市规划和自然资源局龙岗管理局关于宝龙智造园项目总平面图修改事宜的公示

来源: 深圳市规划和自然资源局  日期: 2023-01-16  【字号:

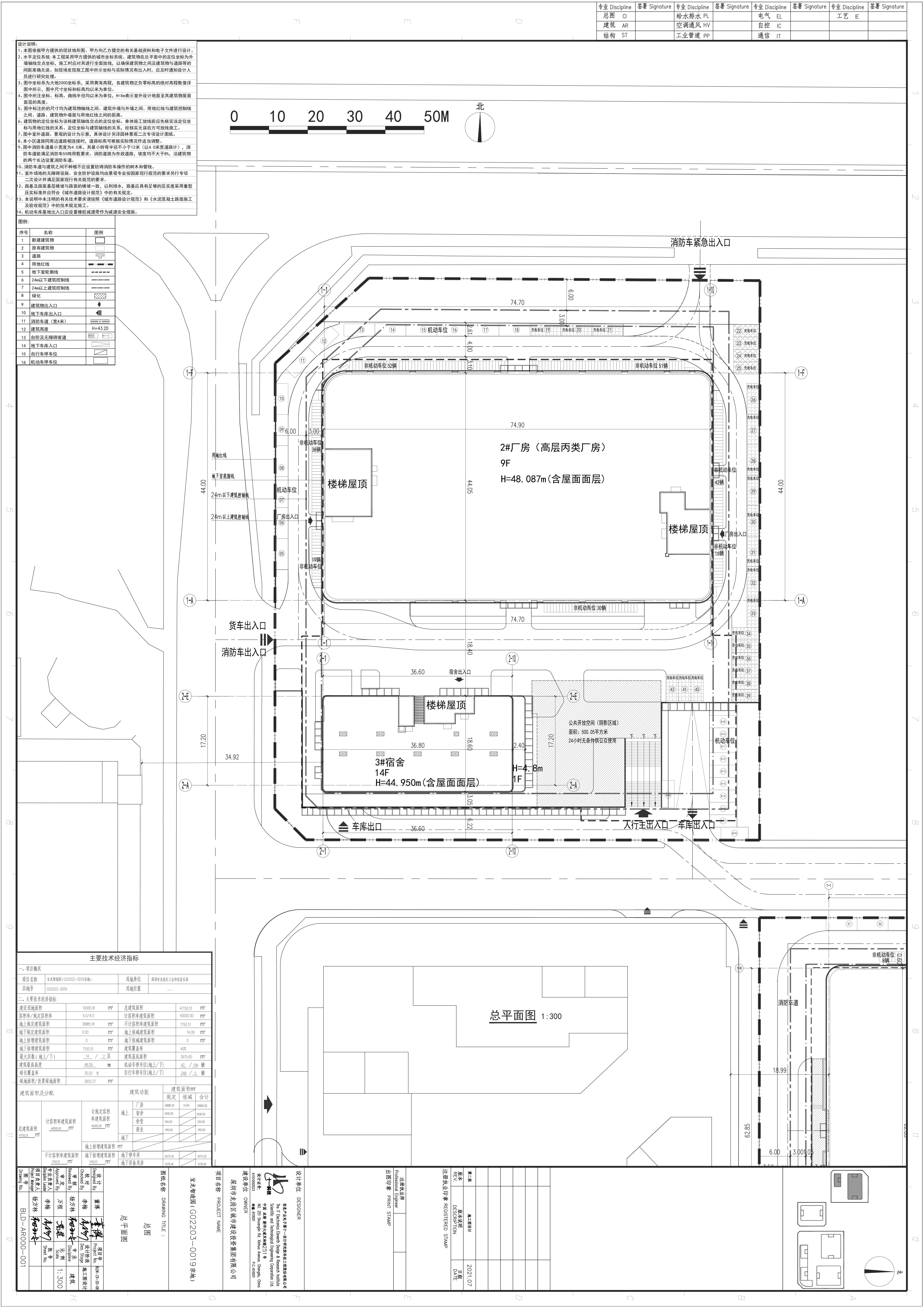
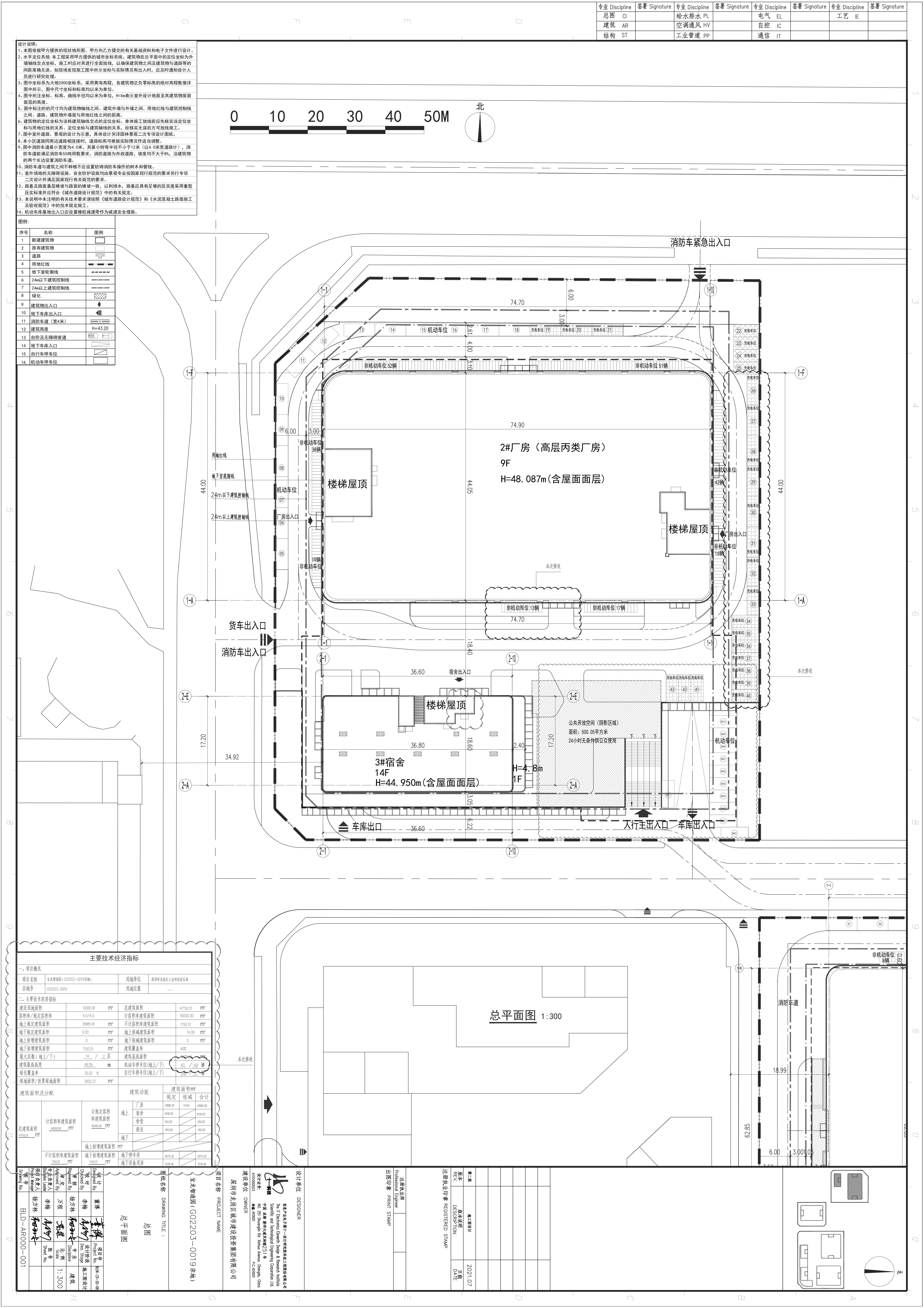
  深圳市龙岗区城市建设投资集团有限公司来文办理宝龙智造园项目施工图纸修改。该项目位于龙岗区龙城街道(宗地号:G02203-0019),用地面积10000.91平方米,于2021年8月11日取得《建设工程规划许可证》【深规划资源建许字LG-2021-0063(改1)号】。本次涉及总平面修改,主要内容为(详情如附图云线所示):

  1.2#厂房1层南侧出入口(1-6~1-7交1-A轴)雨棚位置调整;

  2.调整场地东侧地面停车位布置,增加1个停车位。

  本次修改内容满足《建设用地规划许可证》(地字第440307202100011号)和《深圳市国有建设用地划拨决定书》【深地划拨字(2021)2016号 】的要求。

  现根据《中华人民共和国城乡规划法》相关规定予以公示,公示期为10个工作日(2023年1月16日至2023年2月1日)。本公示自发布之日起在项目现场(地址:龙岗区宝龙街道宝龙二路与丹荷大道交会处)、深圳市规划和自然资源局门户网站(http://pnr.sz.gov.cn)及深圳市规划和自然资源局龙岗管理局一楼大厅和网站(地址:龙岗区中心城行政路2号,网址:http://pnr.sz.gov.cn/lg)同时公示。公示期间,如对该项目上述变更内容有异议,请使用真实姓名及有效联系方式通过书面形式与深圳市规划和自然资源局龙岗管理局联系,公示期满无异议,将按规定办理相关手续。

  特此公示。

  附件:1.修改前总平面图

  2.修改后总平面图

  深圳市规划和自然资源局龙岗管理局

  2023年1月16日

  (联系人:戴工;电话:0755-8916910;传真:0755-28910030)

修改前总平面图.jpg
修改后总平面图.jpg


分享到: