--
深圳市规划和自然资源局

深圳市规划和自然资源局龙岗管理局关于公布埔地吓水质净化厂三期项目《建设工程规划许可证》及总平面图的通告

来源: 深圳市规划和自然资源局  日期: 2022-11-08  【字号:

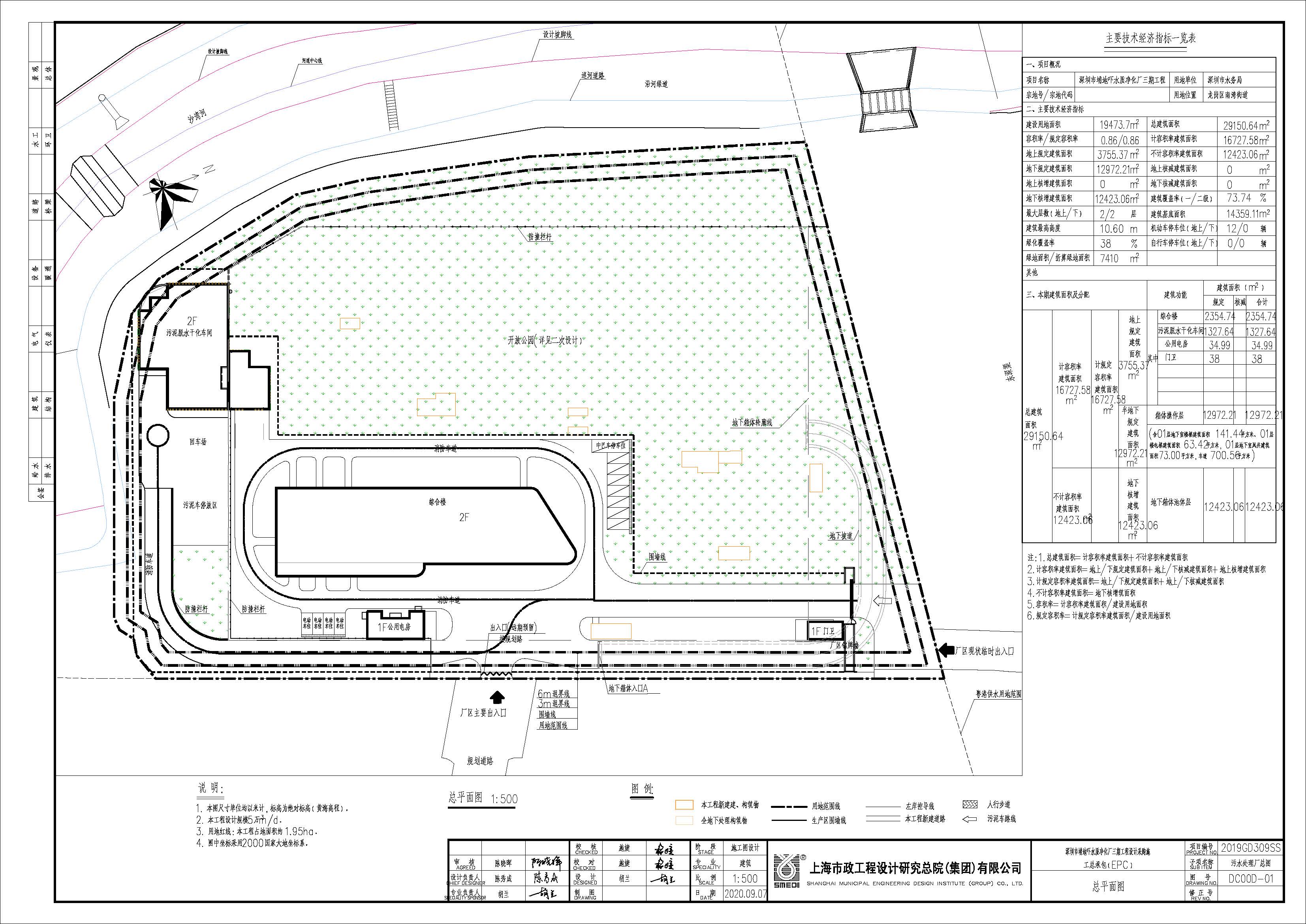
  深圳市环水启航水质净化有限公司(用地单位为深圳市水务局)来文申报埔地吓水质净化厂三期项目的建设工程规划类许可证核发(建筑类)。项目用地位于龙岗区南湾街道辖区,经我局审查,同意核发该项目的《建设工程规划许可证》(深规划资源建许字LG-2022-0123号)。

  根据《中华人民共和国城乡规划法》第四十条的规定,现将本次核发的《建设工程规划许可证》及总平面图予以公布。

  特此通告。

  附件:1.《建设工程规划许可证》

  2.项目总平面图

深圳市规划和自然资源局龙岗管理局

2022年11月8日

《建设工程规划许可证》.pdf
项目总平面图.jpg


分享到: