深圳市规划和自然资源局福田管理局关于福田区沙头街道车公庙泰然工业区第一更新单元二期项目泰然四路下方地下公共人行通道(暂定名)总平面图的公示
日期: 2026-04-08 来源:
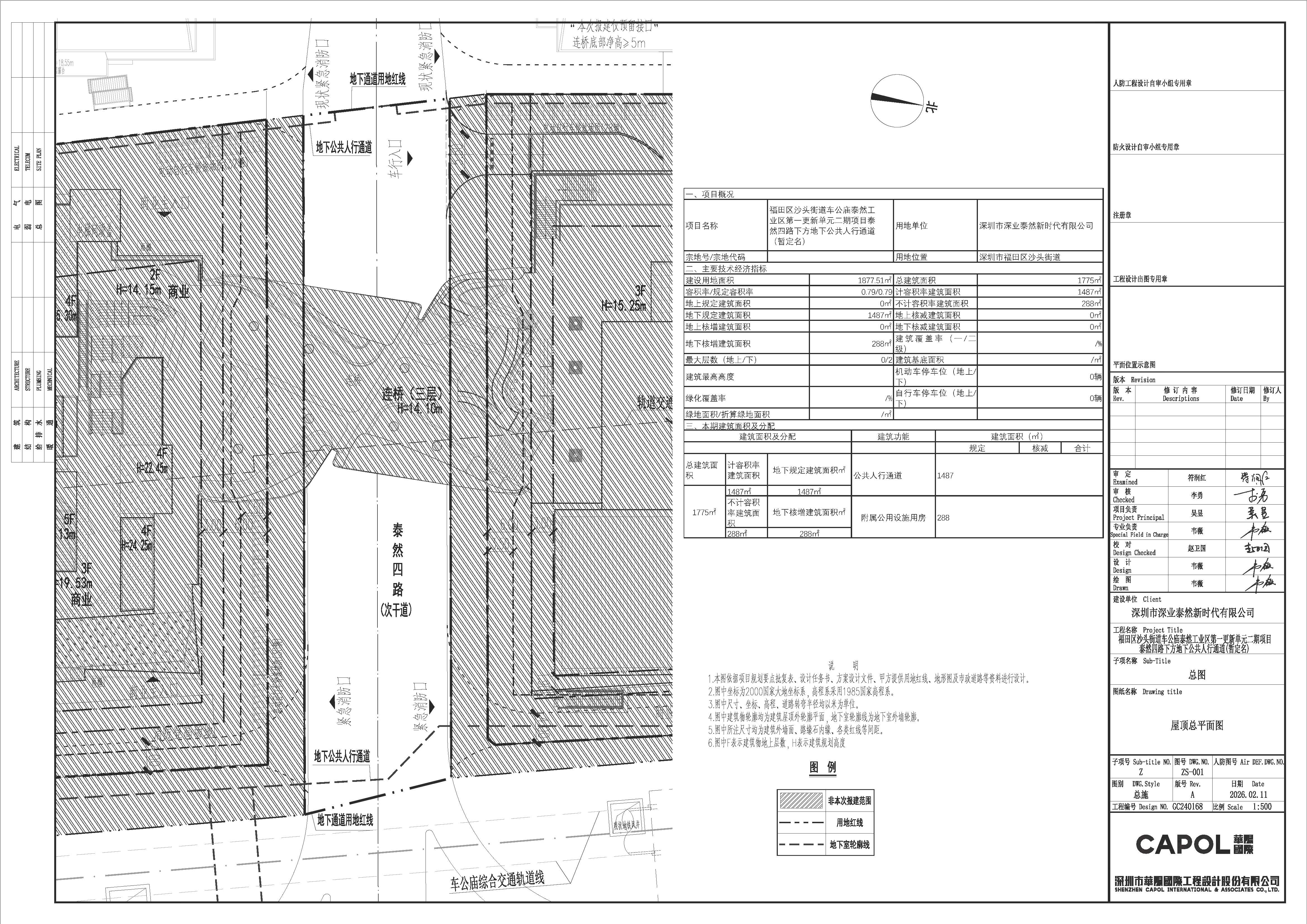
福田区沙头街道车公庙泰然工业区第一更新单元二期项目泰然四路下方地下公共人行通道(暂定名)位于福田区沙头街道天安社区泰然四路东段,宗地号B107-0063,现深圳市深业泰然新时代有限公司向我局申请办理该项目的《建设工程规划许可证》核发事宜。根据《广东省城乡规划条例》等相关规定,现将有关事项公示如下:
一、公示内容
福田区沙头街道车公庙泰然工业区第一更新单元二期项目泰然四路下方地下公共人行通道(暂定名)总平面图(详见附件)
二、公示时间
2026年4月9日至2026年4月18日(10个自然日,如公示截止日期逢节假日或周末,公示意见收集截止日期顺延至节假日或周末后的第一个工作日)
三、公示渠道
(一)网站公示
1.深圳市规划和自然资源局门户网站
http://pnr.sz.gov.cn/
2.深圳市规划和自然资源局福田管理局门户网站
http://pnr.sz.gov.cn/ft/
(二)实地公示
1.项目现场
地址:福田区沙头街道天安社区泰然四路东段
2.深圳市规划和自然资源局福田管理局一楼大厅
地址:福田区新闻路69号山海大厦
四、意见反馈方式
公示期间,任何单位、组织和个人均可就公示内容提出书面意见或建议,个人提交反馈意见的应当提供真实姓名(须由提交人签名)、有效身份证明复印件、住址及联系方式,单位或组织提交反馈意见的应当加盖公章、提交单位法定代表人、委托代理人的有效身份证明复印件并注明联系人及联系方式。请在公示意见收集截止日期之前,通过以下渠道书面反馈:
(一)邮寄。邮寄地址:深圳市福田区新闻路69号山海大厦;收件人:杨工;联系电话:0755-83133165;并在信封上注明“福田区沙头街道车公庙泰然工业区第一更新单元二期项目泰然四路下方地下公共人行通道(暂定名)批前公示反馈意见”字样(日期以邮戳为准);
(二)电子邮件。请将意见发送至邮箱:ftglj@pnrsz.gov.com,邮件标题请按照“福田区沙头街道车公庙泰然工业区第一更新单元二期项目泰然四路下方地下公共人行通道(暂定名)批前公示反馈意见+姓名(或单位名称)”格式填写。
公众意见征询截止后,我局将按照相关规定对公众意见进行认真研究和处理后,按程序审批。
特此公示。
附件:福田区沙头街道车公庙泰然工业区第一更新单元二期项目泰然四路下方地下公共人行通道(暂定名)总平面图
深圳市规划和自然资源局福田管理局
2026年4月8日
相关文档:
