深圳市规划和自然资源局福田管理局关于福田区全球智能芯片创新中心建设工程项目总平面图修改的通告
日期: 2023-09-27 来源:
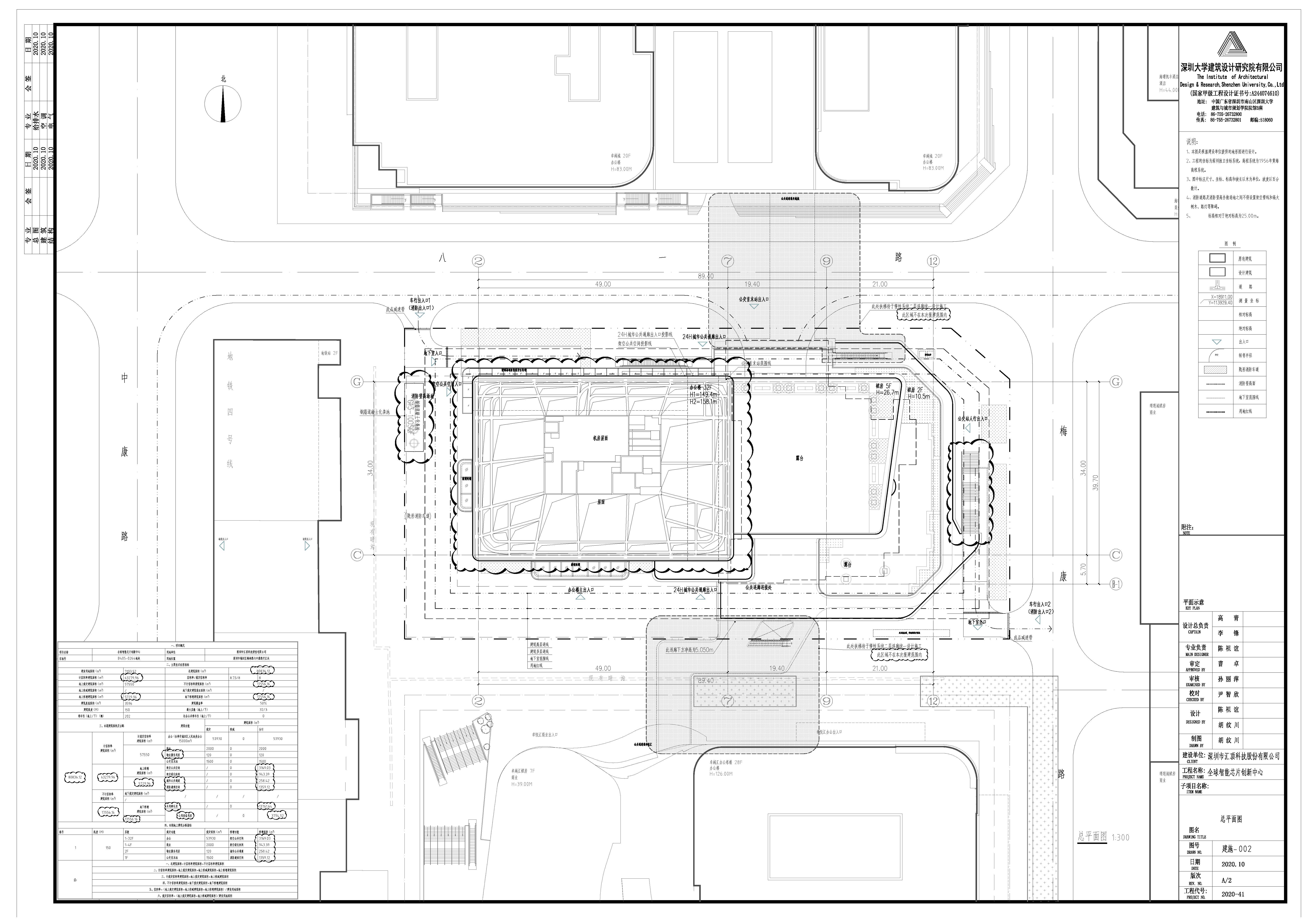
全球智能芯片创新中心项目位于福田区梅林路与中康路交汇处东北处,宗地号B405-0264。用地单位为:深圳市汇顶科技股份有限公司,该项目于2019年05月06日取得《深圳市建设用地规划许可证》(深规土许FT-2019-0023号),于2020年12月09日取得《建设工程规划许可证》(深规土建许字FT-2020-0088号)。现用地单位申请变更福田区全球智能芯片创新中心建设工程项目总平面图,根据《中华人民共和国城乡规划法》及《深圳市建设工程规划许可(房建类)报建文件编制技术规定》的有关规定,将相关情况公示如下:
一、主要修改内容如下:
(一)化粪池从原设计在地块的东北角移至西北角;
(二)东侧增加一处楼梯;
(三)把名称对应修改与《建设工程规划许可证》相符,修改名称:物业服务用房、城市公共通道、消防避难空间、共用停车库、公用设备用房;
(四)修改2-7交C-G轴塔楼屋顶的平面增加结构梁看线;
(五)总平面图中表达的南北两侧设计的连廊,增加填充并说明圈线范围不在本期报建范围。
(六)主要技术经济指标调整。
详见附件总平面图圈云线范围。
上述调整后,总图仍符合《建设用地规划许可证》(深规土许FT-2019-0023号)及相关规定要求。
二、现对该项目总平面图修改予以公示,公示期为2023年9月28日-2023年10月19日,公示期内如对该项目的总平面图修改有意见和建议,请使用真实姓名及有效联系方式通过书面形式与深圳市规划和自然资源局福田管理局联系,逾期视为无意见。
联系人:代工,联系电话:0755-83138631;
联系地址:深圳市福田区新闻路69号山海大厦
公示地点:
(一)项目现场
地址:福田区梅林路与中康路交汇处东北处
(二)深圳市规划和自然资源局福田管理局一楼大厅
地址:福田区新闻路69号山海大厦
(三)深圳市规划和自然资源局网站
网址:http://pnr.sz.gov.cn
深圳市规划和自然资源局福田管理局网站
网址:http://pnr.sz.gov.cn/ft/
(四)报纸(深圳商报)
附件:总平面图
深圳市规划和自然资源局福田管理局
2023年9月27日
相关文档:
