市规划和自然资源局福田管理局关于福田区安托山幼儿园建设工程项目规划许可证批前公示的通告
日期: 2022-09-24 来源:
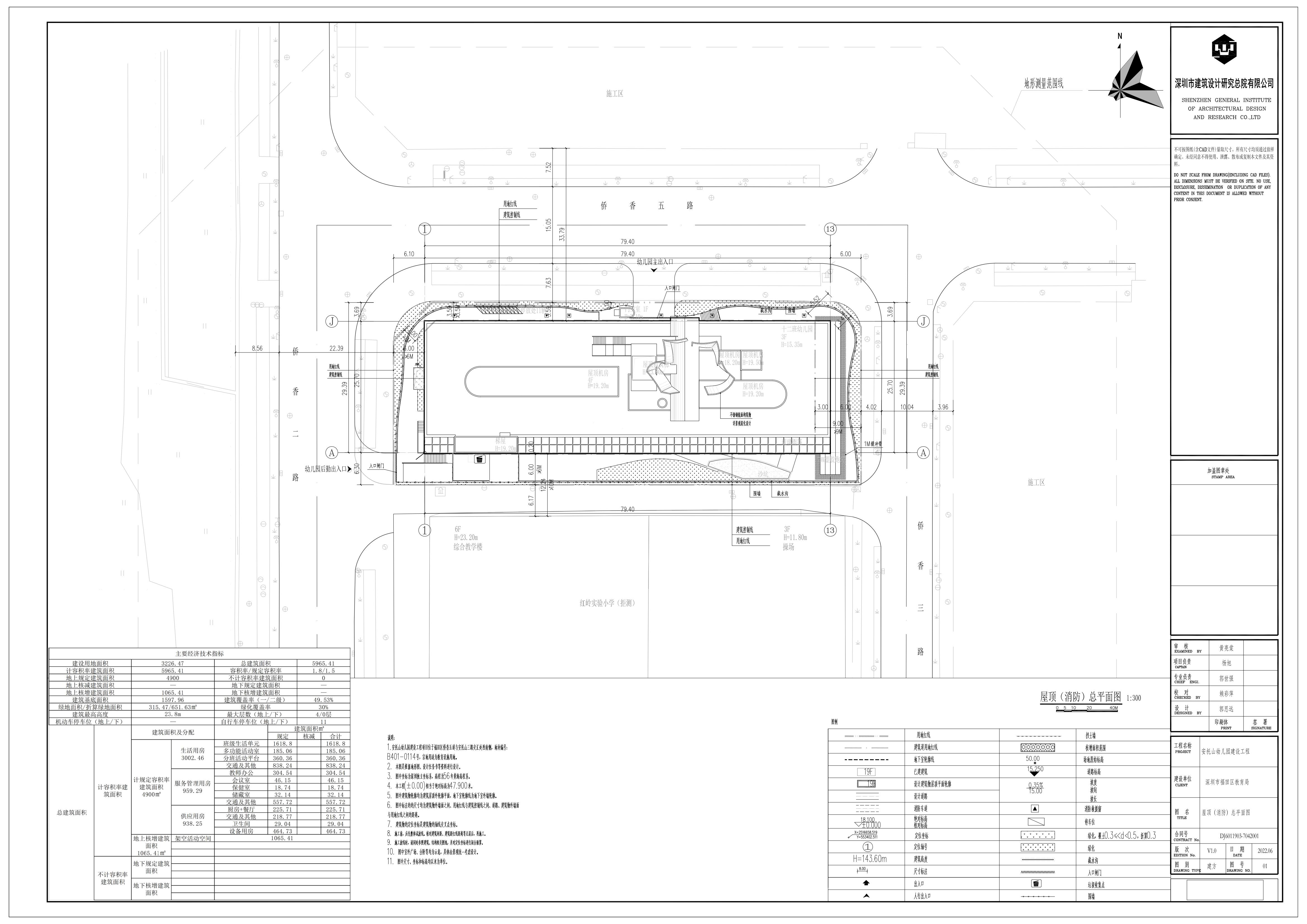
安托山幼儿园建设工程项目(宗地号:B401-0114),位于深圳市福田区侨香五道与安托山三路交汇处西南侧。该项目于2021年6月4日取得《建设工程规划许可证》(深规土建许字FT-2020-0042(延1)号)。因该《建设工程规划许可证》过期以及方案修改,现用地单位深圳市福田区教育局向市规划和自然资源局福田管理局申请核发该项目《建设工程规划许可证》,依据《中华人民共和国行政许可法》等规定,现将许可内容公开展示如下:
一、基本情况
该项目用地性质:教育设施用地,用地面积3226.47平方米,规定建筑面积:4900平方米,最高建筑高度:23.8米,其他指标详见附图。
二、公示地点
(一)项目现场
地址:福田区莲花街道景田四街北侧、景田北街东侧。
(二)网站
深圳市规划和自然资源局网站
网址:http://pnr.sz.gov.cn
深圳市规划和自然资源局福田管理局网站
网址:http://pnr.sz.gov.cn/ft/
(三)公示媒体:《深圳商报》
三、公示时间
10个自然日,自2022年9月24日至2022年10月3日止(以网站公布时间为准)。
四、意见反馈
如对该事项有意见和建议,请使用真实姓名、联系方式及联系地址等,公示期内以书面的形式与深圳市规划和自然资源局福田管理局联系(可邮寄)。本次公示截止日为2022年10月3日,逾期视为无效意见,不予采纳。反馈意见不准确或不完整,无法及时进一步核对有关情况的,视为无效意见,不予采纳。利害关系人有权进行陈述、申辩、并依法享有听证权。如需要求听证,应于本公示期内向深圳市规划和自然资源局福田管理局提出申请。市规划和自然资源局福田管理局将按相关规定对反馈意见进行认真研究和提出处理意见,并按程序进行审批。
五、联系方式
联系地址(可邮寄):深圳市福田区新闻路69号
联系人(邮寄单位):深圳市规划和自然资源局福田管理局建筑设计科
联系电话:82946927 83594791
传真号码:83139160
邮编:518036
附件:屋顶总平面图
市规划和自然资源局福田管理局
2022年9月23日
相关文档:
