市规划和自然资源局福田管理局关于福强小学改扩建工程(二期)项目总平面图修改的公示
日期: 2022-07-26 来源:
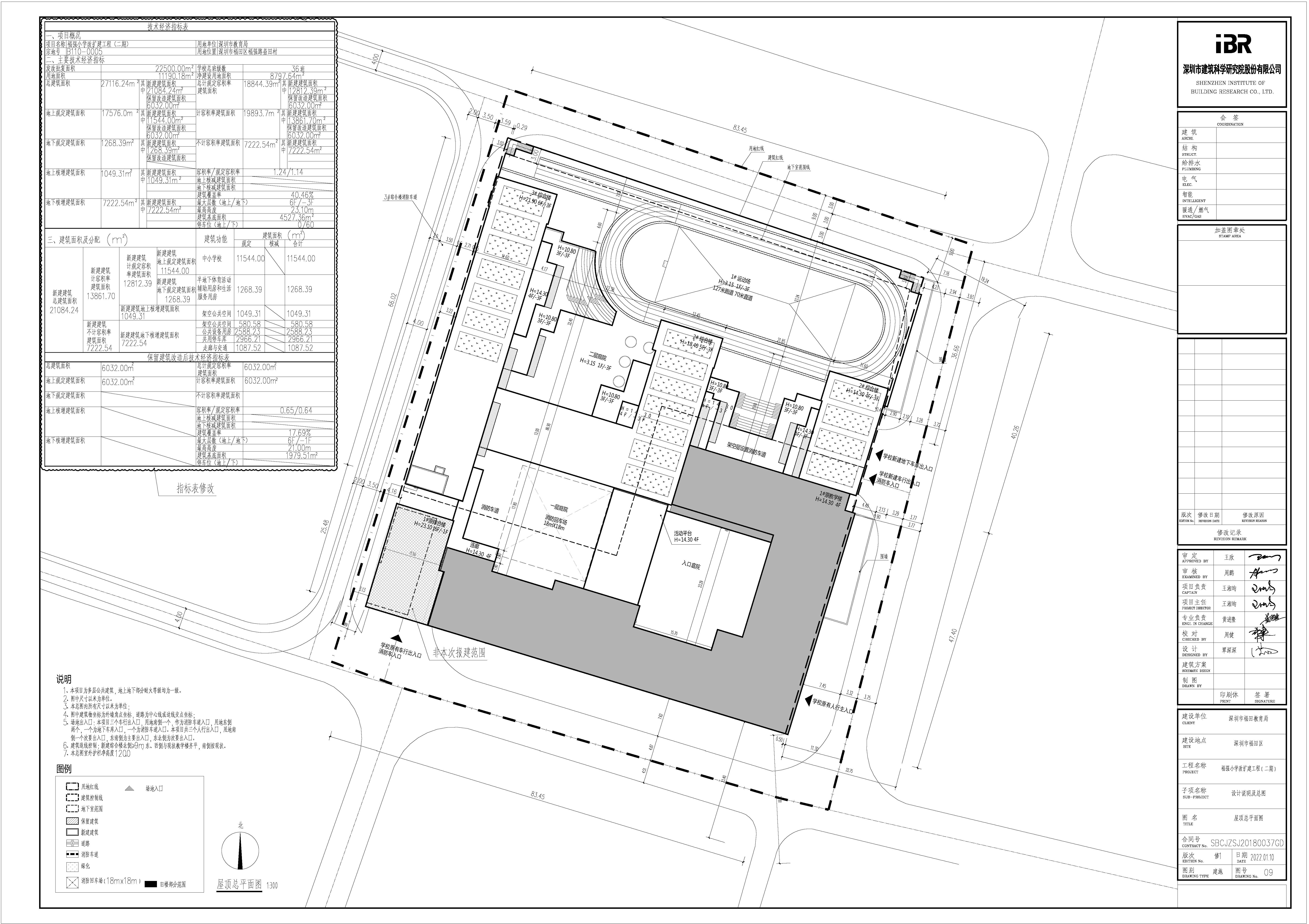
福强小学改扩建工程(二期)项目位于深圳市福田区福强路益田村,宗地号B110-0005,于2019年8月20日取得《建设工程规划许可证》(深规土建许字FT-2019-0063号)。现该项目申请总平面图修改,具体变更如下内容:
一、原《建设工程规划许可证》(深规土建许字FT-2019-0063号)中部分指标修改为:新建建筑总建筑面积由28538.85㎡调整为21084.24㎡。计容积率建筑面积由21162.76㎡调整为13861.70㎡,其中计规定容积率建筑面积由19992.45㎡调整为12812.39㎡(含中小学校11544.00㎡、半地下体育活动辅助用房和生活服务用房1268.39㎡),核增建筑面积(架空公共空间)由1170.31㎡调整为1049.31㎡。不计容积率建筑面积由7376.09㎡调整为7222.54㎡(含地下架空公共空间1668.1㎡、公用设备用房2588.23㎡、共用停车库2966.21㎡)。以上修改内容详见附图中云线圈注范围。
二、改扩建后原《建设工程规划许可证》(深规土建许字2001074号)总建筑面积由8732㎡修改为6032.00㎡,其中计规定容积率建筑面积6032.00㎡。
根据《中华人民共和国城乡规划法》及《深圳市建设工程规划许可(房建类)报建文件编制技术规定》的有关规定,现对该项目总平面图修改予以公示,公示期为10个工作日(2022年7月26日至2022年8月8日)。公示期内如对该项目的总平面图修改有意见和建议,请使用真实姓名及有效联系方式通过书面形式与深圳市规划和自然资源局福田管理局联系,逾期视为无意见。
联系人:于工、张工
联系电话:0755-83138630、0755-83133822
传真号码:0755-83139160
联系地址:深圳市福田区新闻路69号山水大厦
公示地点:
(一)项目现场
地址:福田区福强路益田村福强小学
(二)深圳市规划和自然资源局福田管理局一楼大厅
地址:福田区新闻路69号山水大厦
(三)深圳市规划和自然资源局网站
网址:http://pnr.sz.gov.cn
深圳市规划和自然资源局福田管理局网站
网址:http://pnr.sz.gov.cn/ft/
(四)报纸(深圳商报)
附件:修改后总平面图
市规划和自然资源局福田管理局
2022年7月22日
相关文档:
