深圳市规划和自然资源局龙岗管理局关于百富科技大厦(G04207-0163)总平面图修改的公示
日期: 2020-09-30 来源:
百富计算机技术(深圳)有限公司申请对百富科技大厦总平面图进行修改,项目位于平湖街道山厦社区金融基地一期,用地面积4537.6平方米,对应LG-2019-0045号《深圳市建设工程规划许可证》。
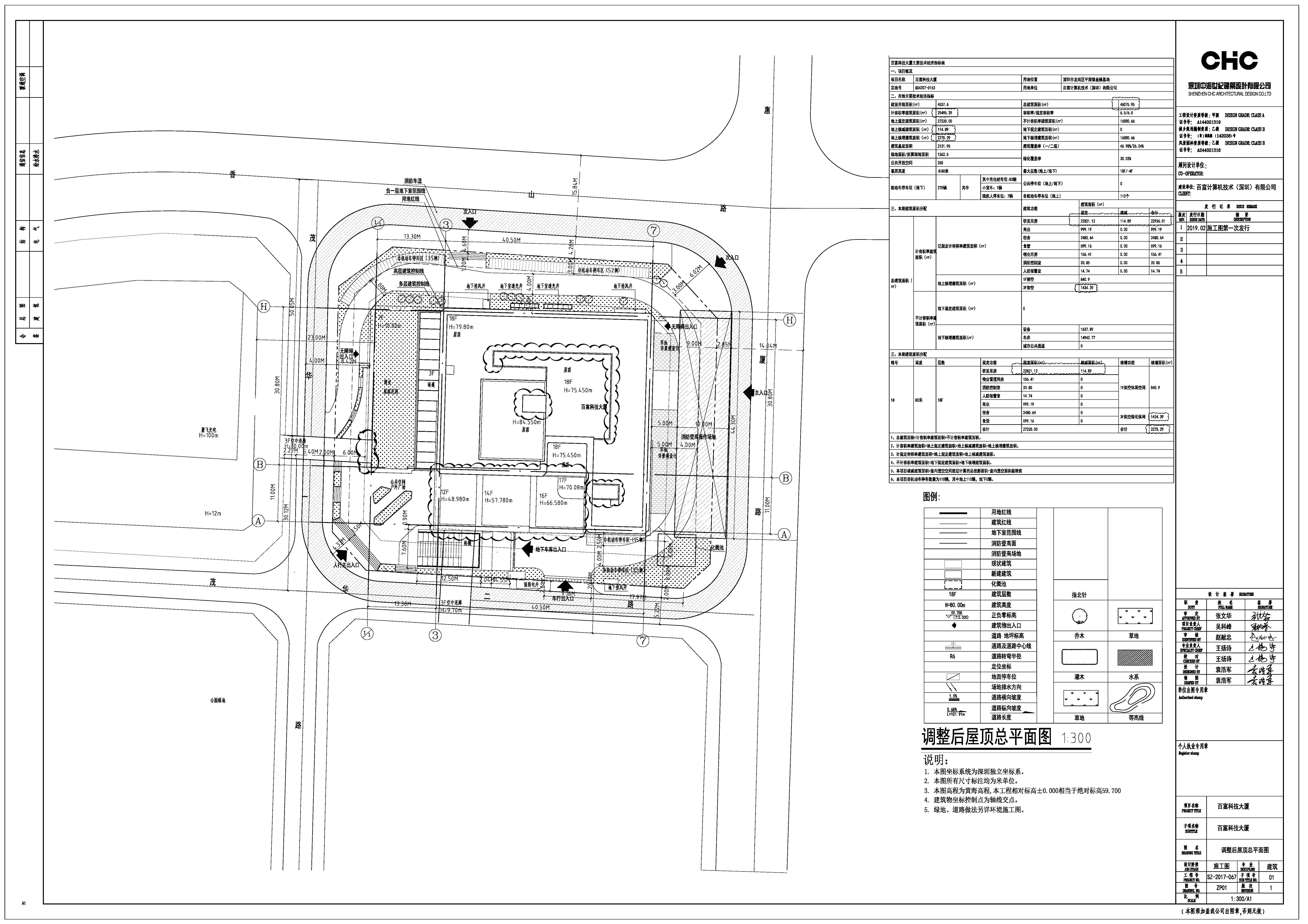
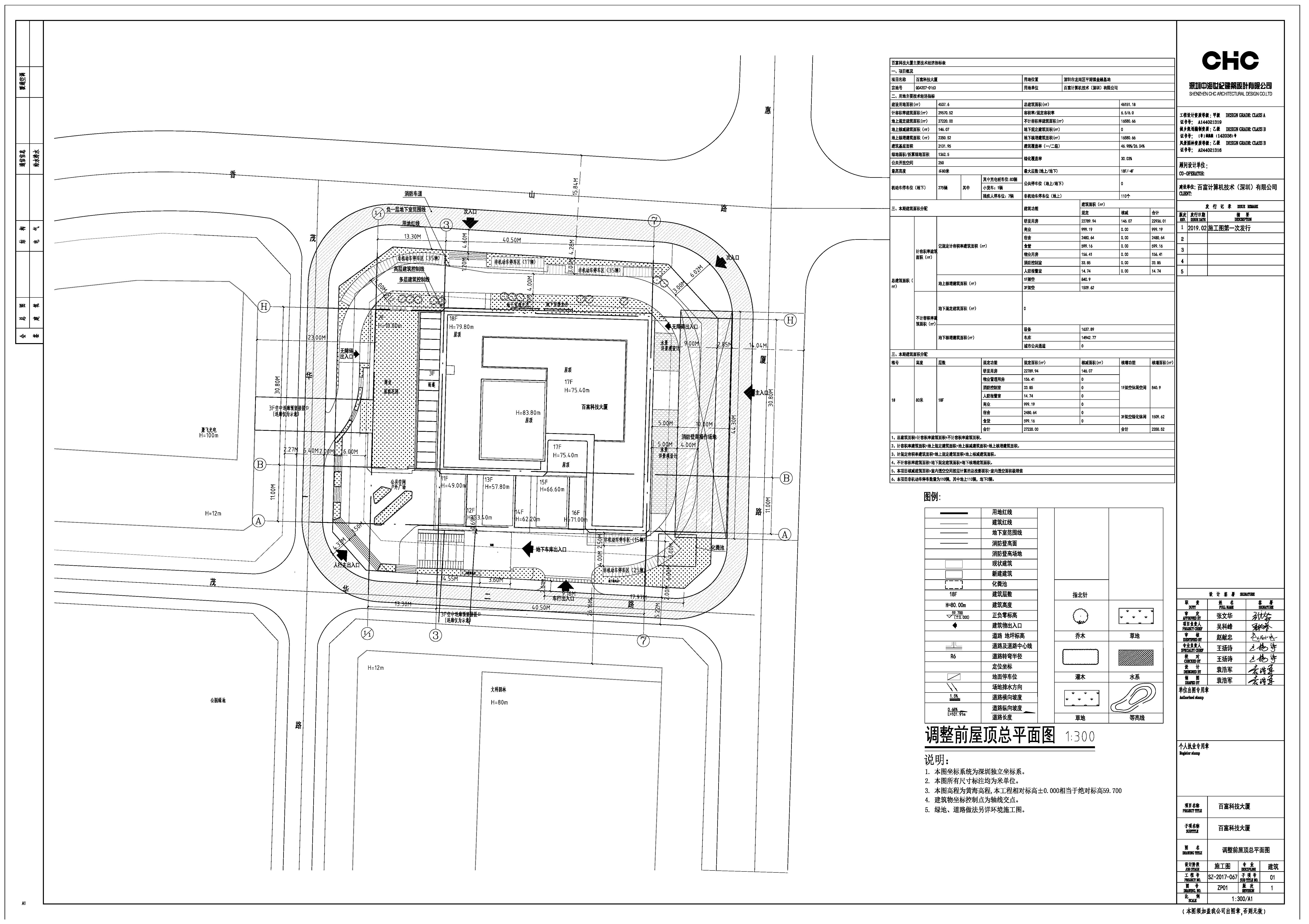
本次总平面图修改主要内容为:露台递进调整、增加一部出屋面楼梯、屋面往18F中庭外挑2米、部分经济技术指标调整等。具体内容详见修改后的项目总平面图中云线部分,修改后的规划指标仍符合《建设用地规划许可证》《土地使用权出让合同书》及相关文件中的规划要求。
根据《中华人民共和国行政许可法》及《中华人民共和国城乡规划法》的有关规定,现对上述修改内容予以公示,公示期为10个工作日,自2020年9月30日至2020年10月20日止。本公示自发布之日起,在深圳市规划和自然资源局网站(http://pnr.sz.gov.cn)、龙岗管理局一楼大厅(地址:龙岗区行政路2号建设大厦)及项目现场(地址:平湖街道山厦社区金融基地一期)同时进行展示。公示期间如果对该项目总平面图修改有任何意见和建议,请使用真实姓名及联系方式反馈至深圳市规划和自然资源局龙岗管理局(地址:龙岗区行政路2号建设大厦1105室)。公示期满无异议,将按规定办理相关手续。
特此公示
附件:1.修改前总平面图
2.修改后总平面图
深圳市规划和自然资源局龙岗管理局
2020年9月30日
(联系人:张工 联系电话:28918619)
相关文档:
