深圳市规划和自然资源局龙岗管理局关于公布布吉街道半山九年一贯制学校新建工程总平面图的公告
日期: 2025-01-10 来源:
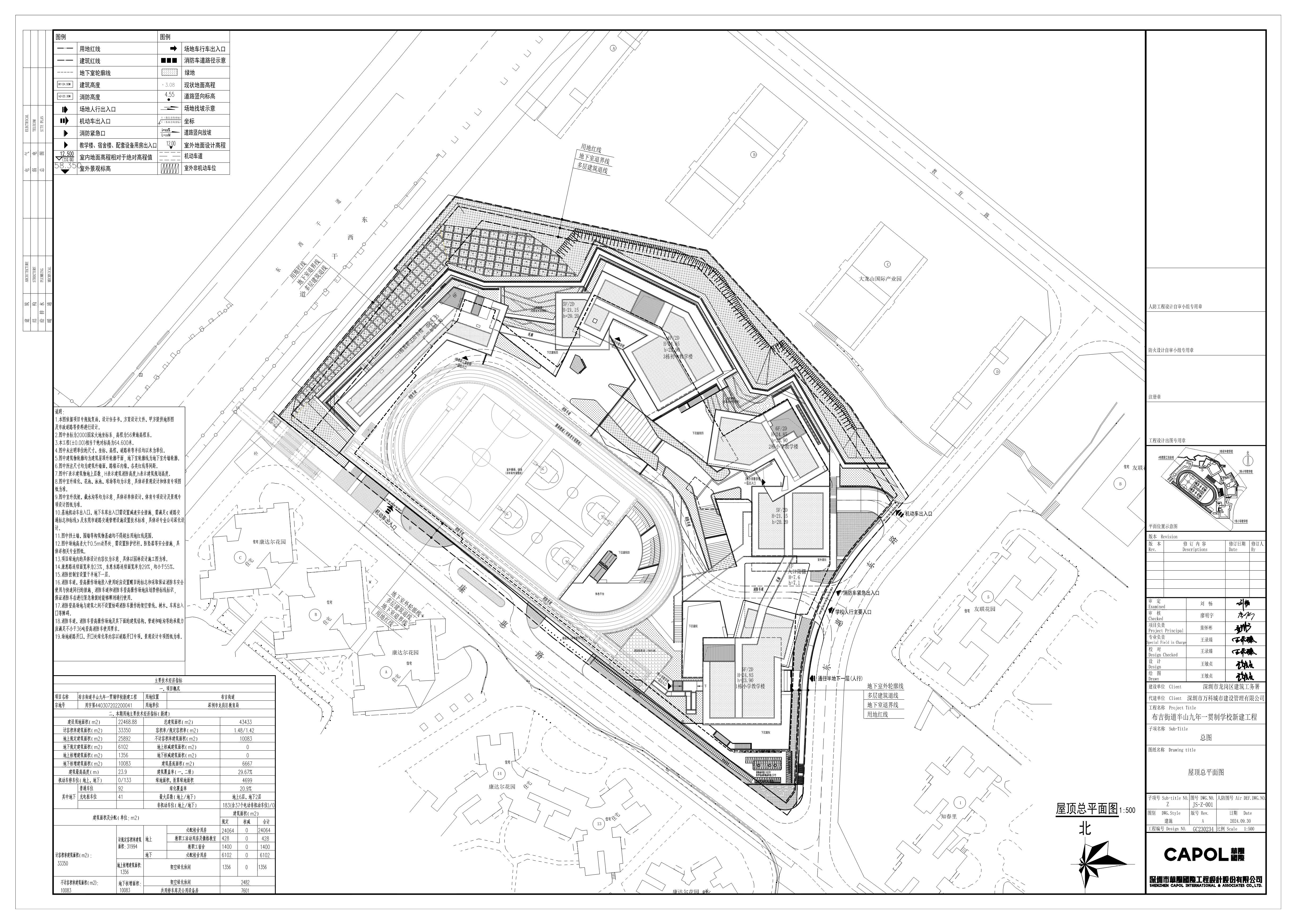
深圳市龙岗区教育局委托龙岗区建筑工务署来文申报布吉街道半山九年一贯制学校新建工程的建设工程规划许可证核发,现已取得《深圳市建设工程规划许可证》。
依据《中华人民共和国城乡规划法》相关规定,现对该项目总平面图予以公布。
特此公告。
附件:1.项目总平面图
2.深圳市建设工程规划许可证
3.深圳市建设工程设计文件核查意见书
深圳市规划和自然资源局龙岗管理局
2025年1月10日
相关文档:
