深圳市正弘鹏城实业发展有限公司,深圳市上木古股份合作公司来文申请办理正弘智荟广场的建设工程规划类许可证变更。经审查,现已取得《建设工程规划许可证》[建字第4403072025GG0255511(改1)号]。
根据《中华人民共和国城乡规划法》第四十条规定,现将本次核发的《建设工程规划许可证》及总平面图予以公布。
特此通告。
附件:1.建设工程规划许可证
2.建设工程设计文件核查表
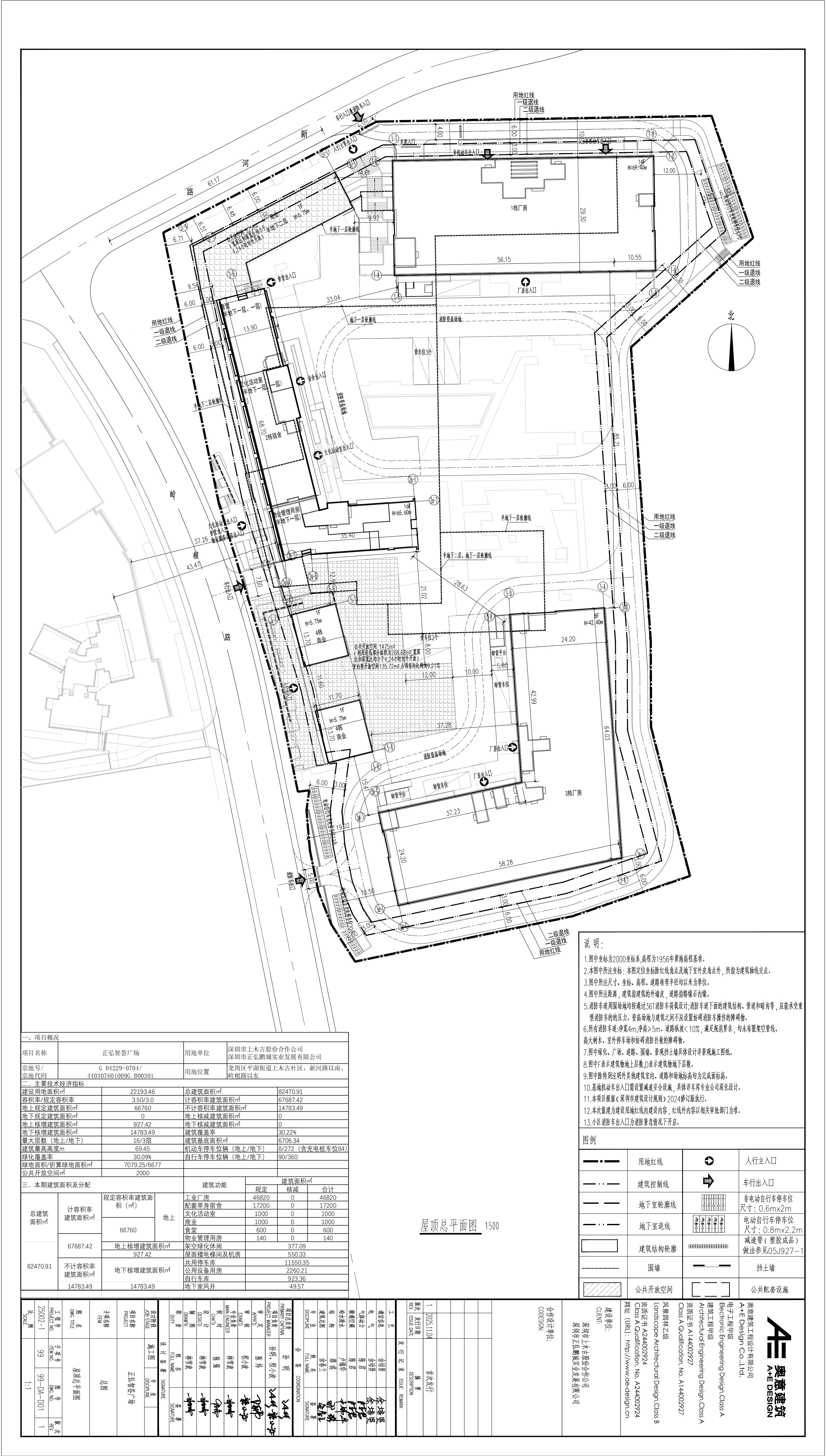
3.项目总平面图
深圳市规划和自然资源局龙岗管理局
2025年12月16日
附件:
| 索引号: | 11440300MB2C94128A/2025-03733 | 分类: | |
| 发布机构: | 深圳市规划和自然资源局 | 成文日期: | 2025-12-16 |
| 名称: | 深圳市规划和自然资源局龙岗管理局关于公布正弘智荟广场项目《建设工程规划许可证》及总平面图的通告 | ||
| 文号: | 发布日期: | 2025-12-18 | |
| 主题词: | |||
深圳市正弘鹏城实业发展有限公司,深圳市上木古股份合作公司来文申请办理正弘智荟广场的建设工程规划类许可证变更。经审查,现已取得《建设工程规划许可证》[建字第4403072025GG0255511(改1)号]。
根据《中华人民共和国城乡规划法》第四十条规定,现将本次核发的《建设工程规划许可证》及总平面图予以公布。
特此通告。
附件:1.建设工程规划许可证
2.建设工程设计文件核查表
3.项目总平面图
深圳市规划和自然资源局龙岗管理局
2025年12月16日
附件:
主办单位:深圳市规划和自然资源局 联系方式:0755-12345
粤公网安备44030402002979号
粤ICP备10039728-6 网站标识码:4403000033网络支持 IPv6 网络