 无障碍    长者助手 我的收藏   收藏
政府信息公开 规章库

深圳市规划和自然资源局政府信息公开

索引号: 11440300MB2C94128A/2025-03636 分类:
发布机构: 深圳市规划和自然资源局 成文日期: 2025-12-05
名称: 深圳市规划和自然资源局龙岗管理局关于深圳市公安消防支队大运城特勤消防中队工程项目总平面图修改事宜的公示
文号: 发布日期: 2025-12-09
主题词:
【打印】 【字体:    

深圳市规划和自然资源局龙岗管理局关于深圳市公安消防支队大运城特勤消防中队工程项目总平面图修改事宜的公示

发布日期:2025-12-09  浏览次数:-

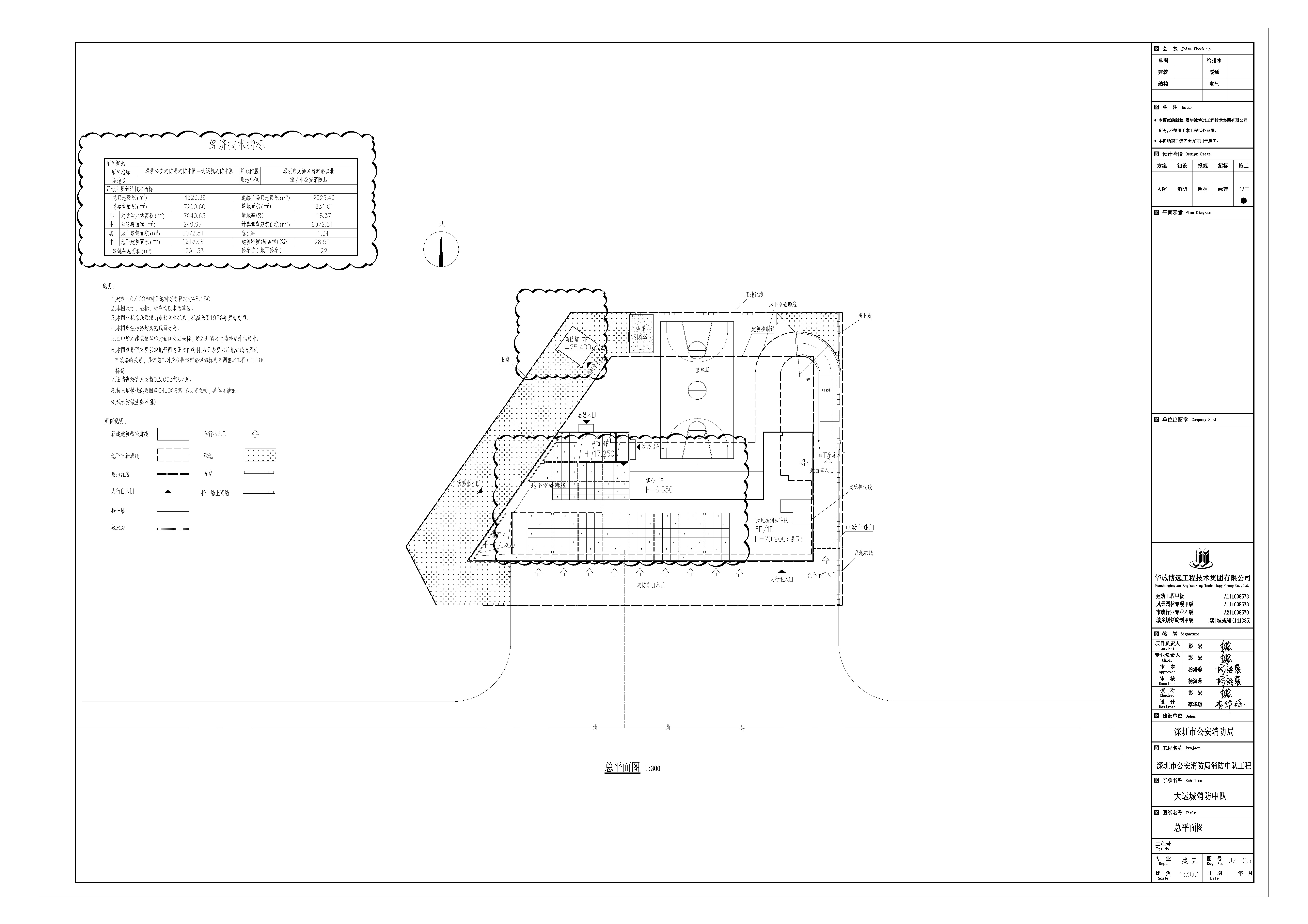
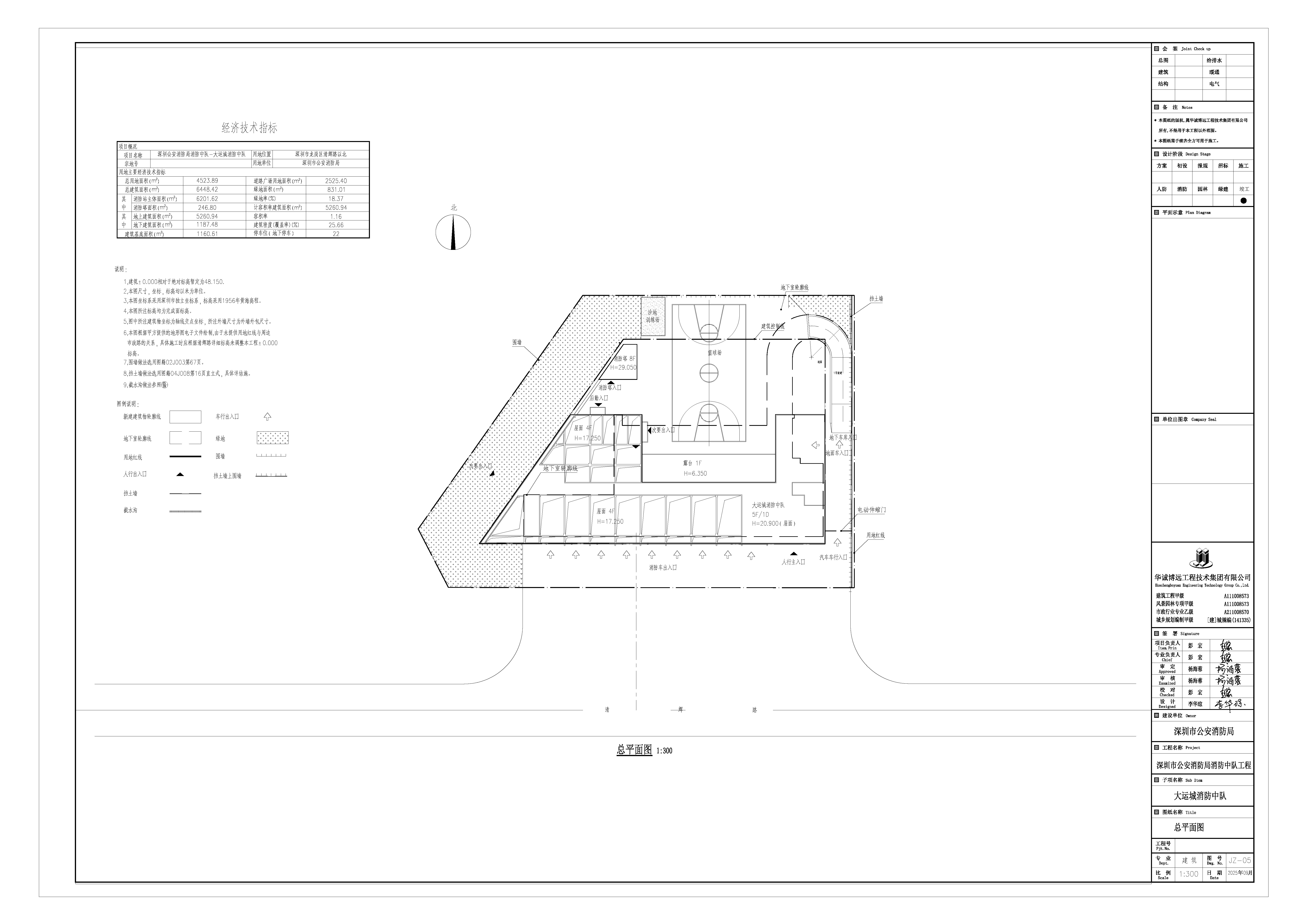
  深圳市消防救援支队(深圳市消防救援局)向我局申请办理变更深圳市公安消防支队大运城特勤消防中队工程项目的《建设工程规划许可证》(建筑类),项目位于龙城街道,用地面积4523.89平方米,于2010年12月8日取得《建设工程规划许可证》(深规土建许字LG-2010-0127号)。本次申请修改内容涉及已批总平面图相关内容调整(详见云线圈注部分)。现根据《中华人民共和国城乡规划法》相关规定予以公示。

  一、修改内容

  (一)消防塔位置由E轴-F轴交01轴-2/5轴处调整到X-A轴-X-B轴交X-1轴-X-2轴处,轮廓调整。

  (二)JZ-12屋面层平面图增加玻璃雨棚。

  (三)修改总图经济技术指标,详总平面图。

  二、公示日期

  公示期为10个工作日(2025年12月5日至2025年12月18日)。

  三、公示渠道

  (一)实地公示

  1.深圳市规划和自然资源局龙岗管理局

  地址:深圳市龙岗区龙城街道行政路2号建设大厦一楼大厅;

  2.项目现场

  地址:深圳市龙岗区龙城街道大运城特勤消防中队

  (二)网上公示

  1.深圳市规划和自然资源局门户网站

  网址:http://pnr.sz.gov.cn

  2.深圳市规划和自然资源局龙岗管理局门户网站

  网址:http://pnr.sz.gov.cn/lg/

  四、意见反馈

  公示期间如对该事项有意见或建议,请使用真实姓名及有效联系方式将意见通过邮寄或电子邮件反馈:

  (一)邮寄。邮寄地址:深圳市龙岗区龙城街道行政路2号建设大厦812室;收件人:建筑设计科1101室,李工;联系电话:0755-28916910;并在信封上注明“深圳市公安消防支队大运城特勤消防中队工程项目”字样(日期以邮戳为准)。

  (二)电子邮件。请将意见发至邮箱:laishh@pnr.sz.gov.cn,邮件标题请按“深圳市公安消防支队大运城特勤消防中队工程项目公示意见+姓名(或单位名称)”格式填写。

  公众意见征询截止日期为2025年12月18日。深圳市规划和自然资源局龙岗管理局将按相关规定对公众意见进行研究和处理。

  特此公示。 

  附件:1.修改前总平面图      

  2.修改后总平面图

  深圳市规划和自然资源局龙岗管理局

  2025年12月5日


附件:

1.修改前总平面图.jpeg

2.修改后总平面图.jpeg