 无障碍    长者助手 我的收藏   收藏
政府信息公开 规章库

深圳市规划和自然资源局政府信息公开

索引号: 11440300MB2C94128A/2023-00527 分类:
发布机构: 深圳市规划和自然资源局 成文日期: 2023-02-24
名称: 深圳市规划和自然资源局龙岗管理局关于鹏润达总部大厦项目总平面图修改的公示
文号: 发布日期: 2023-02-27
主题词:
【打印】 【字体:    

深圳市规划和自然资源局龙岗管理局关于鹏润达总部大厦项目总平面图修改的公示

发布日期:2023-02-27  浏览次数:-

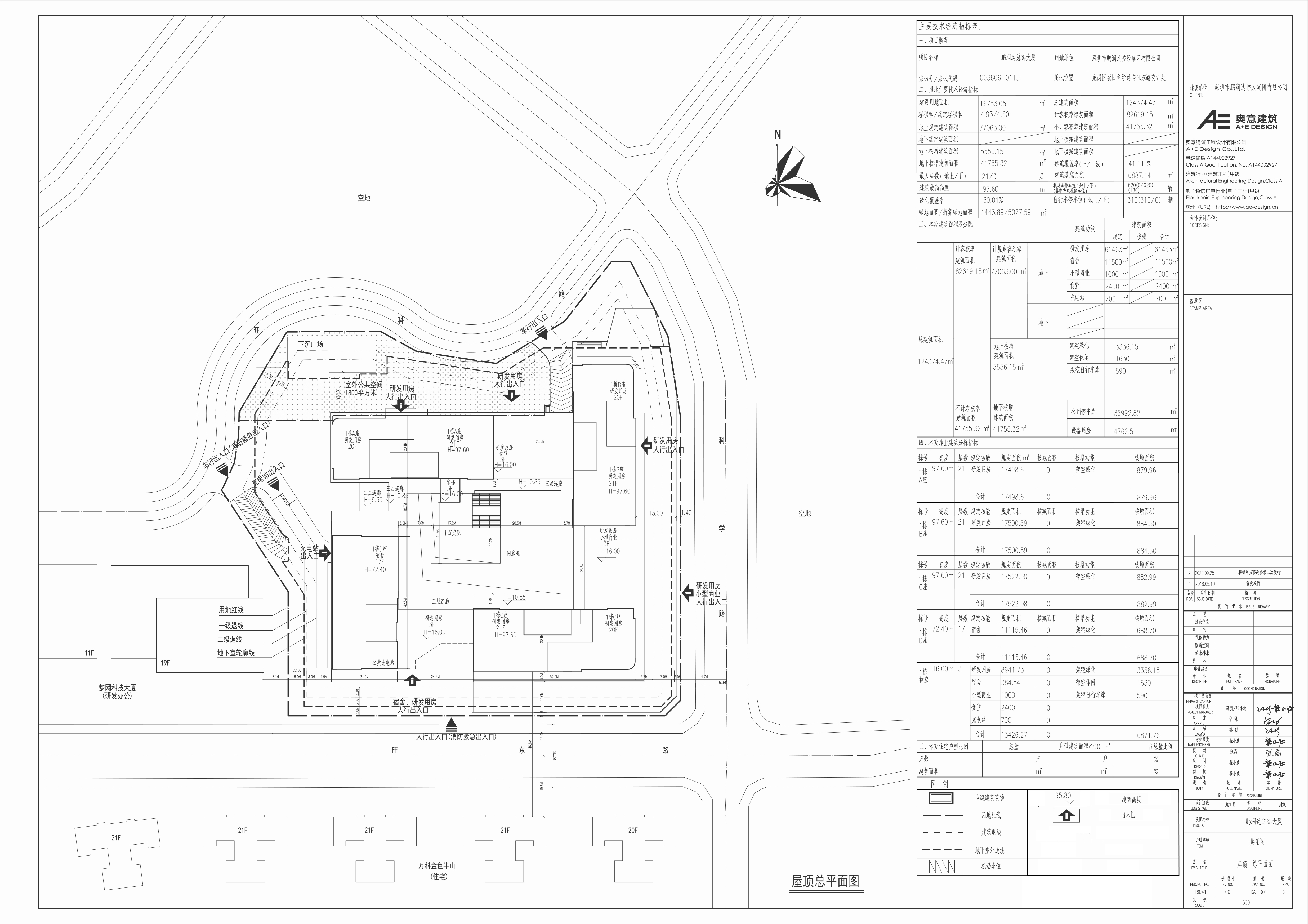
  深圳市鹏润达控股集团有限公司申请办理鹏润达总部大厦(G03606-0115号宗地)的建设工程规划许可证变更,本次申请涉及已批总平面图相关内容调整,主要修改内容为:

  1.主要经济技术指标表中相关指标调整;坐标系、出图日期及版次调整。

  2.根据周边市政道路标高调整场地竖向标高,相应调整建筑物高度,其中AC座由97.6米调整为97.85米、B座由97.6米调整为93.35米(层数由21层调整为20层)、D座由72.4米改为81.45米(层数由17层调整为23层)。

  3.调整景观绿化范围;用地北侧下沉庭院电梯与扶梯互换位置,中部下沉庭院楼梯疏散由往北侧改为往南侧;补充消防救援场地;补充用地北侧建筑及建筑间距;建筑物轮廓调整;裙房屋面东侧增加加压机房、走廊增加盖顶造型;C座屋顶增加高位水箱;D座宿舍由双层床调整为单层床,层高由3.9米调整为3.1米,并调整宿舍布局。

  以上修改内容详见云线圈注部分,修改后的各项技术指标等仍符合相关规划及规范要求。

  根据《中华人民共和国行政许可法》及《中华人民共和国城乡规划法》的规定,现对该项目的总平面图修改内容予以公示,公示期为10个工作日(2023年2月24日至2023年3月9日),本公示内容和修改前后总平面图同时在深圳市规划和自然资源局网站(http://pnr.sz.gov.cn)、深圳市规划和自然资源局龙岗管理局网站(http://pnr.sz.gov.cn/lg/)及项目现场(龙岗区坂田街道科学路和旺东路交会处西北侧)一并公示。如对该项目总平面图修改有任何意见和建议,请在公示期内使用真实姓名及联系方式以书面形式反馈至深圳市规划和自然资源局龙岗管理局(地址:龙岗区中心城行政路2号建设大厦)。公示期满无异议,市规划和自然资源局龙岗管理局将按规定办理批准手续。

  特此公示。

  附件:1.屋顶总平面图(修改前)

  2.屋顶总平面图(修改后)

深圳市规划和自然资源局龙岗管理局

2023年2月24日

  (联系人:张工,联系电话:0755-28918619)


附件:

1.屋顶总平面图(修改前).jpg

2.屋顶总平面图(修改后).jpg