 无障碍    长者助手 我的收藏   收藏
政府信息公开 规章库

深圳市规划和自然资源局政府信息公开

索引号: 11440300MB2C94128A/2022-02889 分类:
发布机构: 深圳市规划和自然资源局 成文日期: 2022-09-30
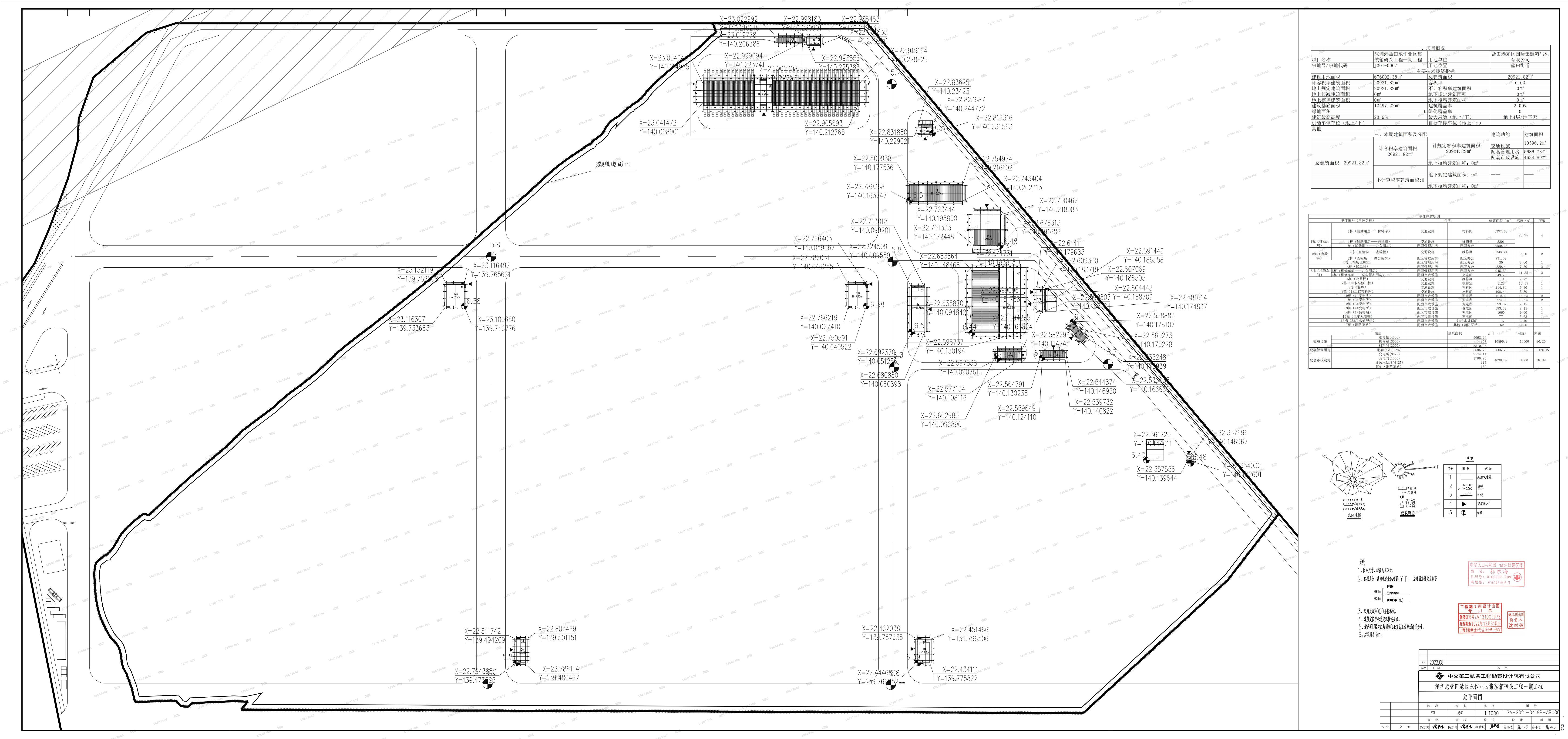
名称: 市规划和自然资源局盐田管理局关于公布深圳港盐田港东作业区集装箱码头一期工程(南地块)项目总平面图的通告
文号: 发布日期: 2022-10-01
主题词:
【打印】 【字体:    

市规划和自然资源局盐田管理局关于公布深圳港盐田港东作业区集装箱码头一期工程(南地块)项目总平面图的通告

发布日期:2022-10-01  浏览次数:-

  深圳港盐田港东作业区集装箱码头一期工程(南地块)项目位于盐田区盐田街道,土地用途为区域交通用地,宗地号为J301-0007,用地面积676002.38㎡,总规定建筑面积20921.82㎡,其中交通设施10596.2㎡,配套管理用房5686.73㎡,配套市政设施4638.89㎡。

  经市规划和自然资源局盐田管理局审查,同意核发《建设工程规划许可证》(深规划资源建许字YT-2022-0007号),根据《中华人民共和国城乡规划法》第四十条的规定,现将本次审定的总平面图予以公布。

  本通告及总平面图具体内容同时在深圳市规划和自然资源局网站(http://pnr.sz.gov.cn)、深圳市规划和自然资源局盐田管理局网站(http://pnr.sz.gov.cn/yt/)予以公布。

  附件:深圳港盐田港东作业区集装箱码头一期工程(南地块)项目总平面图

深圳市规划和自然资源局盐田管理局

2022年9月30日


附件:

1.深圳港盐田港东作业区集装箱码头一期工程(南地块)项目总平面图.jpg