市规划和自然资源局盐田管理局关于安居云畔项目总平面图修改公示的通告
日期: 2022-08-01 来源:
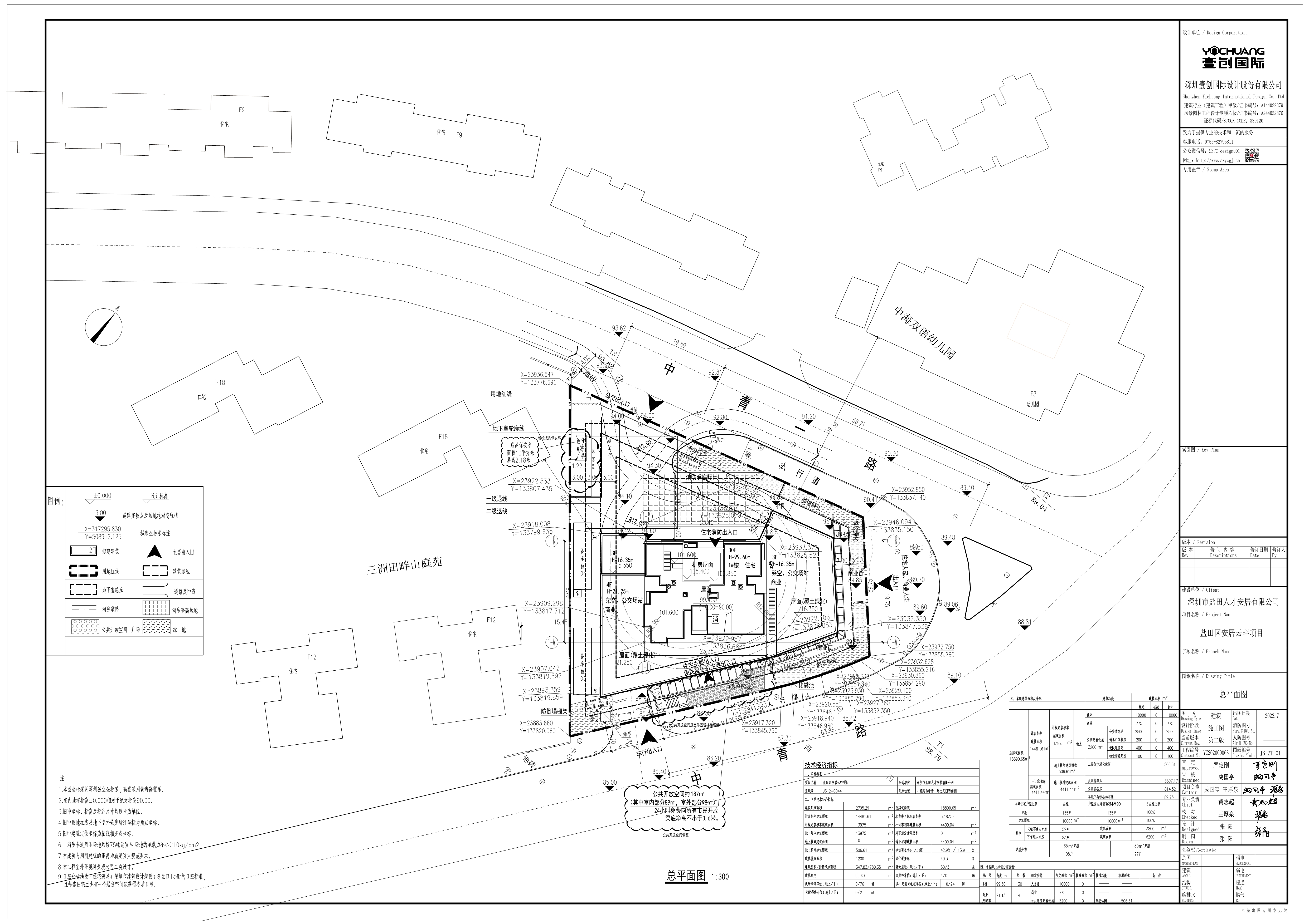
该项目位于盐田区后方陆域西南地区中青路与中青一路交会处,土地用途为二类居住用地,宗地号为J312-0044,用地面积为2795.29平方米,用地单位为深圳市盐田人才安居有限公司。该项目于2020年11月取得《建设工程规划许可证》[YT-2020-0024号],现用地单位申请对原已批总平面图进行修改,主要修改内容为:
用地南侧室外景观楼梯向西移动0.6米,梯段宽度由2.25米改为1.5米,楼梯宽度平台由2.1米改为1.5米;用地南侧公共开放空间面积由150平方米改为187平方米(其中室内部分为89平方米、室外部分为98平方米);西北角落客区增设成品保安亭,建筑投影面积为10平方米,层高为2.18米,不计建筑面积,建筑退红线为1.22米。
以上修改内容详见修改后总平面图中云线圈注部分。修改后的各项规划指标等仍符合《建设用地规划许可证》(深规划资源许YT-2020-0010号)、《土地使用权出让合同书》(深地合字〔2020〕3001)的相关规划要求。
根据《中华人民共和国行政许可法》第四十七条及《中华人民共和国城乡规划法》第五十条的规定,现对该项目图纸修改予以公示,公示期为10个工作日(2022年8月1至2022年8月12日)。如对该项目屋顶总平面图修改有任何意见和建议,请在公示期内使用真实姓名及联系方式以书面形式反馈至深圳市规划和自然资源局盐田管理局(地址:盐田区海景路十号,邮编:518081)。相关利害关系人享有要求听证的权利,在公示期内提出听证申请的,深圳市规划和自然资源局盐田管理局将在二十日内组织听证。公示期满如无人提出申请,深圳市规划和自然资源局盐田管理局将按规定办理批准手续。
本通告内容和修改前后的屋顶总平面图等具体内容同时在深圳市规划和自然资源局网站(http://pnr.sz.gov.cn)及项目现场一并公示(联系人:吴工,联系电话:25361178)。
附件:1.屋顶总平面图(修改前)
2.屋顶总平面图(修改后)
深圳市规划和自然资源局盐田管理局
2022年8月1日
相关文档:
