市规划和自然资源局盐田管理局关于公布百果园科技大厦项目总平面图的通告
日期: 2021-11-17 来源:
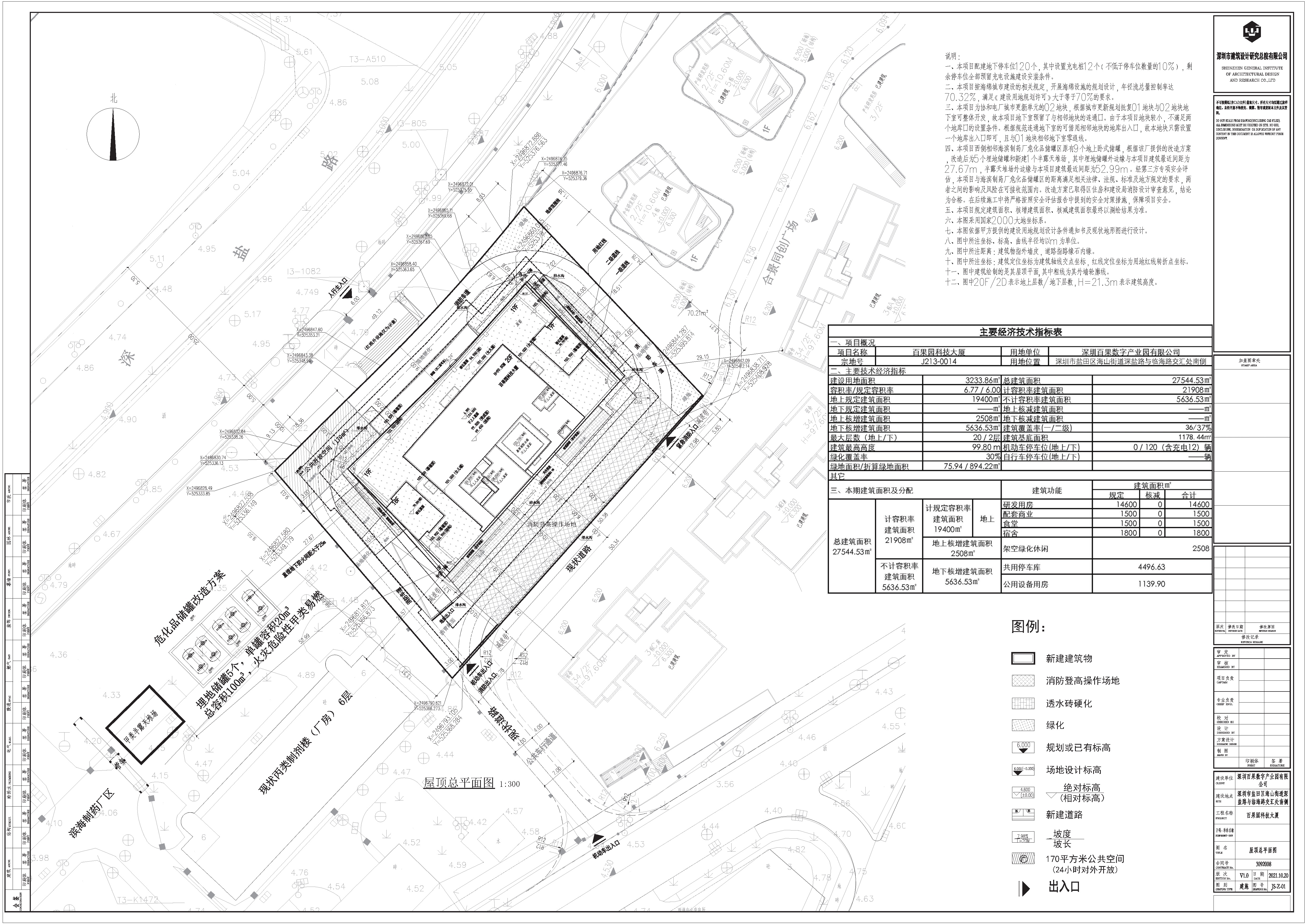
百果园科技大厦项目位于盐田区海山街道深盐路与临海路交汇处南侧,土地用途为新型产业用地,宗地号为J213-0014,用地面积3233.86㎡,总规定建筑面积19400㎡,其中研发用房14600㎡、配套商业1500㎡、食堂1500㎡、宿舍1800㎡。
经深圳市规划和自然资源局盐田管理局审查,同意核发《建设工程规划许可证》(深规划资源建许字YT-2021-0008号)。根据《中华人民共和国城乡规划法》第四十条的规定,现将本次审定的总平面图予以公布。
本通告及总平面图具体内容同时在深圳市规划和自然资源局网站(http://pnr.sz.gov.cn)予以公布。
附件:百果园科技大厦项目总平面图
深圳市规划和自然资源局盐田管理局
2021年11月17日
(联系人:吴工,联系电话:25361178)
相关文档:
