深圳市规划和自然资源局盐田管理局关于海苑居项目总平面图修改公式的通告
日期: 2020-08-28 来源:
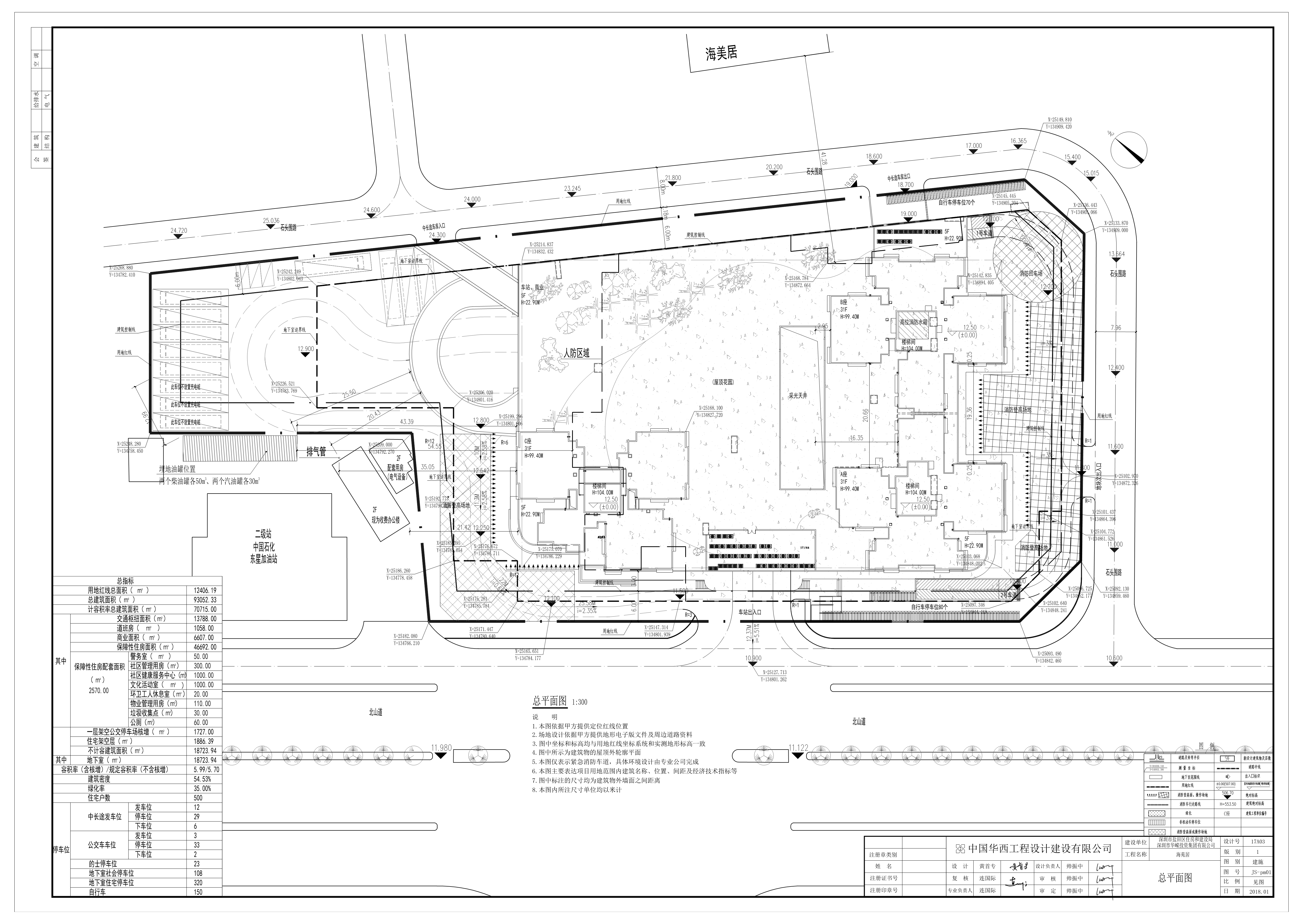
海苑居项目位于盐田区惠盐高速与永安路交界处以北,宗地号为J312-0307,总用地面积12406.19㎡。用地单位为盐田区人民政府,该项目于2018年4月取得《建设工程规划许可证》(深规土建许字YT-2018-0002号)。现用地单位委托盐田区住房和建设局申请对原已批总平面图进行修改,主要修改内容为:
一、建筑高度修改:A座楼梯间屋顶高度由104.00M修改为105.20M;B座楼梯间屋顶高度由104.00M修改为108.20M;C座楼梯间屋顶高度由104.00M修改为105.20M;A、B、C座的建筑高度均由99.40M改为99.35M。
二、建筑设计局部修改:增加主入口雨棚由原二层修改至三层;增加主入口两侧踏步、花池,调整个别自行车停车位位置;增加主入口右侧2号车道混凝土顶盖;增加裙房四层北侧疏散通道;修改北侧地下室楼梯出地面轮廓。
三、主要经济技术指标修改:分栋指标表中A、B、C座塔楼建筑高度99.40M修改为99.35M;增加地下室建筑面积指标明细,具体建筑面积指标为:交通枢纽专用地下车库及设备用房4696.36㎡、其余地下车库及设备用房14027.58㎡;明确停车位中地上中长途车位29个及公交车车位33个。
以上修改内容详见修改后总平面图中云线圈注部分。修改后的各项规划指标等仍符合《建设用地规划许可证》《土地使用权出让合同书》的相关规划要求。
根据《中华人民共和国行政许可法》第四十七条及《中华人民共和国城乡规划法》第五十条的规定,现对该项目图纸修改予以公示,公示期10个工作日(2020年8月28至2020年9月6日)。如对该项目屋顶总平面图修改有任何意见和建议,请在公示期内使用真实姓名及联系方式以书面形式反馈至深圳市规划和自然资源局盐田管理局(地址:盐田区海景路十号,邮编:518081)。相关利害关系人享有要求听证的权利,在公示期内提出听证申请的,深圳市规划和自然资源局盐田管理局将在二十日内组织听证。公示期满如无人提出申请,深圳市规划和自然资源局盐田管理局将按规定办理批准手续。
本通告内容和修改前后的屋顶总平面图等具体内容同时在深圳市规划和自然资源局网站(http://pnr.sz.gov.cn)及项目现场一并公示(联系人:吴工;联系电话:25361178)。
附件:1.屋顶总平面图(修改前)1
2.屋顶总平面图(修改后)1
深圳市规划和自然资源局盐田管理局
2020年8月28日
相关文档:
