深圳市规划和自然资源局盐田管理局关于海曦小学项目总平面图修改公示的通告
日期: 2020-07-21 来源:
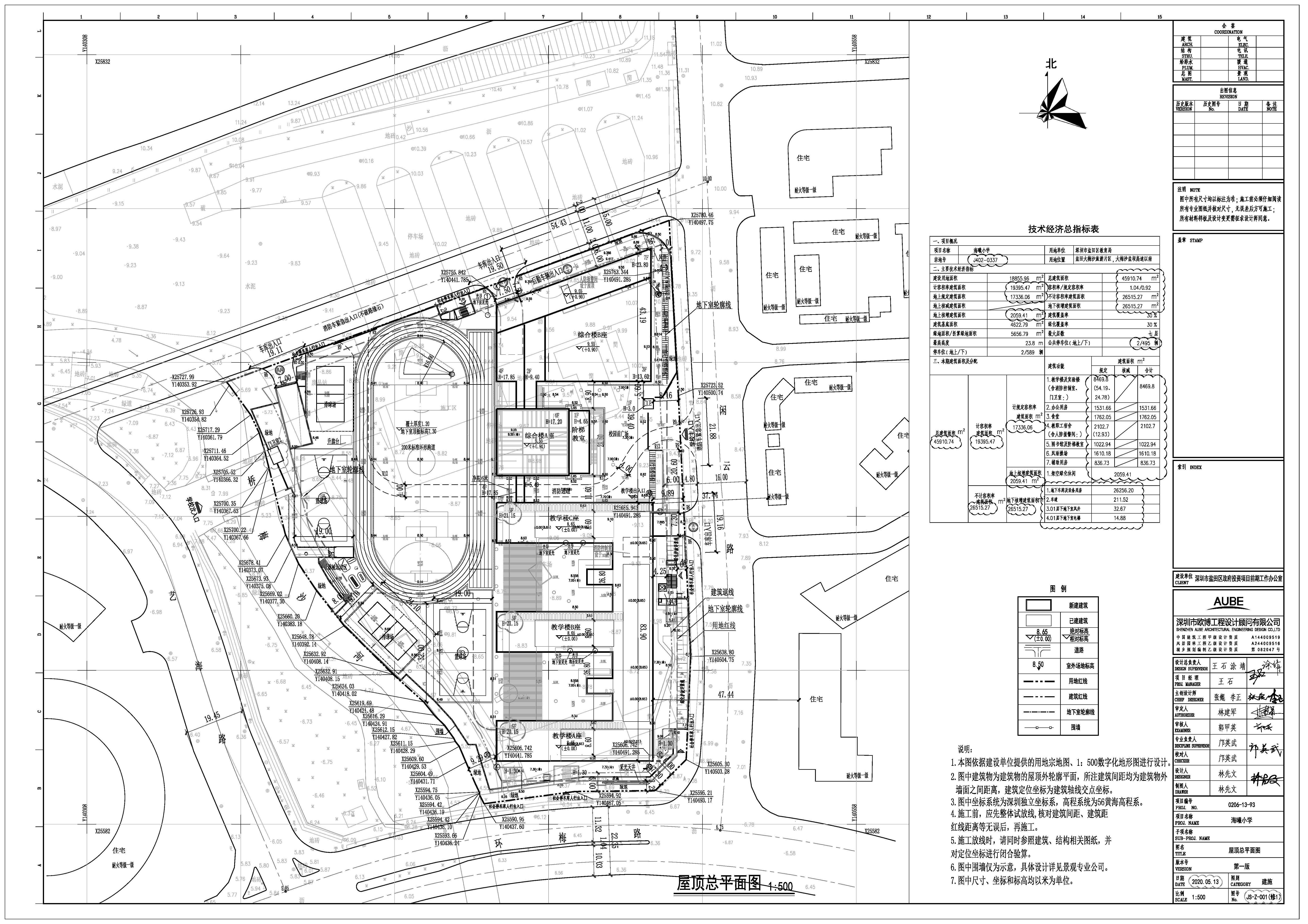
海曦小学项目位于盐田区大梅沙环梅路与闲云路交汇处以西,宗地号为J402-0337,总用地面积18855.96平方米。该项目于2015年10月取得《建设工程规划许可证》(深规土建许字BH-2015-0013号)。现用地单位申请对原已批总平面图进行修改,主要修改内容为:
一、教学楼层数由4层调整为5层,建筑高度由17.85米调整为21.15米。
二、用地西侧新增门卫室2。
三、主要经济技术指标修改:宗地号、停车位及各项面积指标调整。
以上修改内容详见修改后总平面图中云线圈注部分。修改后的各项规划指标等仍符合《建设用地规划许可证》《土地使用权出让合同书》的相关规划要求。
根据《中华人民共和国行政许可法》第四十七条及《中华人民共和国城乡规划法》第五十条的规定,现对该项目图纸修改予以公示,公示期10个工作日(2020年7月21至2020年8月3日)。如对该项目屋顶总平面图修改有任何意见和建议,请在公示期内使用真实姓名及联系方式以书面形式反馈至深圳市规划和自然资源局盐田管理局(地址:盐田区海景路十号,邮编:518081)。相关利害关系人享有要求听证的权利,在公示期内提出听证申请的,深圳市规划和自然资源局盐田管理局将在二十日内组织听证。公示期满如无人提出申请,深圳市规划和自然资源局盐田管理局将按规定办理批准手续。
本通告内容和修改前后的屋顶总平面图等具体内容同时在深圳市规划和自然资源局网站(http://pnr.sz.gov.cn)及项目现场一并公示(联系人:庄工;联系电话:25351813)。
附件:1.屋顶总平面图(修改前)
2.屋顶总平面图(修改后)
深圳市规划和自然资源局盐田管理局
2020年7月21日
相关文档:
