深圳市规划和自然资源局盐田管理局关于公布海心幼儿园项目总平面图的通告
日期: 2020-04-13 来源:
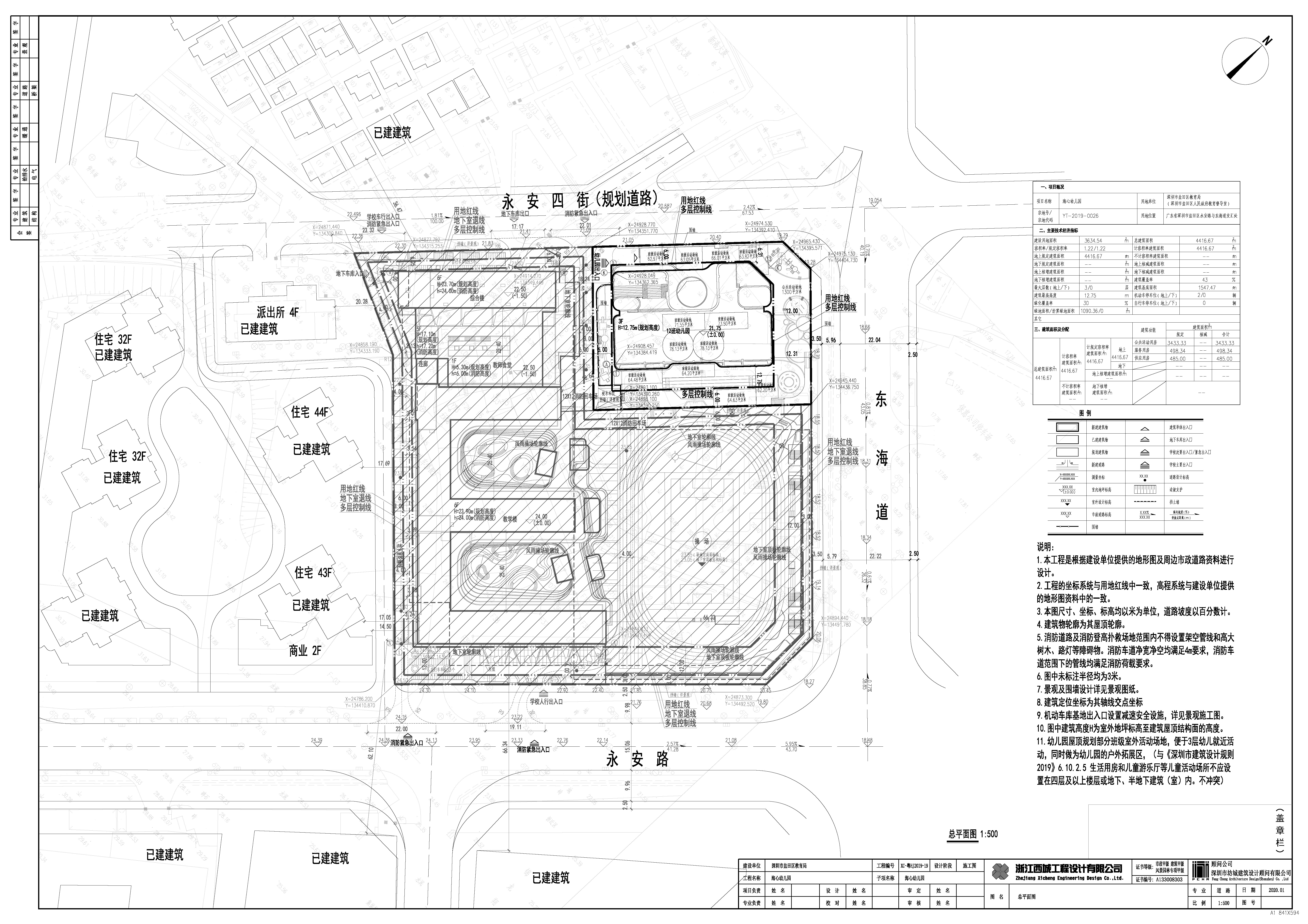
海心幼儿园项目位于盐田区永安路与东海道交汇处,建设用地面积3634.54㎡,土地用途为教育设施用地,允许建设规定建筑面积4416.67㎡,其中,公共活动用房3433.33㎡,服务用房498.34㎡,供应用房485㎡。
经深圳市规划和自然资源局盐田管理局核查,同意核发《建设工程规划许可证》(深规划资源建许字YT-2020-0012)。根据《中华人民共和国城乡规划法》第四十条的规定,现将本次审定的总平面图予以公布。
本通告及总平面图具体内容同时在深圳市规划和自然资源局网站(http://pnr.sz.gov.cn)予以公布。
附件:海心幼儿园项目总平面图
深圳市规划和自然资源局盐田管理局
2020年4月13日
(联系人:黄培桐,联系电话:25354341)
相关文档:
