深圳市规划和自然资源局盐田管理局关于公布万纬有信达供应链智能仓项目总平面图的通告
日期: 2020-03-17 来源:
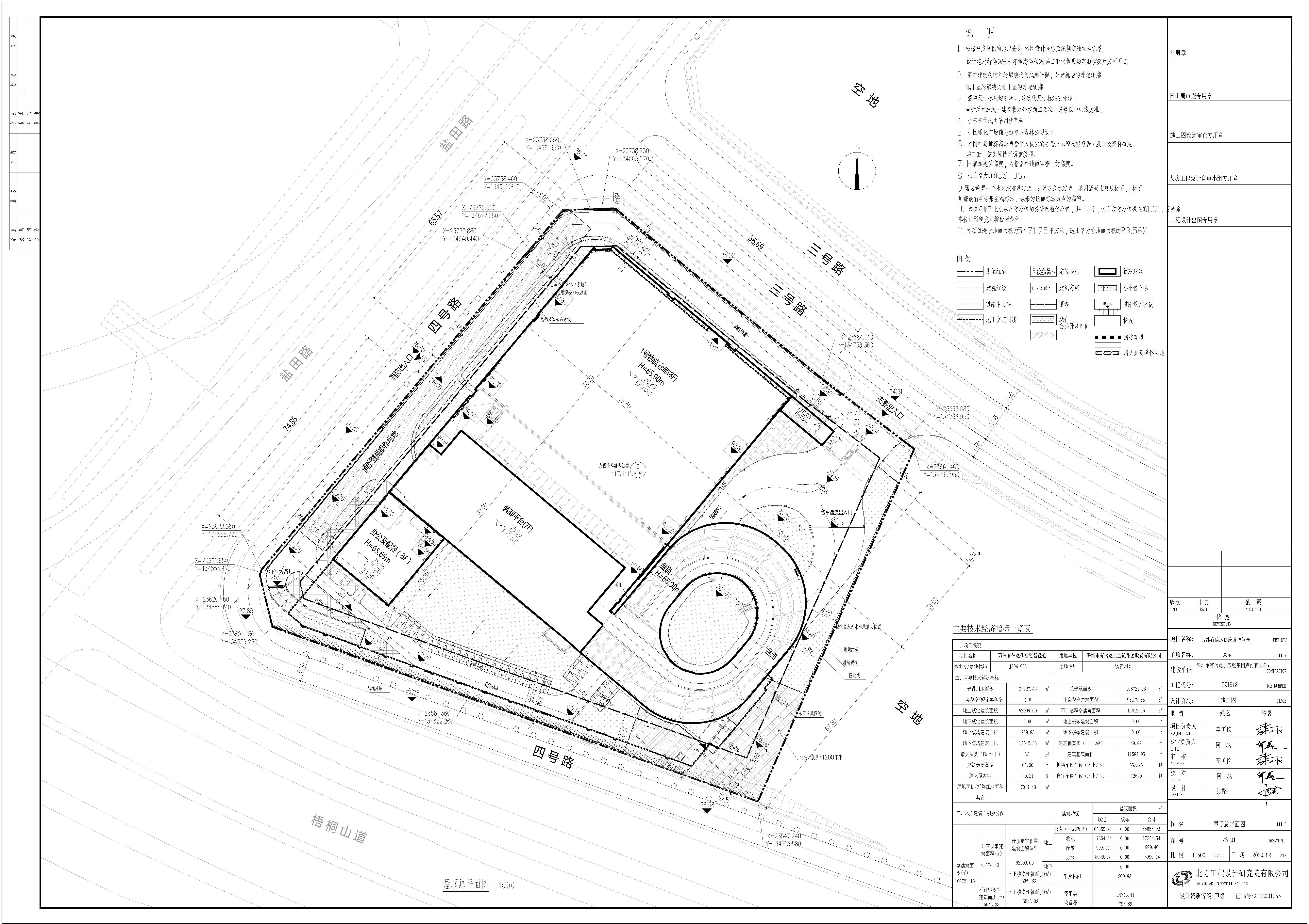
万纬有信达供应链智能仓项目位于盐田路与盐排高速交汇处以东,宗地号J306-0031,建设用地面积23227.43㎡,土地用途为物流用地。允许建设规定建筑面积92909㎡,其中仓库(非危险品)65655.92㎡,物流建筑17254.54㎡,配餐中心999.4㎡,配套办公8999.14㎡。
经深圳市规划和自然资源局盐田管理局审查,同意核发《建设工程规划许可证》(深规划资源建许字YT-2020-0006号)。根据《中华人民共和国城乡规划法》第四十条的规定,现将本次审定的总平面图予以公布。
本通告及总平面图具体内容同时在深圳市规划和自然资源局网站(http://pnr.sz.gov.cn)予以公布。
附件:万纬有信达供应链智能仓项目总平面图
深圳市规划和自然资源局盐田管理局
2020年3月17日
(联系人:吴工,联系电话:25361178)
相关文档:
