当前位置: 盐田管理局 > 通知公告

市规划和自然资源局盐田管理局关于盐港小学综合楼及校门改造工程设计总平面图公布的通告

日期: 2019-03-08    来源:

 

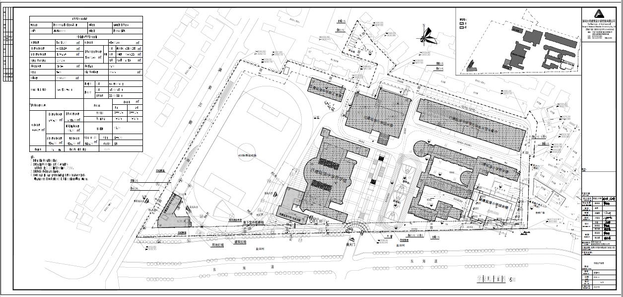
  盐港小学综合楼及校门改造工程位于盐田区盐田街道盐港小学院内。宗地号为J305-0070,总用地面积54731.07㎡。

  该项目于2019年3月核发《建设工程规划许可证》(深规土建许字YT-2019-0004号)。根据《中华人民共和国城乡规划法》第四十条的规定,现对盐港小学综合楼及校门改造工程的建设工程设计总平面图予以公布。

  我局将在以下网站进行发布,市民可登录下列网站浏览查询:pnr.sz.gov.cn。

  附件: 项目总平面图

  (联系人:张工,联系电话:25355994,传真:25356213)

  市规划和自然资源局盐田管理局

  2019年3月8日

相关文档:

项目总平面图.JPG


分享到:
 --