当前位置: 盐田管理局 > 通知公告

市规划和自然资源局盐田管理局关于公布盐田区第八期人才住房项目总平面图的通告

日期: 2019-07-25    来源:

 

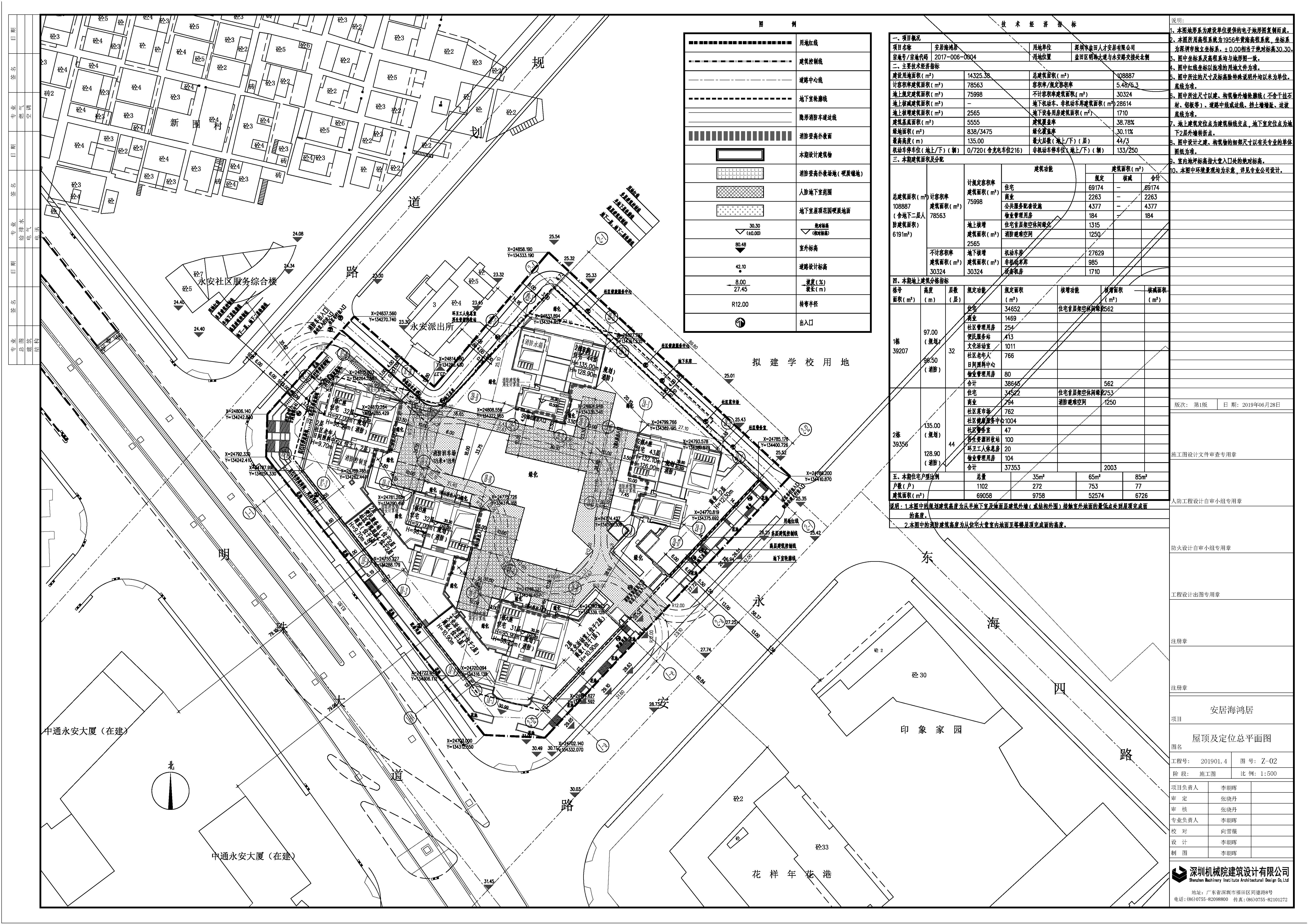
  深圳市盐田人才安居有限公司的盐田区第八期人才住房项目位于盐田区明珠大道与永安路交界处北侧,宗地号J311-0005,用地面积14325.38㎡,土地用途为二类居住用地,土地性质为非商品房。允许建设规定建筑面积75998㎡,其中住宅69174㎡、商业2263㎡、物业管理用房184㎡、公共服务配套设施4377㎡(含社区管理用房、社区警务室、便民服务站、社区菜市场、文化活动室、社区健康服务中心、社区老年人日间照料中心、再生资源回收站、环卫工人作息房)。

  经我局审查,同意核发该项目深规划资源建许字YT-2019-0005号《建设工程规划许可证》。根据《中华人民共和国城乡规划法》第四十条的规定,现将本次审定的总平面图予以公布。

  本通告内容及总平面图具体内容同时在深圳市规划和自然资源局网站(http://pnr.sz.gov.cn)予以公布。

  附件:屋顶总平面图

  市规划和自然资源局盐田管理局

  2019年7月25日

  (联系人:计工,联系电话:25361178)

相关文档:

屋顶总平面图.jpg


分享到:
 --