当前位置: 盐田管理局 > 通知公告

市规划和自然资源局盐田管理局关于220KV碧波(沙头角)输变电工程总平面图修改的公示

日期: 2019-08-16    来源:

 

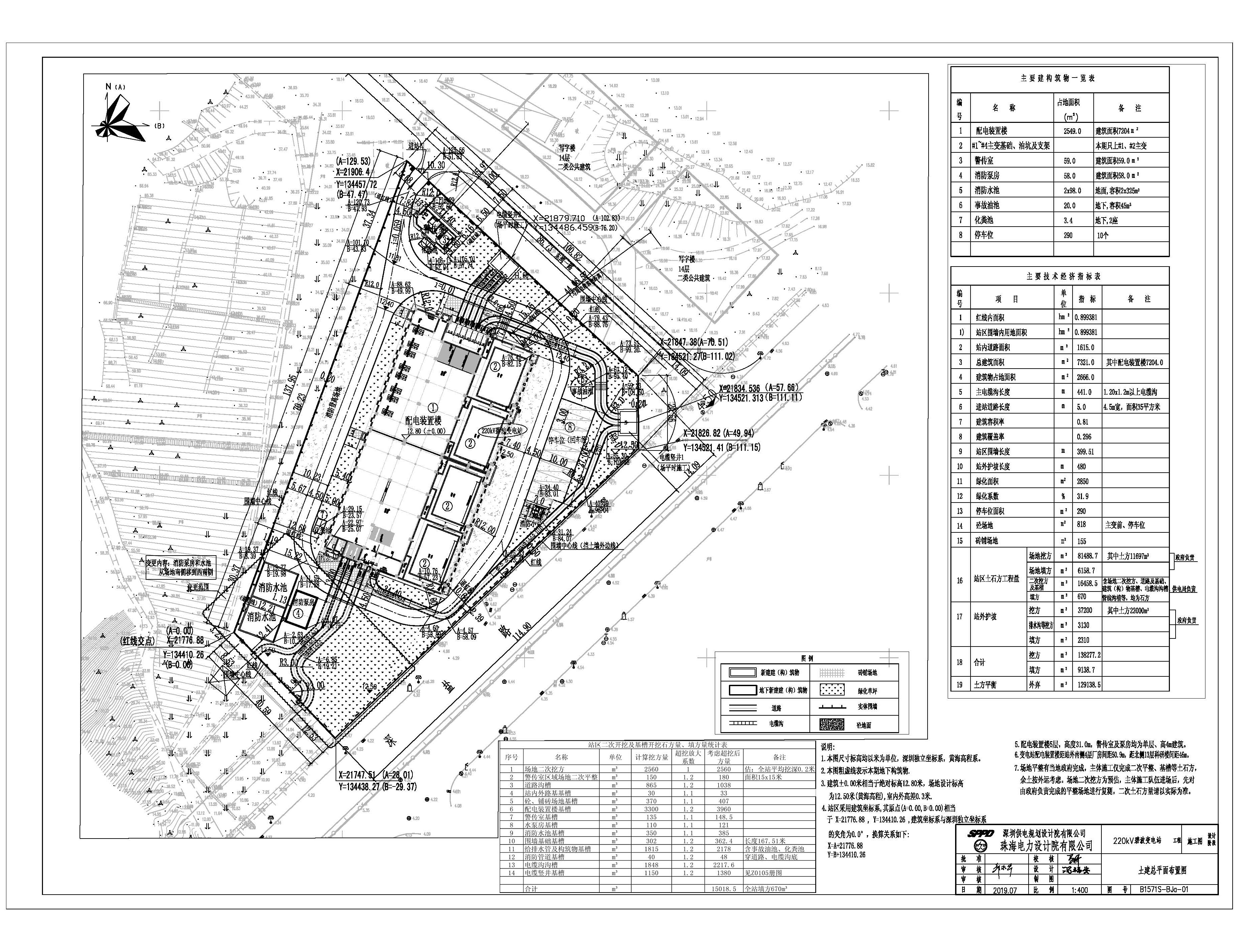
  220KV碧波(沙头角)输变电工程位于盐田区海山深盐路北侧J235-0019宗地。该项目于2018年8月20日取得《深圳市建设工程规划许可证》(深规土建许字YT-2018-0009号)。现建设单位申请对已批总平面图进行局部修改,修改内容为:消防泵房和消防水池从场地南侧移至西南侧。以上修改内容详见修改后的总平面布置图云线圈注部分。

  根据《中华人民共和国行政许可法》第四十七条及《中华人民共和国城乡规划法》第五十条的规定,现对该项目总平面图修改进行公示,公示期为十个工作日(2019年8月16日至2019年8月29日)。如对该项目总平面图修改有任何意见或建议,请在公示期间使用真实姓名及联系方式以书面形式反馈至深圳市规划和自然资源局盐田管理局(地址:盐田区海景路10号,邮编:518081)。相关利害关系人享有要求听证的权利,在公示期内提出听证申请的,我局将在二十日内组织听证。公示期满如无人提出申请,我局将按规定办理批准手续。

  本公示内容和修改前后的总平面图同时在深圳市规划和自然资源局网站(http://pnr.sz.gov.cn)及建设项目现场进行公示。

  附件:1.220KV碧波(沙头角)输变电工程总平面图(修改前)

  2.220KV碧波(沙头角)输变电工程总平面图(修改后)

  深圳市规划和自然资源局盐田管理局

  2019年8月16日

  (联系人:熊工,联系电话:25351813)

相关文档:

220KV碧波(沙头角)输变电工程总平面图(修改前).jpg

220KV碧波(沙头角)输变电工程总平面图(修改后).jpg


分享到:
 --