深圳市规划和自然资源局盐田管理局关于百果园科技大厦项目总平面图修改的通告
日期: 2023-09-19 来源:
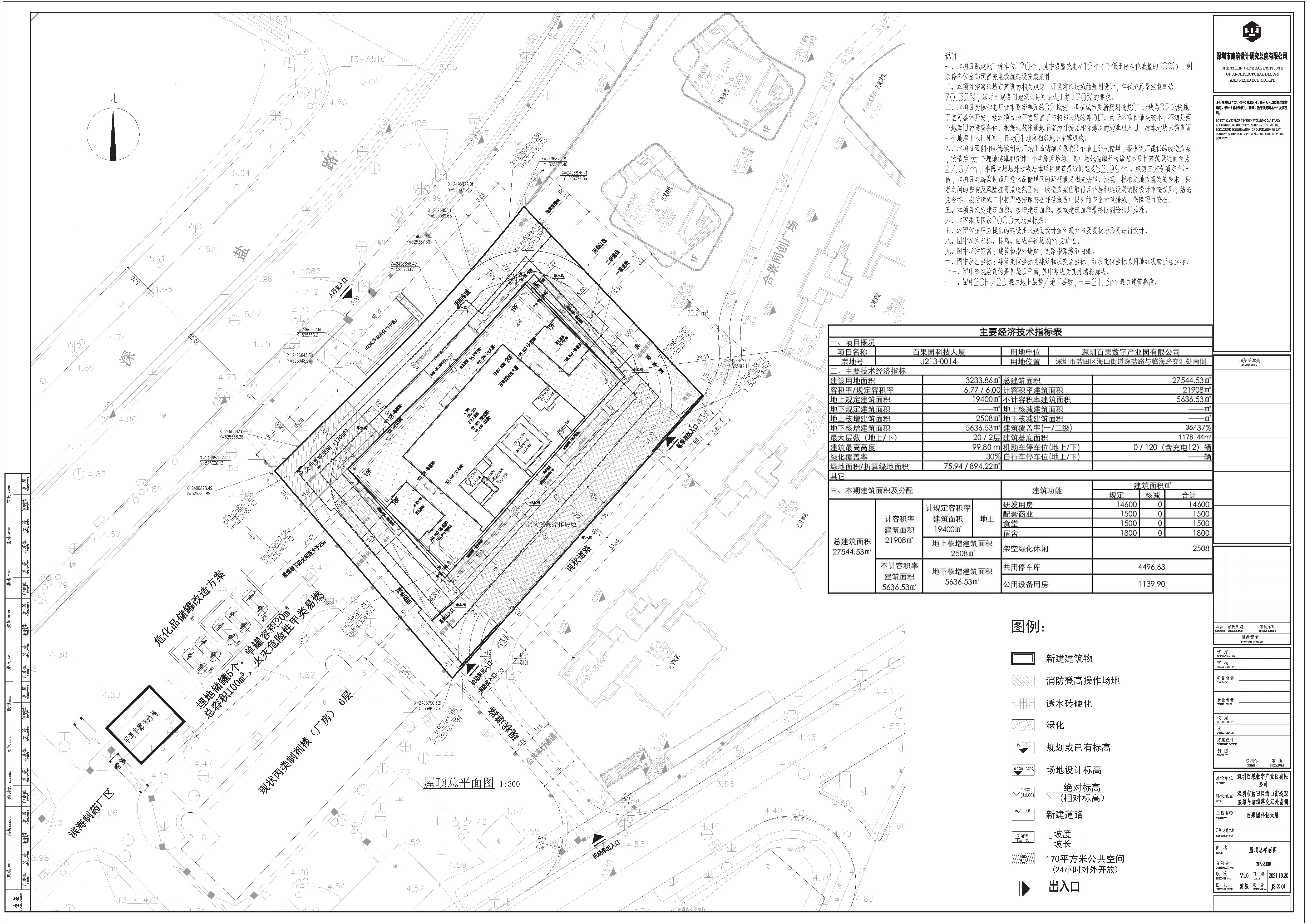
百果园科技大厦项目位于盐田区海山街道深盐路与临海路交汇处南侧,宗地号为J213-0014,用地面积3233.86㎡,土地用途为新型产业用地,用地单位为深圳百果数字产业园有限公司。现用地单位申请对原屋顶总平面图进行修改,主要修改内容如下:
西侧和东侧雨棚取消,南侧雨棚修改(原两个大雨棚修改为3个小雨棚,高度由6米改为2.7米);人防出入口修改至东北侧;在东侧绿地范围内增加面积为1.4㎡高度为1.5米的地下室出地面风井;幕墙顶部标高由103.9m改为100.95m;西北侧楼梯位置修改,占用公共开放空间,随之调整公共开放空间范围;地下室范围线东北侧局部修改;根据园林施工图纸,调整绿化边界形状;经济技术指标表内容局部调整等(具体内容详见修改后的屋顶总平面图圈云部分)。
根据《中华人民共和国行政许可法》第四十七条及《中华人民共和国城乡规划法》第五十条的规定,现对该项目总平面图予以公示,公示期为10个工作日(2023年9月19日至2023年10月8日)。如对该项目屋顶总平面图修改有任何意见和建议,请在公示期内使用真实姓名及联系方式以书面形式反馈至深圳市规划和自然资源局盐田管理局(地址:盐田区海景路十号,邮编:518081)。相关利害关系人享有要求听证的权利,在公示期内提出听证申请的,深圳市规划和自然资源局盐田管理局将在二十日内组织听证。公示期满如无人提出申请,深圳市规划和自然资源局盐田管理局将按规定办理批准手续。
本通告内容和修改前后的屋顶总平面图等具体内容同时在深圳市规划和自然资源局网站(http://pnr.sz.gov.cn)、深圳市规划和自然资源局盐田管理局网站(http://pnr.sz.gov.cn/yt/)及项目现场一并公示(联系人:吴工,联系电话:25361178)。
附件:1.屋顶总平面图(修改前)
2.屋顶总平面图(修改后)
深圳市规划和自然资源局盐田管理局
2023年9月19日
相关文档:
