深圳市规划和自然资源局盐田管理局关于盐田港普洛斯四期冷链仓库项目总平面图修改的通告
日期: 2023-08-25 来源:
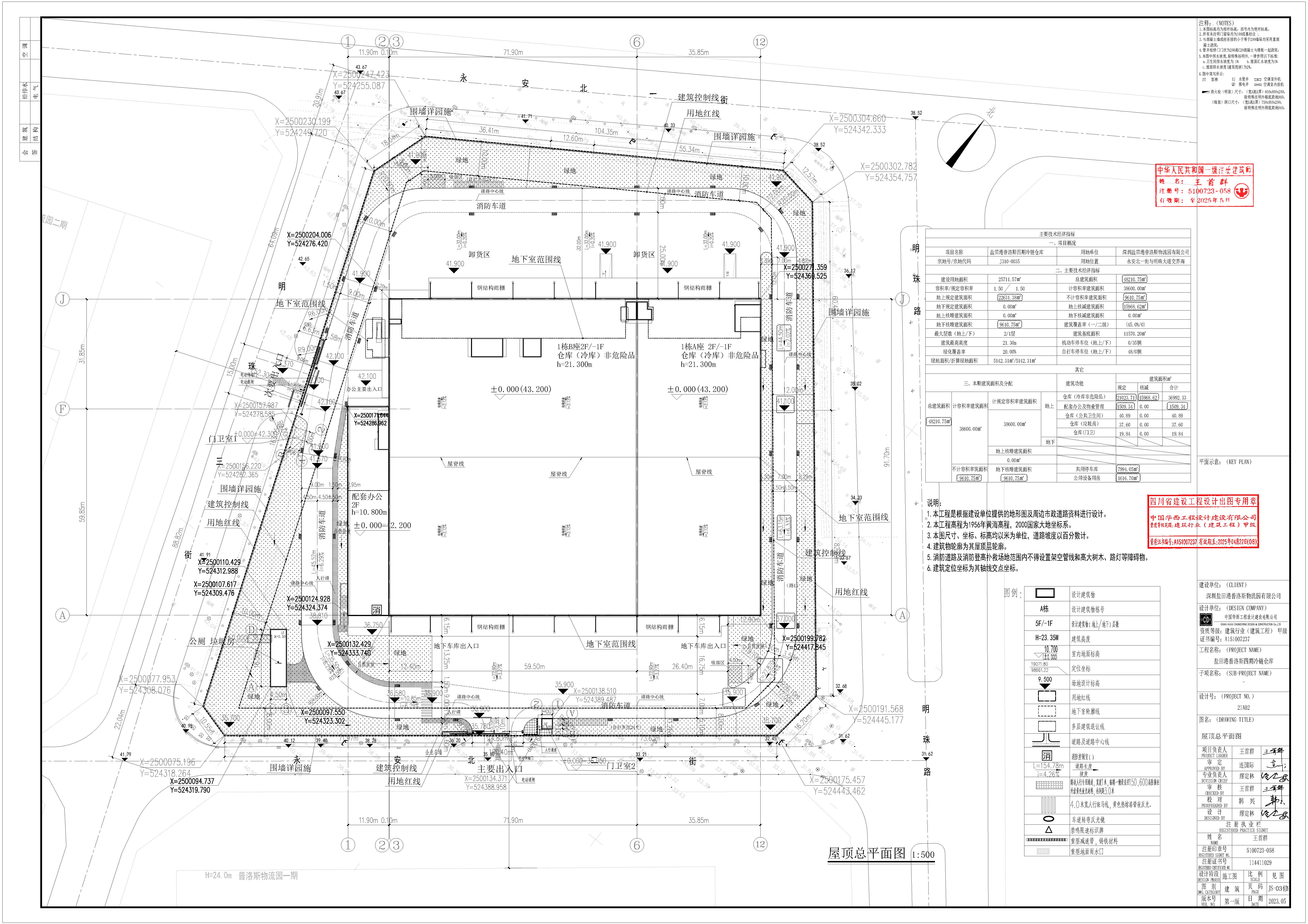
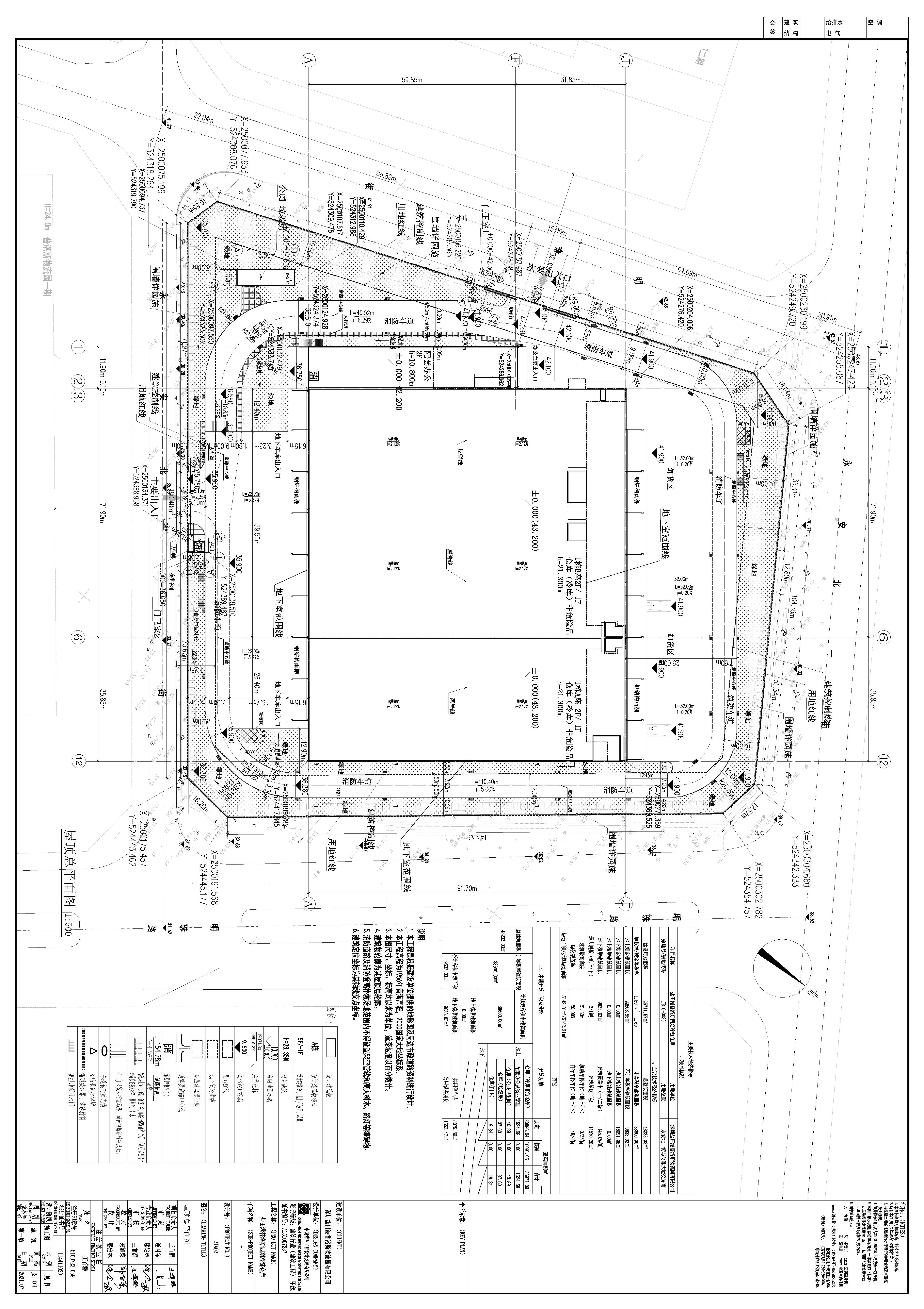
盐田港普洛斯四期冷链仓库项目位于盐田区盐田街道永安北二街北侧,宗地号为J310-0035,用地面积25711.57㎡,土地用途为仓储用地,性质为商品房,用地单位为深圳盐田港普洛斯物流园有限公司。该项目于2021年8月19日取得《建设工程规划许可证》(YT-2021-0006号),现用地单位申请对原《建设工程规划许可证》进行变更,主要变更内容如下:
总平面图增设人防出入口,调整技术经济指标表,具体指标及变更内容详见修改后总平面图中云线圈注部分,变更后的各项规划指标等仍符合《建设用地规划许可证》《土地使用权出让合同书》的相关规划要求。
根据《中华人民共和国行政许可法》第四十七条及《中华人民共和国城乡规划法》第五十条的规定,现对该项目总平面图予以公示,公示期为10个工作日(2023年8月25日至2023年9月7日)。如对该项目屋顶总平面图修改有任何意见和建议,请在公示期内使用真实姓名及联系方式以书面形式反馈至深圳市规划和自然资源局盐田管理局(地址:盐田区海景路十号,邮编:518081)。相关利害关系人享有要求听证的权利,在公示期内提出听证申请的,深圳市规划和自然资源局盐田管理局将在二十日内组织听证。公示期满如无人提出申请,深圳市规划和自然资源局盐田管理局将按规定办理批准手续。
本通告内容和修改前后的屋顶总平面图等具体内容同时在深圳市规划和自然资源局网站(http://pnr.sz.gov.cn)、深圳市规划和自然资源局盐田管理局门户网站(http://pnr.sz.gov.cn/yt/)及项目现场一并公示(联系人:陈工,联系电话:25354341)。
附件:1.屋顶总平面图(修改前)
2.屋顶总平面图(修改后)
深圳市规划和自然资源局盐田管理局
2023年8月25日
相关文档:
