市规划和自然资源局坪山管理局关于康泰健科技大楼项目(G14316-0114号宗地)总平面图的通告
日期: 2021-09-26 来源:
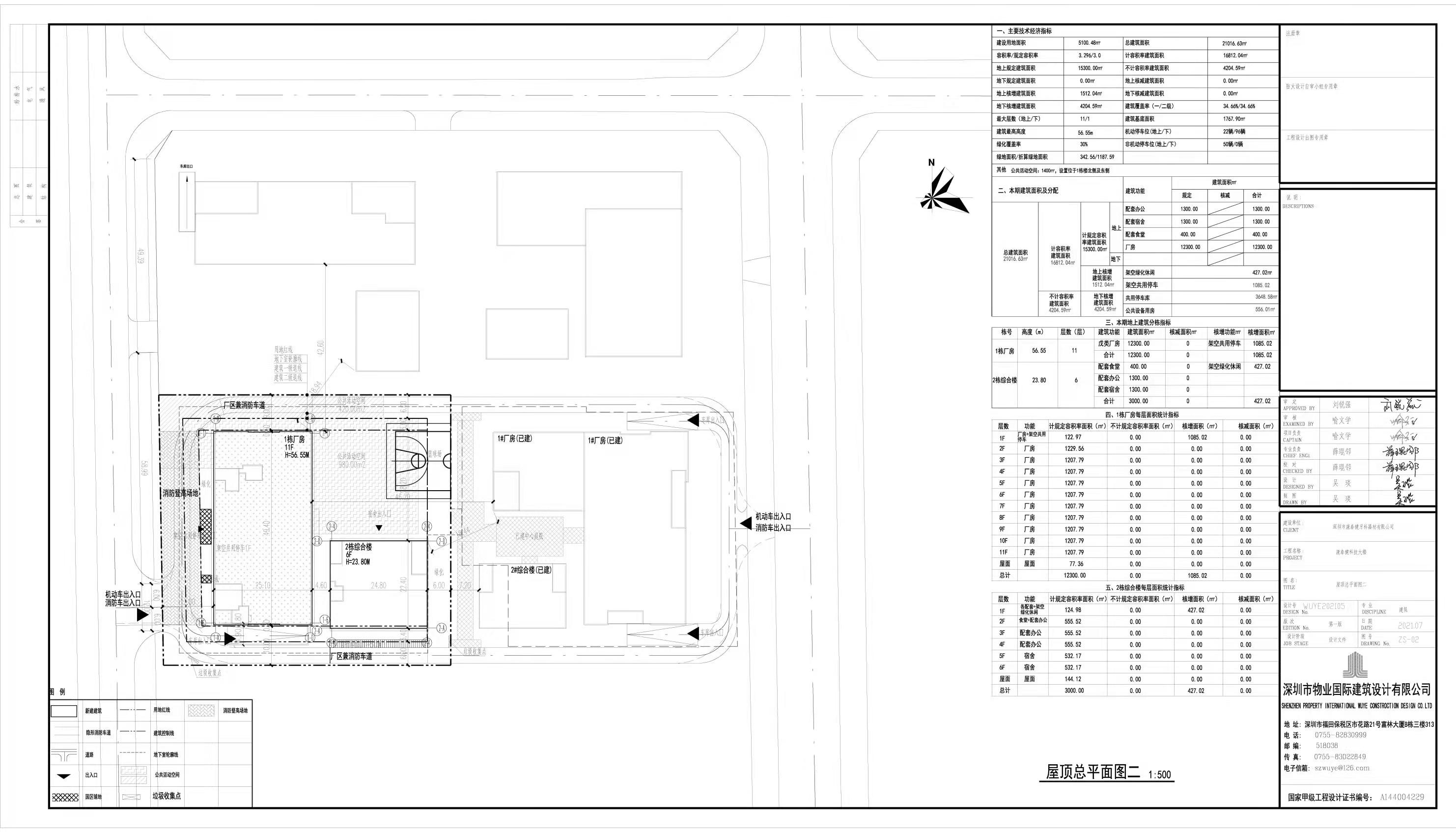
深圳市康泰健牙科器材有限公司开发建设的康泰健科技大楼项目(G14316-0114号宗地)位于坪山区丹碧路与聚青路交汇处东南角,总用地面积5100.48㎡,土地用途为普通工业用地。该项目于2021年8月16日取得《建设工程规划许可证》(深规划资源建许字PS-2021-0023号)。
依据《中华人民共和国城乡规划法》相关规定,现对该项目的总平面图予以公布。公布地址为:深圳市规划和自然资源局网站http://pnr.sz.gov.cn;深圳市规划和自然资源局坪山管理局网站http://pnr.sz.gov.cn/ps/。
附件:康泰健科技大楼项目(G14316-0114号宗地)总平面图
市规划和自然资源局坪山管理局
相关文档:
