深圳市规划和自然资源局坪山管理局关于深圳市第四人民医院二期(宗地号G12303-8082)项目总平面图的通告
日期: 2025-01-09 来源:
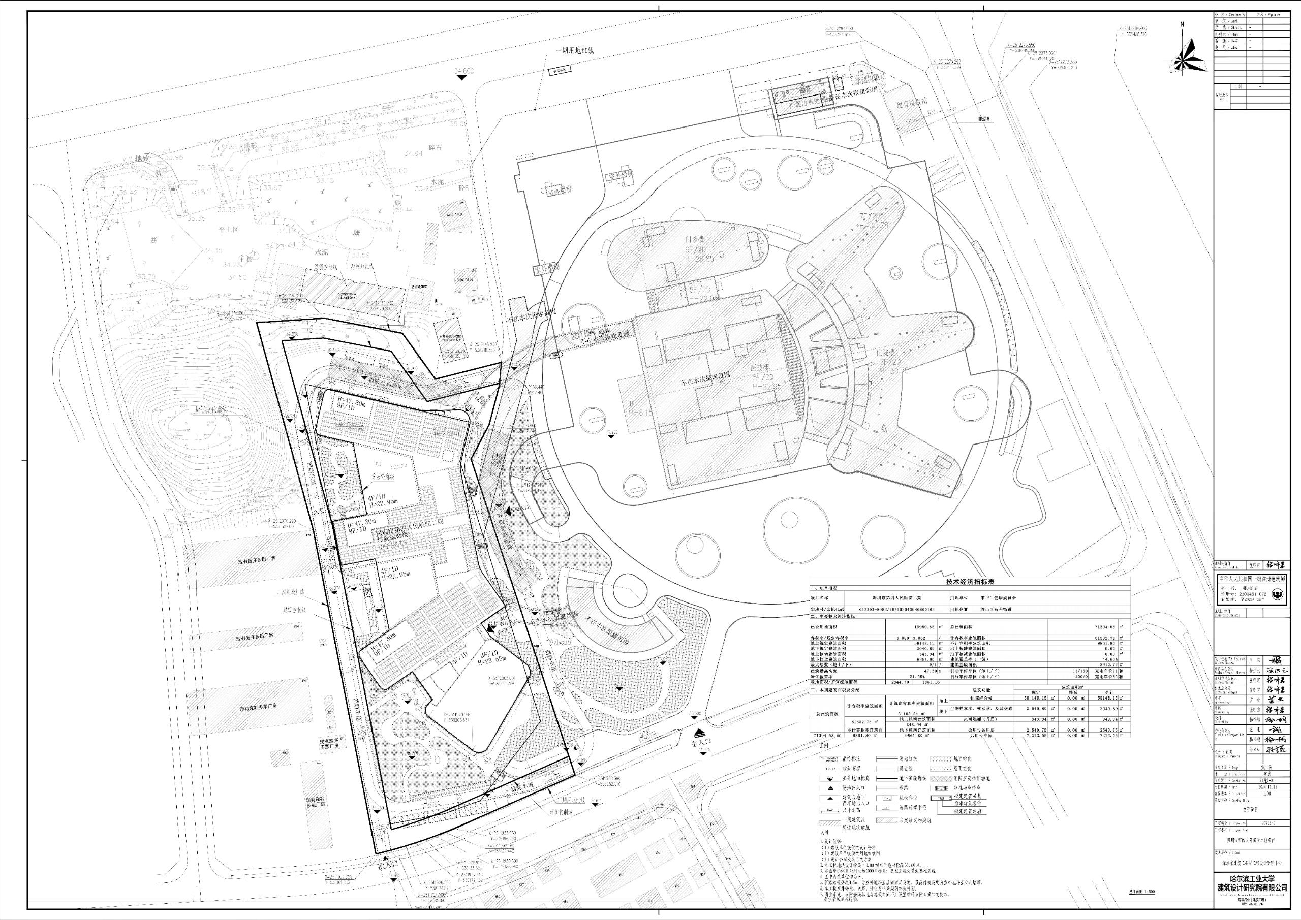
深圳市建筑工务署开发建设的深圳市第四人民医院二期(宗地号G12303-8082)项目位于石井街道石井社区现状金牛西路与规划冬梅路交汇处东南侧,总用地面积19980.58㎡,全部为建设用地。土地用途为医疗卫生用地。该项目于2025年1月3日取得《建设工程规划许可证》(建字第4403102025GG0002558号)。
依据《中华人民共和国城乡规划法》相关规定,现对该项目的总平面图予以公布。公布地址为:深圳市规划和自然资源局网站http://pnr.sz.gov.cn;深圳市规划和自然资源局坪山管理局网站http://pnr.sz.gov.cn/ps/。
附件:深圳市第四人民医院二期(宗地号G12303-8082)项目总平面图
深圳市规划和自然资源局坪山管理局
2025年1月9日
相关文档:
