深圳市规划和自然资源局坪山管理局关于G12317-8016号宗地项目总平面图的通告
日期: 2023-11-23 来源:
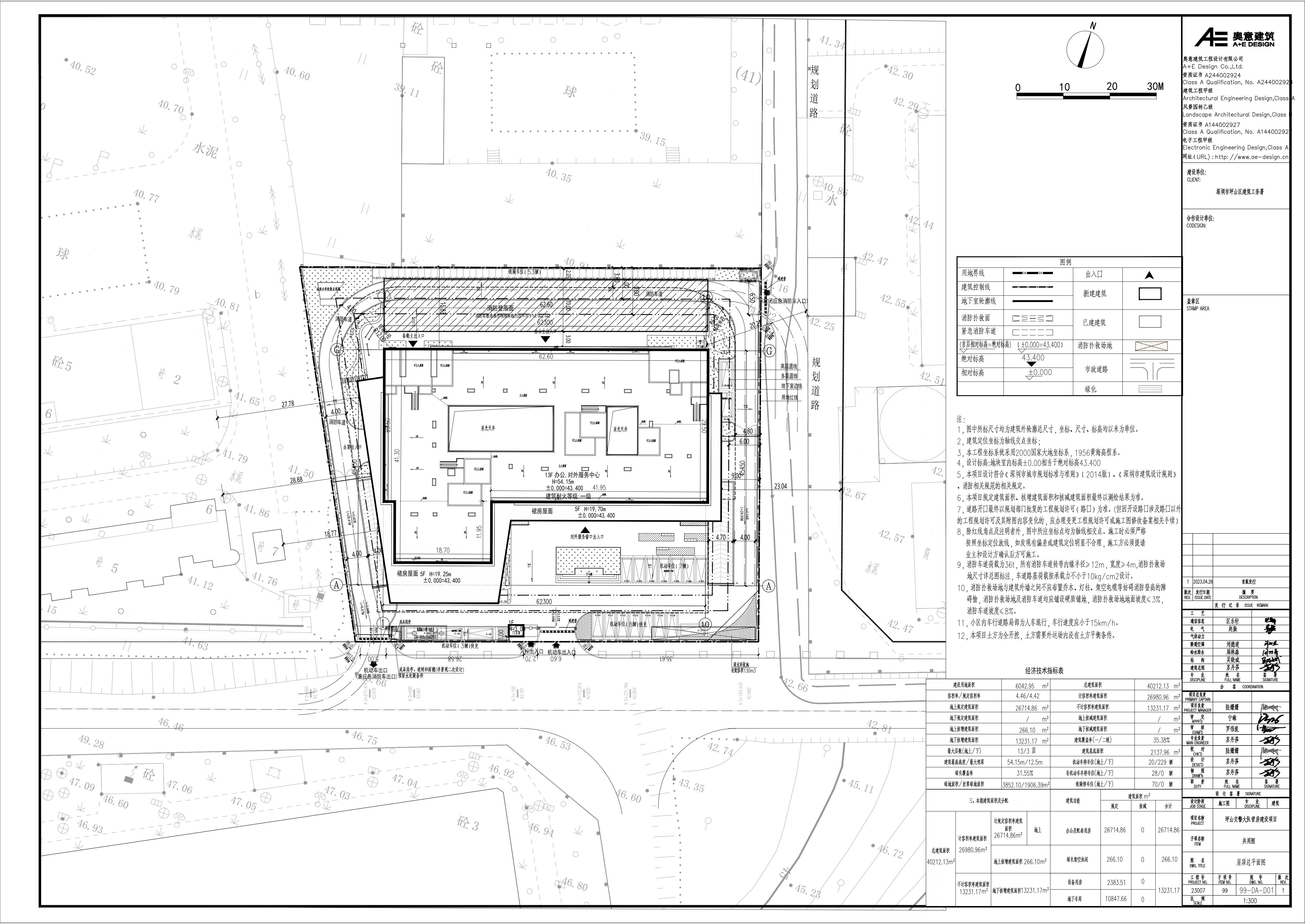
深圳市坪山区建筑工务署建设的G12317-8016号宗地项目位于坪山区马峦街道沙壆社区东纵路以南、瑞景路以东、马峦派出所南侧,用地面积为6042.95㎡,土地用途为行政管理用地。该项目于2023年11月17日取得《建设工程规划许可证》(建字第4403102023GG0043397号)。
依据《中华人民共和国城乡规划法》相关规定,现对该项目的总平面图予以公布。公布地址为:深圳市规划和自然资源局网站http://pnr.sz.gov.cn;深圳市规划和自然资源局坪山管理局网站http://pnr.sz.gov.cn/ps/。
附件:G12317-8016号宗地项目总平面图
深圳市规划和自然资源局坪山管理局
2023年11月23日
相关文档:
