深圳市规划和自然资源局坪山管理局关于尚水智能大厦项目(G14311-8042号宗地)总平面图的通告
日期: 2023-10-31 来源:
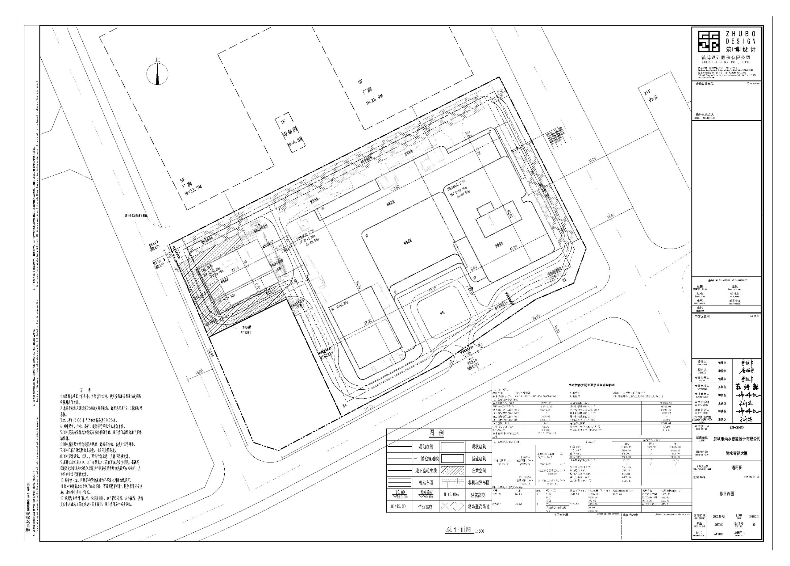
深圳市尚水智能股份有限公司开发建设的尚水智能大厦项目(G14311-8042号宗地)位于坑梓街道丹梓北路与规划砾田路交会处西北侧,总用地面积22711.31㎡,土地用途为普通工业用地。该项目于2023年10月23日取得《建设工程规划许可证》(深规划资源建许字PS-2023-0027号)。
依据《中华人民共和国城乡规划法》相关规定,现对该项目的总平面图予以公布。公布地址为:深圳市规划和自然资源局网站http://pnr.sz.gov.cn;深圳市规划和自然资源局坪山管理局网站http://pnr.sz.gov.cn/ps/。
附件:尚水智能大厦项目(G14311-8042号宗地)总平面图
深圳市规划和自然资源局坪山管理局
2023年10月31日
相关文档:
