深圳市规划和自然资源局坪山管理局关于新产业生物运营大厦项目总平面图的通告
日期: 2023-05-09 来源:
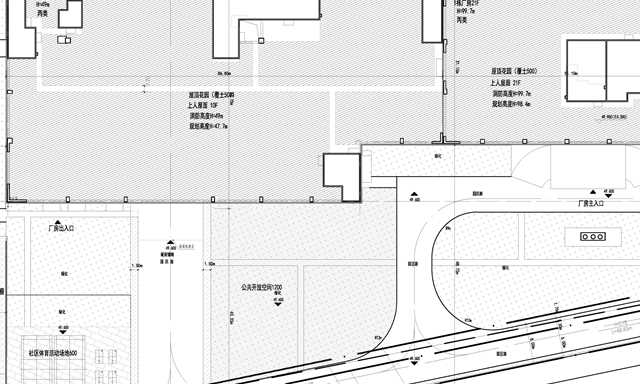
深圳市新产业生物医学工程股份有限公司建设的新产业生物运营大厦项目位于坪山区坑梓街道卢辉路与卢新路交汇处东北角,总用地及建设用地面积均为23464㎡,土地用途为普通工业用地。该项目于2023年5月6日取得《建设工程规划许可证》(深规划资源建许字PS-2023-0013号)。
依据《中华人民共和国城乡规划法》相关规定,现对该项目的总平面图予以公布。公布地址为:深圳市规划和自然资源局网站http://pnr.sz.gov.cn; 深圳市规划和自然资源局坪山管理局网站http://pnr.sz.gov.cn/ps/。
附件:新产业生物运营大厦项目总平面图
深圳市规划和自然资源局坪山管理局
2023年5月9日
相关文档:
