深圳市规划和自然资源局坪山管理局关于安格尔家居产业园项目(宗地号G14309-0308)总平面图的通告
日期: 2023-03-13 来源:
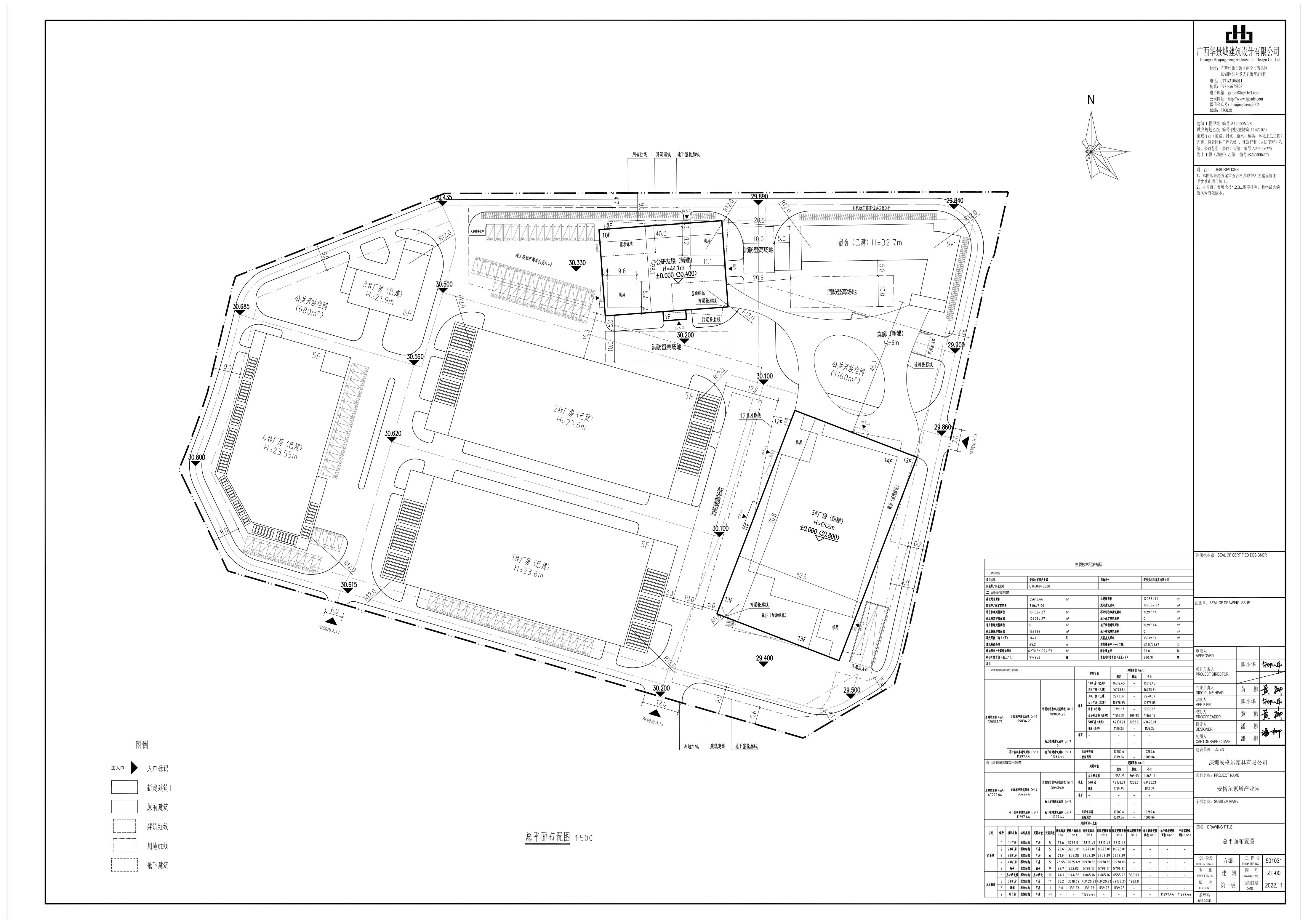
深圳安格尔家具有限公司建设的安格尔家居产业园项目(宗地号G14309-0308)位于坪山区坑梓街道人民东路与禾田路交汇处东北侧,总用地面积35613.46㎡,土地用途为普通工业用地。该项目于2022年11月2日取得《建设工程规划许可证》(深规划资源建许字PS-2022-0025号)。
依据《中华人民共和国城乡规划法》相关规定,现对该项目的总平面图予以公布。公布地址为:深圳市规划和自然资源局网站http://pnr.sz.gov.cn;深圳市规划和自然资源局坪山管理局网站http://pnr.sz.gov.cn/ps/。
附件:安格尔家居产业园项目(宗地号G14309-0308)总平面图
深圳市规划和自然资源局坪山管理局
2023年3月13日
相关文档:
