当前位置: 坪山管理局 > 通知公告

深圳市规划和自然资源局坪山管理局关于昌红医疗科技大厦项目总平面图的通告

日期: 2023-02-16    来源:

 

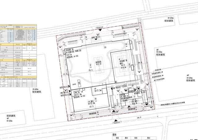
  深圳市昌红科技股份有限公司建设的昌红医疗科技大厦位于坪山区碧岭街道业通一路北侧,总用地及建设用地面积均为23128.77㎡,土地用途为工业用地。该项目于2023年2月14日取得《建设工程规划许可证》(深规划资源建许字PS-2023-0001号)。

  依据《中华人民共和国城乡规划法》相关规定,现对该项目的总平面图予以公布。公布地址为:深圳市规划和自然资源局网站http://pnr.sz.gov.cn;深圳市规划和自然资源局坪山管理局网站  http://pnr.sz.gov.cn/ps/。

  附件:昌红医疗科技大厦项目总平面图

深圳市规划和自然资源局坪山管理局

2023年2月16日

相关文档:

附件:昌红医疗科技大厦项目总平面图.jpg


分享到:
 --