关于罗湖区田园居B2栋全栋危房重建设计方案的公示
日期: 2021-11-03 来源:
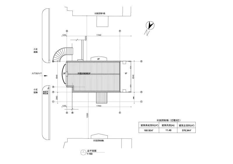
田园居位于深圳市罗湖区银湖路,申请重建的罗湖区田园居B2栋全栋位于宗地内西北侧(宗地号:H401-0023)。根据《中华人民共和国城乡规划法》、《深圳市城市规划条例》、《深圳市危房重建规划管理规定》等相关规定,现予以公示。
一、公示内容
1、重建方案内容如下:
总建筑面积376.34平方米,建筑层数3层,建筑高度11.49米,建筑基底面积160.50平方米,重建建筑功能为原功能不变。
2、重建方案总平面图及效果图详见附图。
二、公示地点
(一)深圳市规划和自然资源局罗湖管理局
地址:罗湖区清水河街道清水河一路52号博隆大厦5楼
(二)项目现场
地址:罗湖区银湖路田园居B2栋及田园居主要出入口
(三)深圳市规划和自然资源局门户网站
网址:http://pnr.sz.gov.cn
(四)深圳市规划和自然资源局罗湖管理局网站
网址:http://pnr.sz.gov.cn/luohu/
(五)深圳商报
三、公示时间
为期7个工作日,自2021年11月3日至2021年11月11日为止。
四、意见反馈
公示期内如对该事项有意见或建议,请使用真实姓名及联系方式以书面意见形式与深圳市规划和自然资源局罗湖管理局联系。
五、联系方式
深圳市规划和自然资源局罗湖管理局
联系人:魏工
联系电话:82348928
附件:1、重建方案总平面图
2、重建方案效果图(1)
3、重建方案效果图(2)
深圳市规划和自然资源局罗湖管理局
2021年11月3日
相关文档:
