关于深业物流12-08地块项目总平面图修改的公示
日期: 2021-08-31 来源:
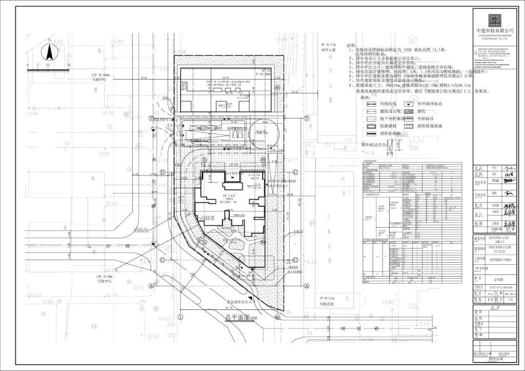
深圳市罗湖人才安居有限公司开发建设的深业物流12-08地块项目,位于田西路与宝田路交汇处以南,宗地号H303-0060,于2019年3月8日取得《建设工程规划许可证》(深规土建许字LH-2019-0013号),现来文申请深业物流12-08地块项目建设工程设计文件修改备案,本次修改涉及总平面图修改如下:
一、C轴裙楼外轮廓向南侧扩2.1米。
二、原坐标点单位由毫米级改为米级。
三、5个地面停车位位置调整。
四、本次修改不改变原批准面积指标,总平面修改仅限云线圈注部分,其余修改内容详见附图。
根据《中华人民共和国城乡规划法》的有关规定,现对该项目修改后的总平面图及外立面效果图在《深圳商报》或《深圳特区报》、本项目现场公示栏、深圳市规划和自然资源局网站(pl.sz.gov.cn)、深圳市规划和自然资源局罗湖管理局,公示期为10日(2021年8月31日至2021年9月9日)。在公示期内,如对该项目的公示修改内容有意见和建议,请使用真实姓名及联系方式以书面意见形式与深圳市规划和自然资源局罗湖管理局联系,联系人:周工,联系电话:82348133,联系地址:深圳市罗湖区清水河一路博隆大厦5楼。
深圳市规划和自然资源局罗湖管理局
2021年8月31日
附件:深业物流12-08项目总平面图(修一版)
相关文档:
