深圳市规划和自然资源局罗湖管理局关于罗湖区中医院莲塘新院项目工程规划许可及总平面变更的公示
日期: 2020-11-02 来源:
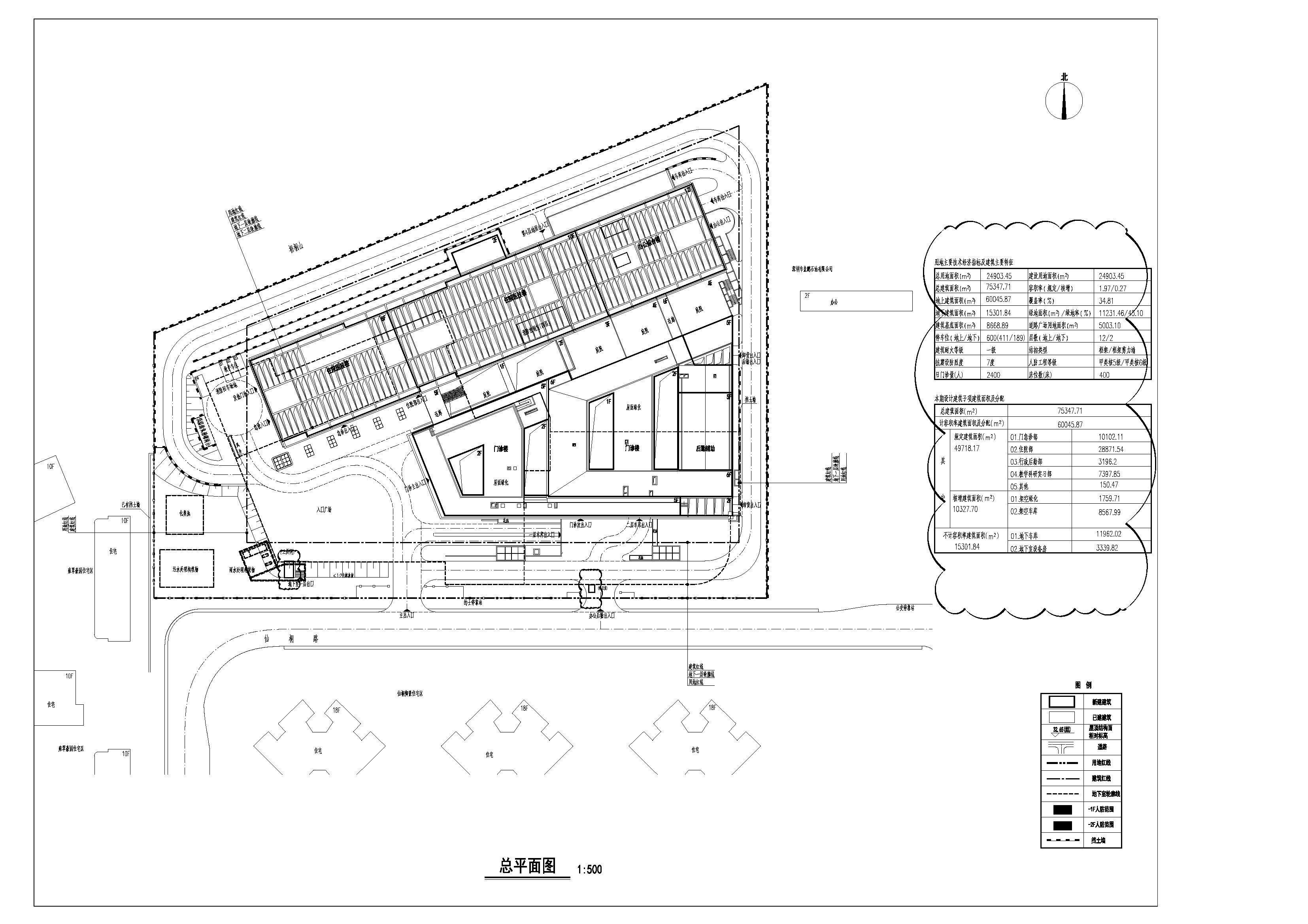
罗湖区中医院莲塘新院项目位于深圳市罗湖区莲塘街道,宗地号H228-0029,于2012年11月取得深规土建许字ZS-2015-0041号《深圳市建设工程规划许可证》。现该项目申请工程规划许可及总平面变更,主要内容如下:
一、规定建筑面积由48992.81㎡调整为49718.17㎡;核增建筑面积由6962.44㎡调整为10327.70㎡;新增门卫房及工具间2个单体;具体详见附件。
二、上述变更后符合深地合字(2010)6012号深圳市土地使用权出让合同及其补充协议要求。
三、根据《中华人民共和国城乡规划法》等有关规定,现对罗湖区中医院莲塘新院项目工程规划许可及总平面变更等相关事宜进行公示,征求利害关系人意见。公示期10天(2020年11月2日至2020年11月11日)。以上内容将同时在主流媒体、项目现场及深圳市规划和自然资源局官网予以公示。如对上述公示内容有意见或建议,请在公示期内使用真实姓名及联系方式以书面形式反馈至深圳市规划和自然资源局罗湖管理局。公示期满无异议,深圳市规划和自然资源局罗湖管理局将按规定办理后续相关手续。
联系人:郑工,82346118
联系地址:深圳市罗湖区清水河一路52号博隆大厦5层
深圳市规划和国土资源委员会罗湖管理局
2020年11月2日
附件:项目总平面图

相关文档:
