深圳市规划和自然资源局龙岗管理局关于公布深南电路坪西园区项目总平面图的通告
日期: 2021-12-22 来源:
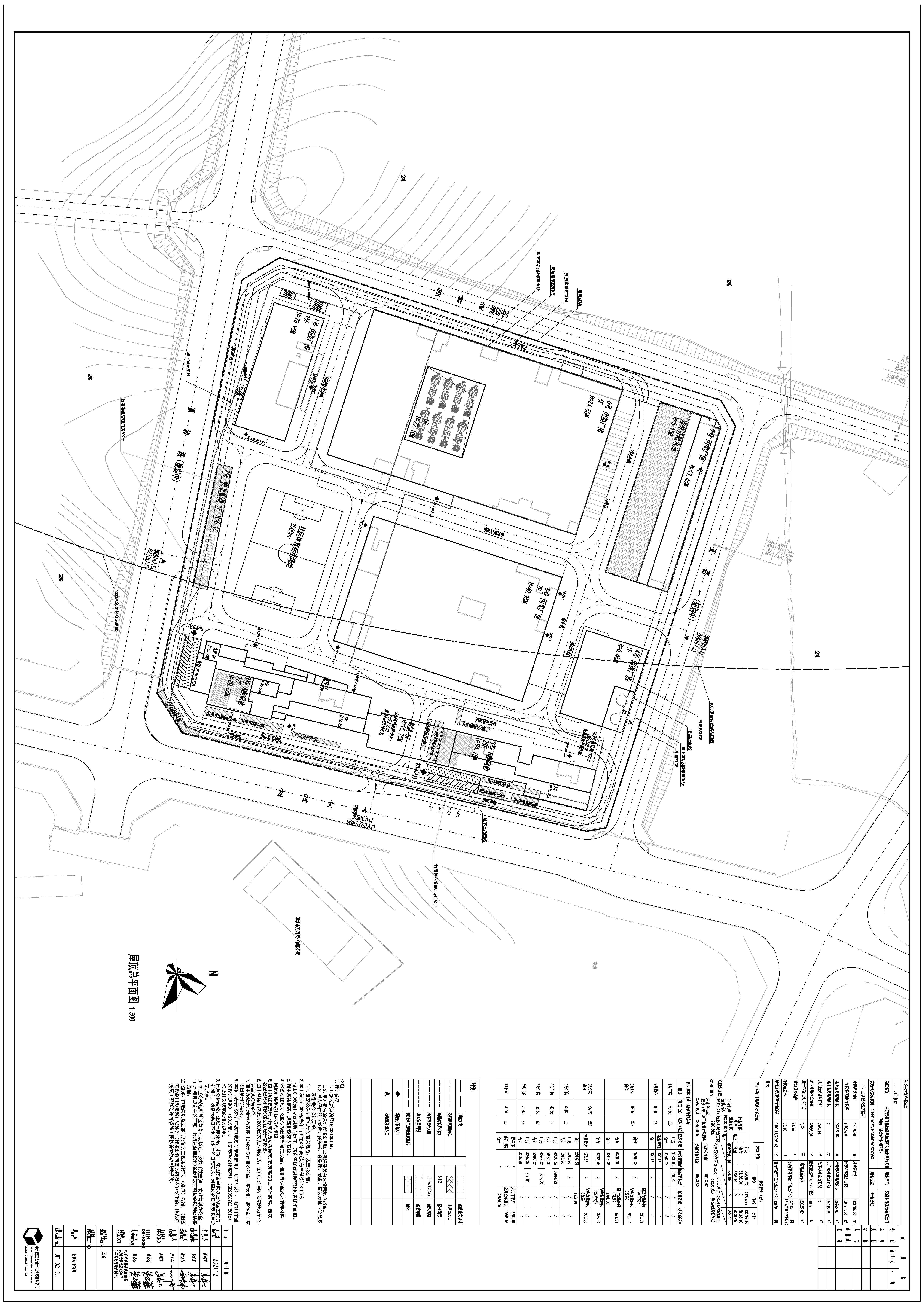
深南电路股份有限公司开发建设的深南电路坪西园区项目位于龙岗区坪地街道,建设用地面积48130.8平方米,于2021年12月取得《建设工程规划许可证》(深规划资源建许字LG-2021-0164号)。
依据《中华人民共和国城乡规划法》相关规定,现对深南电路坪西园区项目建设工程总平面图予以公布。
特此通告。
附件:龙岗区深南电路坪西园区项目总平面图
深圳市规划和自然资源局龙岗管理局
2021年12月22日
相关文档:
