深圳市规划和自然资源局龙岗管理局关于莲花山庄一村L2-94号住宅重建建筑设计方案的公示
日期: 2021-07-30 来源:
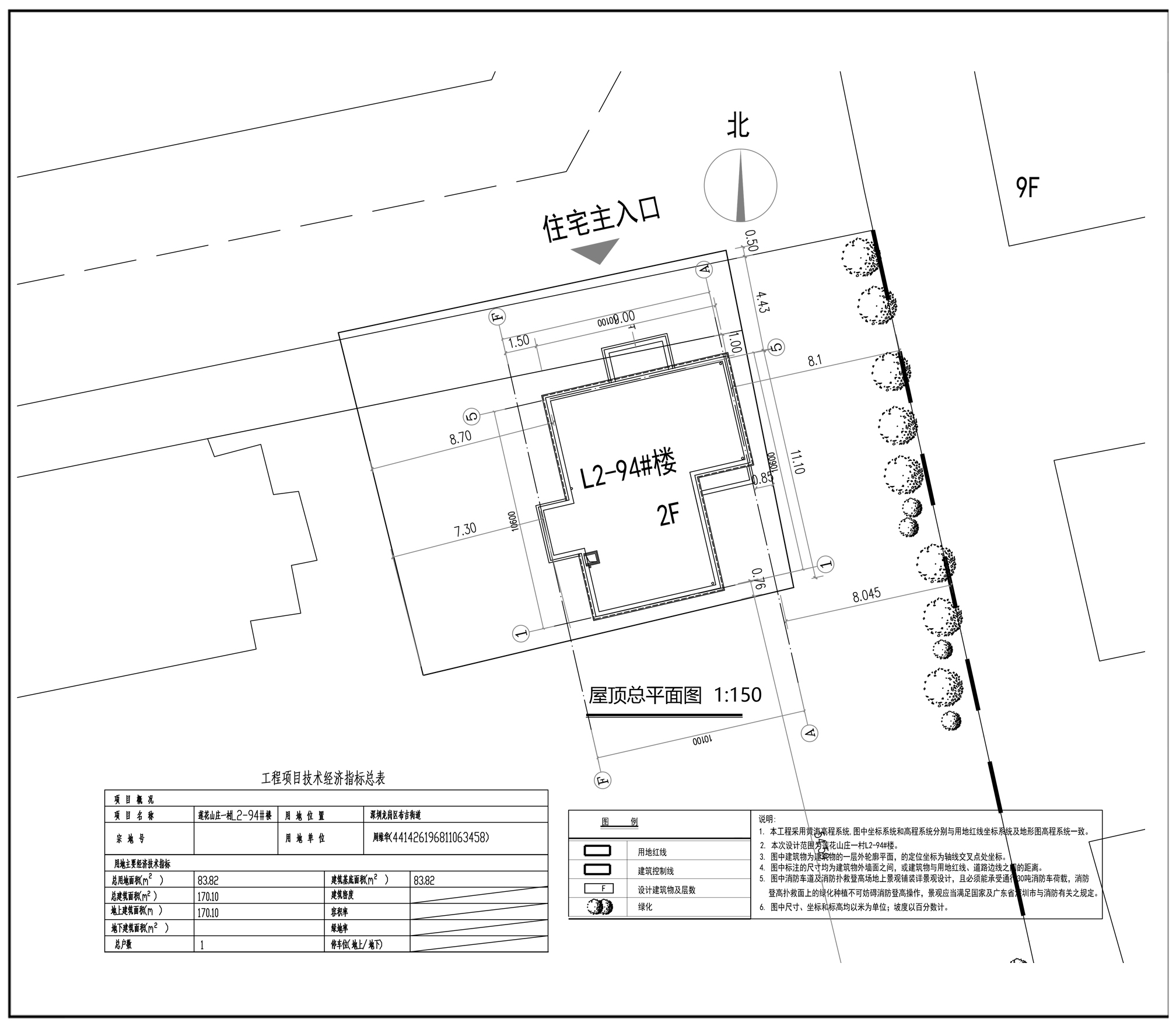
周维华来文申报莲花山庄一村L2-94号住宅危房拆除后重建的建筑设计方案,该项目位于布吉街道莲花路莲花山庄内,宗地号G06212-27,公示内容如下:
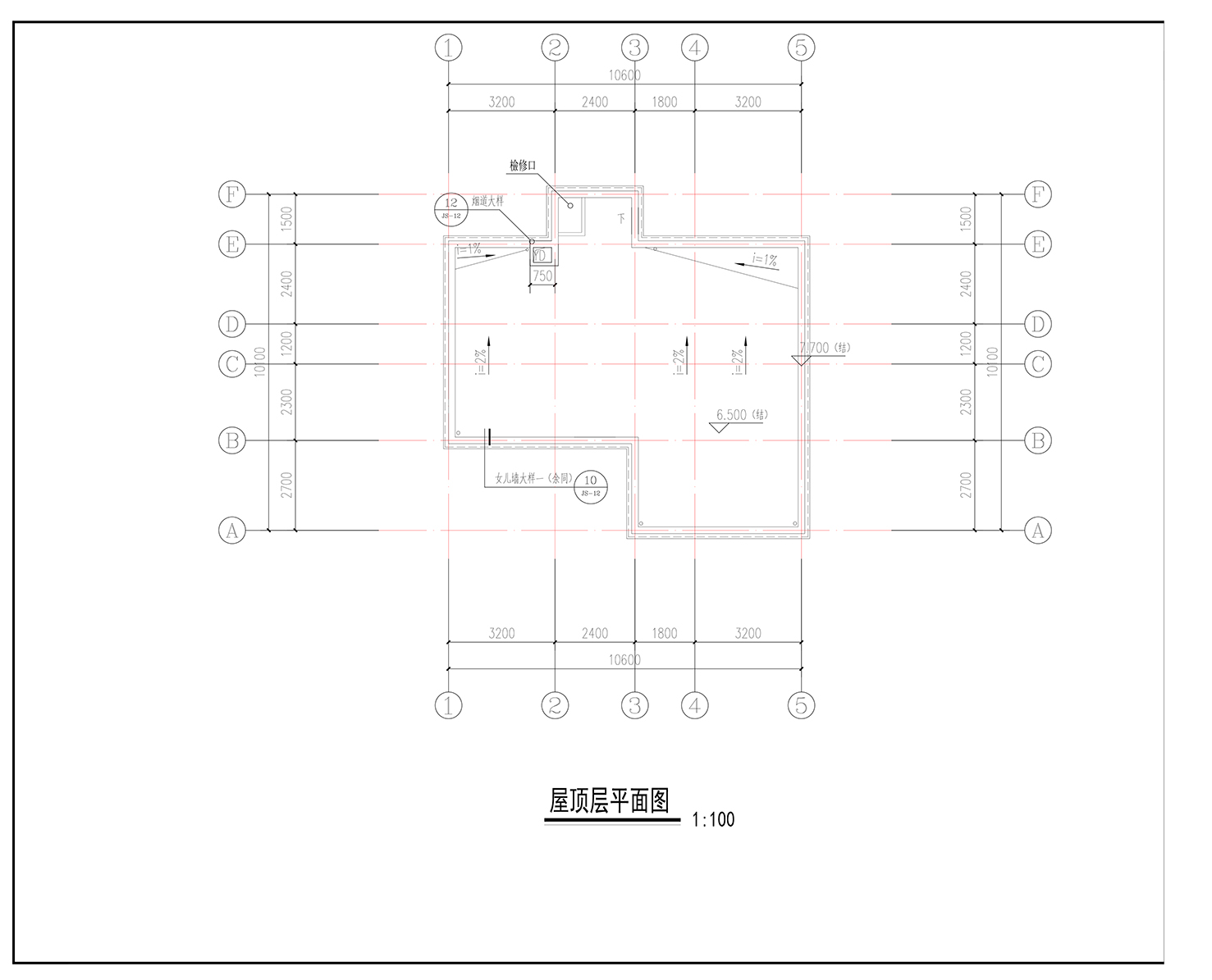
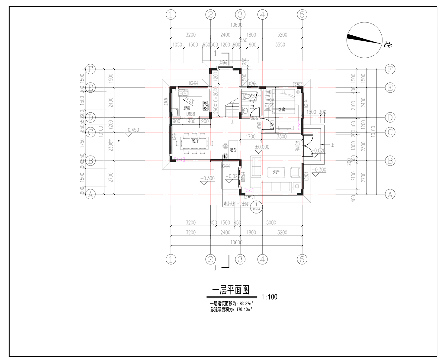
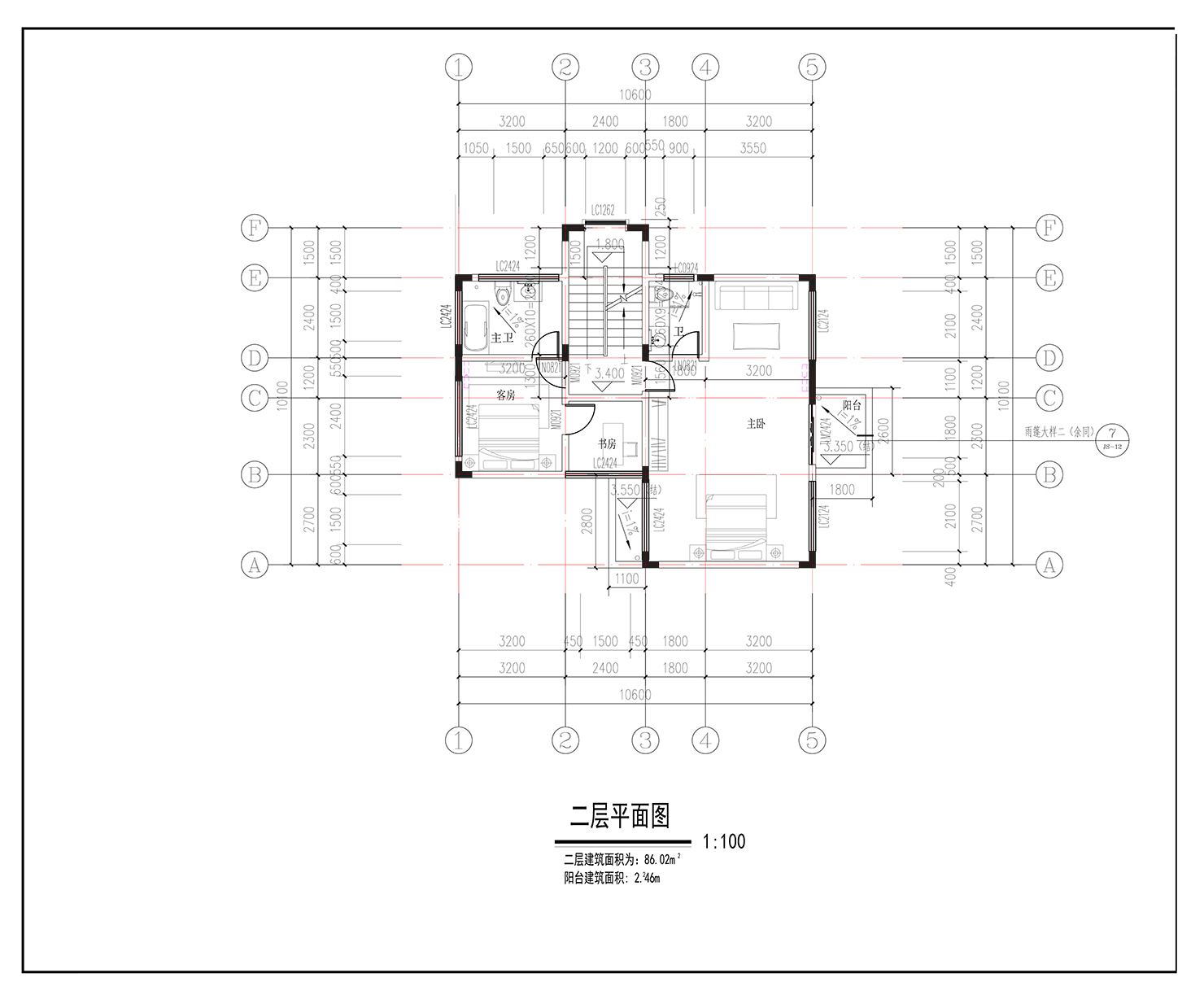
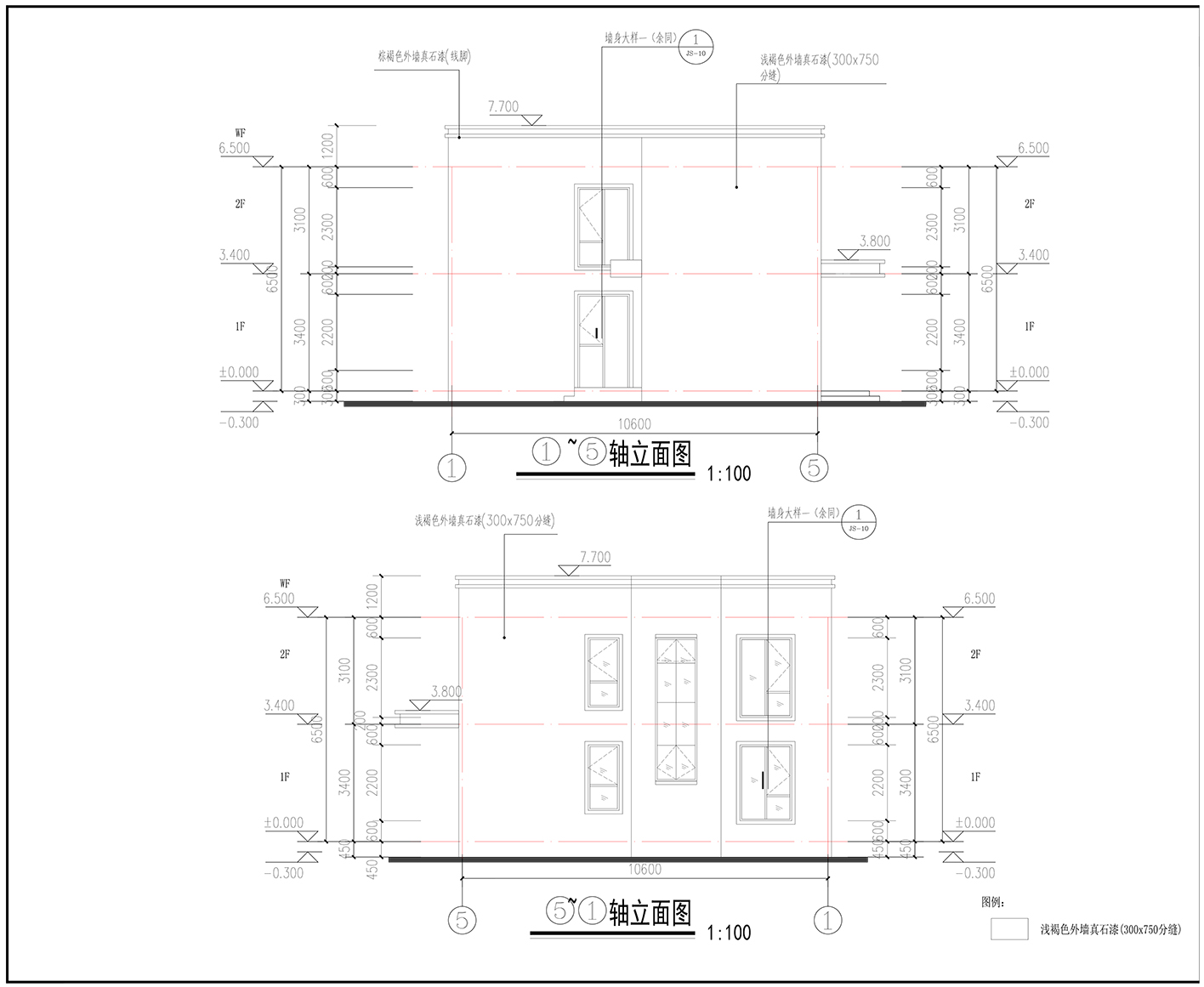
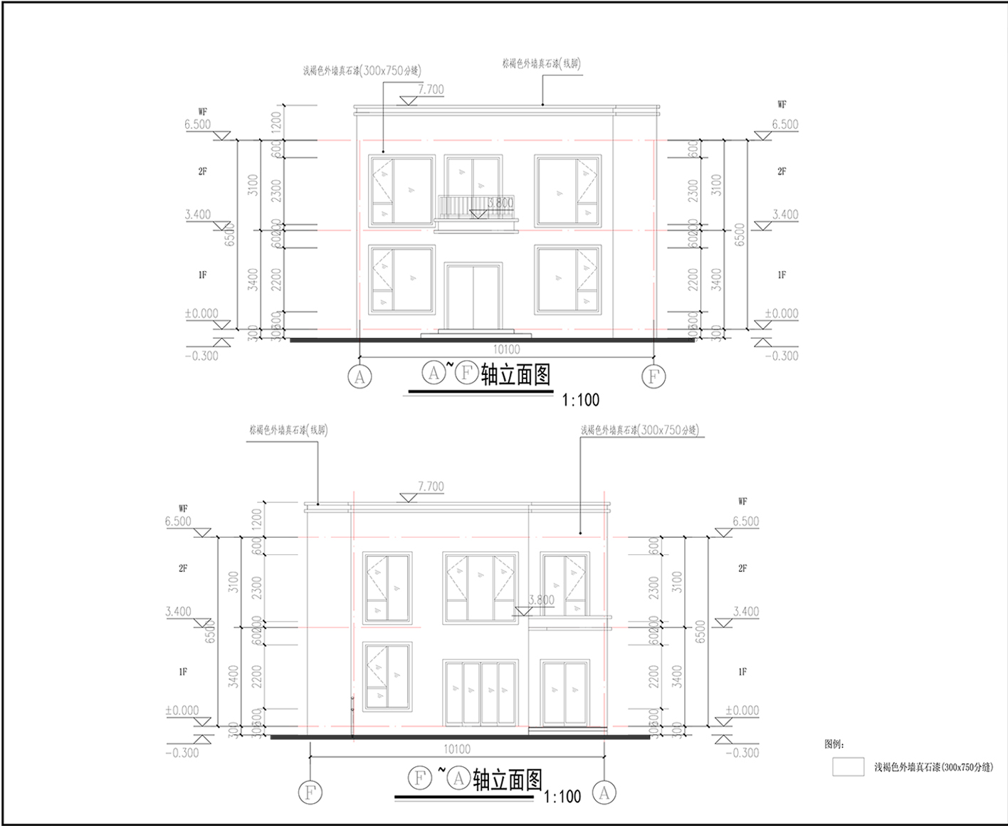
本次申报莲花山庄一村L2-94号住宅2层,建筑面积170.10平方米(住宅),建筑高度6.8米,建筑面积与房产证面积一致。所报方案设计文件在总平面图中位置,符合龙布街函[2016]380号《关于报送莲花山庄李振仪等10栋房屋拆除情况的函》的相关坐标要求,方案设计布局、建筑色彩、立面设计、建筑风格等与原批准基本一致,基本满足相关规范要求。
根据《深圳市城市规划条例》及相关规定要求,现对莲花山庄一村L2-94号住宅重建的建筑设计方案予以公示(详见附件)。公示期为7个工作日(自2021年7月30日起至2021年8月9日止)。公示期间,如对上述事项有意见或建议,请使用真实姓名、联系方式与深圳市规划和自然资源局龙岗管理局联系(地址:深圳市龙岗区中心城行政路2号建设大厦1105室)。公示期满无异议,深圳市规划和自然资源局龙岗管理局将按程序办理相关手续。
本公示自发布之日起,在深圳市规划和自然资源局网站(http://pnr.sz.gov.cn)、深圳市规划和自然资源局龙岗管理局一楼大厅及项目现场同时进行展示。
特此公示。
附件:1.总平面图
2.效果图
3.一层平面图
4.二层平面图
5.屋顶层平面图
6.立面图(1)
7.立面图(2)
8.剖面图
深圳市规划和自然资源局龙岗管理局
2021年7月30日
(联系人:刘工;电话:28906020;传真:28920300)
相关文档:
