深圳市规划和自然资源局龙岗管理局关于龙岗区平湖罗山片区污水资源化利用工程总平面图修改的公示
日期: 2026-03-05 来源:
龙岗区平湖罗山片区污水资源化利用工程项目用地位于龙岗区平湖街道平大路与广九线交叉口东南侧,宗地号为G05201-0011。该项目于2023年1月取得《建设工程规划许可证》(深规划资源建许字 LG-2023-0012 号)。根据《中华人民共和国城乡规划法》等相关规定,我局对龙岗区平湖罗山片区污水资源化利用工程项目总平面图修改情况公示如下:
一、主要修改内容
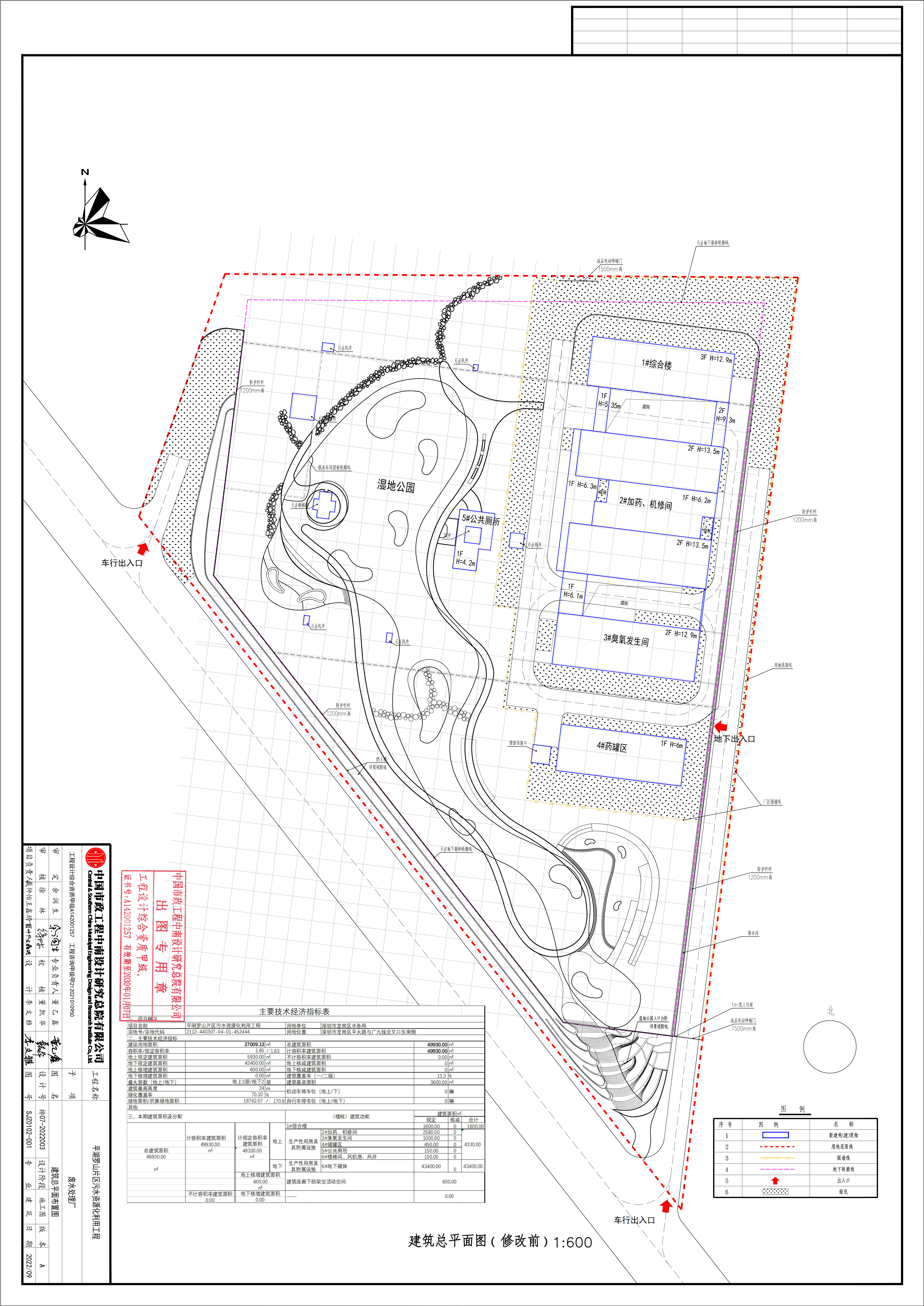
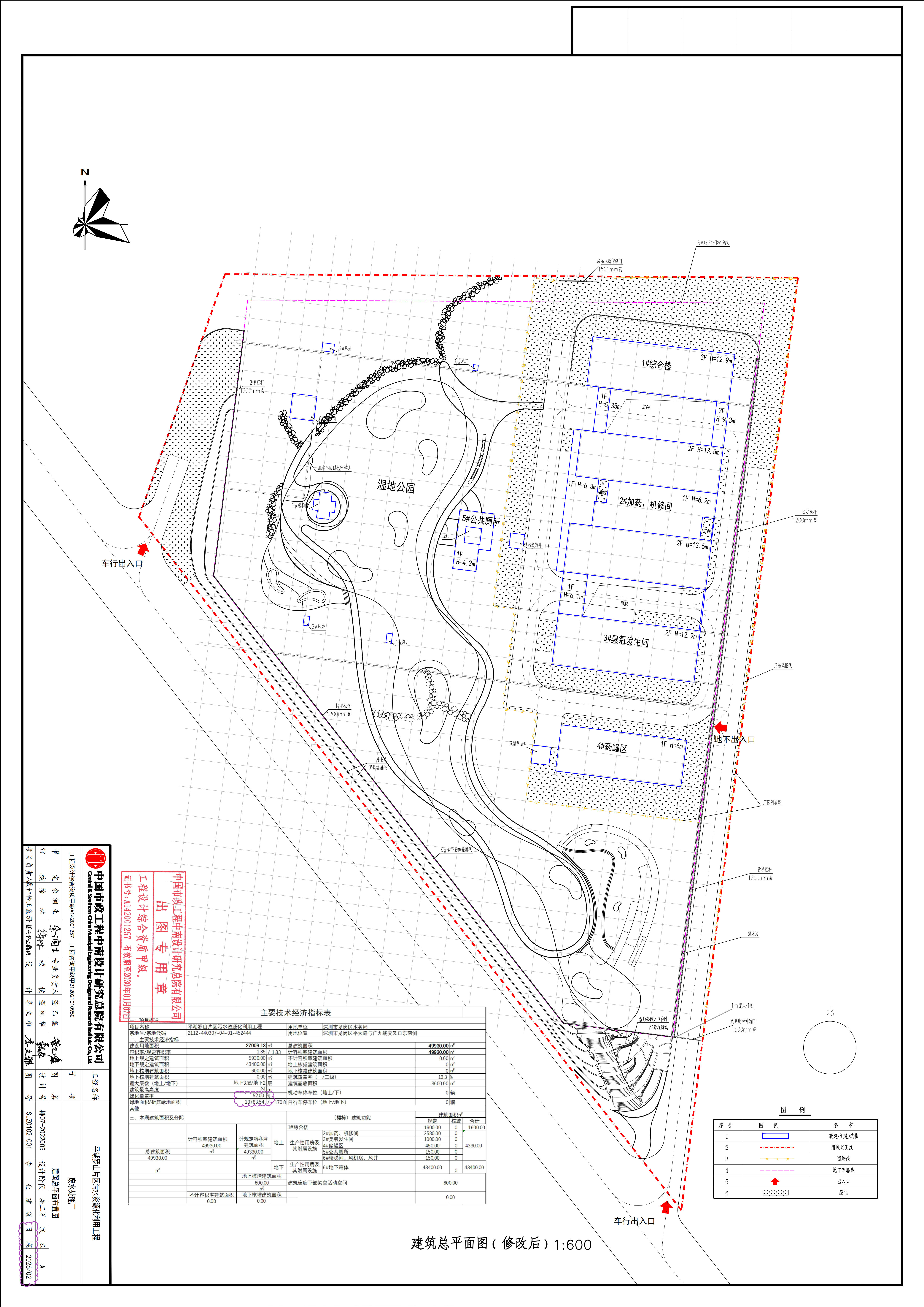
(一)根据建设用地规划许可证,将《建筑总平面布置图》中主要技术经济指标表的绿化覆盖率由“≥70.1%”调整为“≥52%”;绿地面积由18762.07调整为13783.54;
(二)将《建筑总平面布置图》中出图日期由“2022/09”调整为“2026/02”。
二、公示时间
2026年3月6日至2026年3月19日(10个工作日)。
三、公示渠道
本事项同时在下列网站和实地公示:
(一)网站公示
1.深圳市规划和自然资源局门户网站
http://pnr.sz.gov.cn/
2.深圳市规划和自然资源局龙岗管理局门户网站
http://pnr.sz.gov.cn/lg/
(二)实地公示
1.深圳市规划和自然资源局龙岗管理局
地址:深圳市龙岗区龙城街道行政路2号建设大厦
2.项目现场
地址:深圳市龙岗区平湖街道平大路与广九线交叉口东南侧。
四、意见反馈方式
公示期间,任何单位、组织和个人均可就公示内容提出书面意见或建议,个人提交反馈意见的应当提供真实姓名(须由提交人签名)、有效身份证明复印件、住址及联系方式,单位或组织提交反馈意见的应当加盖公章、提交单位法定代表人、委托代理人的有效身份证明复印件并注明联系人及联系方式。请通过以下渠道书面反馈:
(一)邮寄。邮寄地址:深圳市龙岗区龙城街道行政路2号建设大厦812室;收件人:张工;联系电话:0755-28918629;并在信封上注明“龙岗区平湖罗山片区污水资源化利用工程项目总平面图修改公示反馈意见”字样(日期以邮戳为准);
(二)电子邮件。请将意见发送至邮箱:laishh@pnr.sz.gov.cn,邮件标题请按照“龙岗区平湖罗山片区污水资源化利用工程项目总平面图修改公示反馈意见+姓名(或单位名称)”格式填写。
公众意见征询截止日期为2026年3月19日,我局将按照相关规定对公众意见进行认真研究和处理后,按程序审批。
特此公示。
附件:1.项目修改前总平面图
2.项目修改后总平面图
深圳市规划和自然资源局龙岗管理局
2026年3月5日
相关文档:
