深圳市规划和自然资源局龙岗管理局关于公布颐安都会中央花园(六区)[G01063-0261]项目《建设工程规划许可证》及总平面图的通告
日期: 2026-02-26 来源:
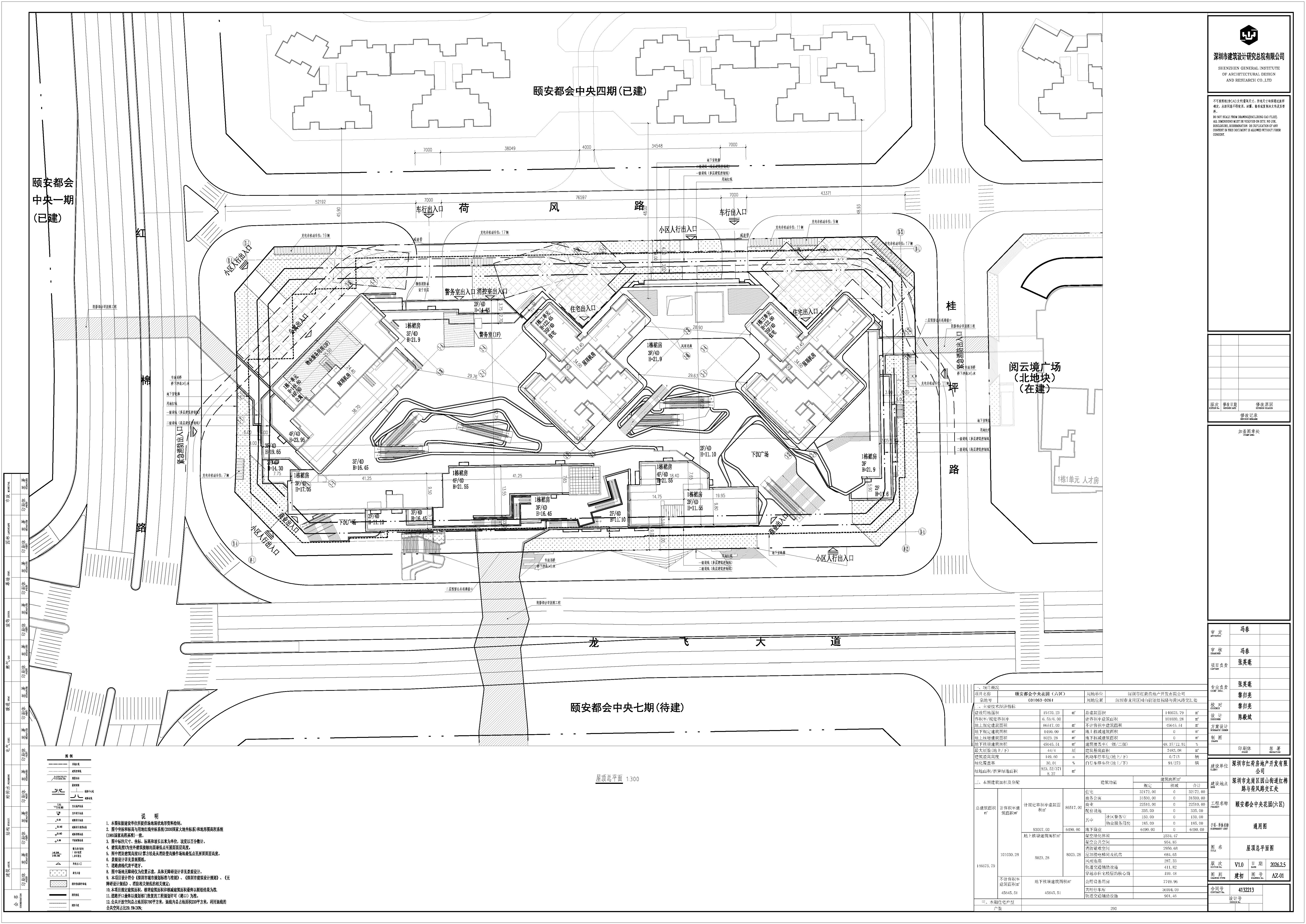
颐安都会中央花园(六区)[G01063-0261]项目用地位于龙岗区园山街道红棉路与荷风路交会处,宗地号为G01063-0261。经审查,我局同意核发该项目的《建设工程规划许可证》。
根据《中华人民共和国城乡规划法》相关规定,现将本次核发的《建设工程规划许可证》及总平面图予以公布。
特此通告。
附件:1.建设工程规划许可证
2.建设工程设计文件核查表
3.项目总平面图
深圳市规划和自然资源局龙岗管理局
2026年2月26日
相关文档:
