深圳市规划和自然资源局龙岗管理局关于宝龙生物医药创新生态产业园项目总平面图修改的公示
日期: 2026-02-11 来源:
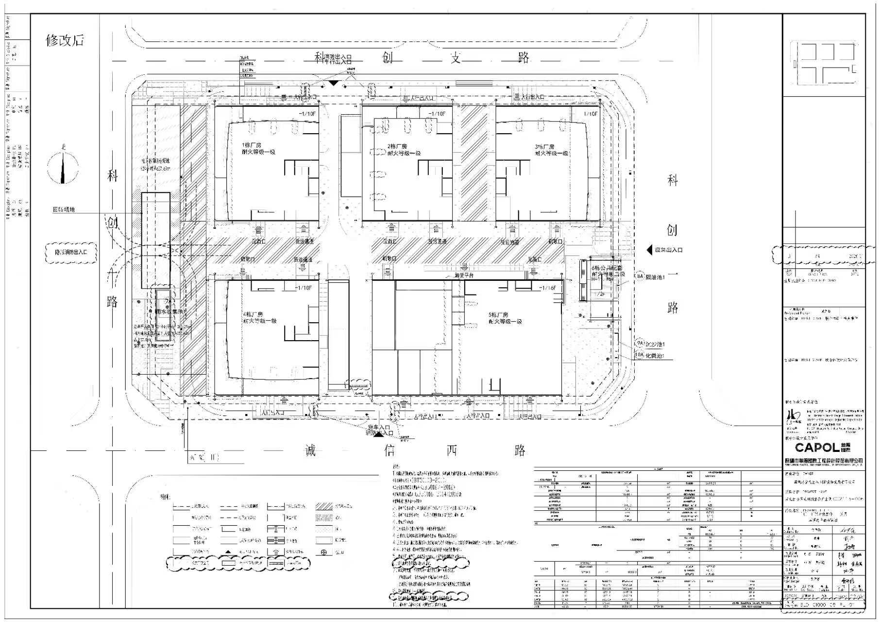
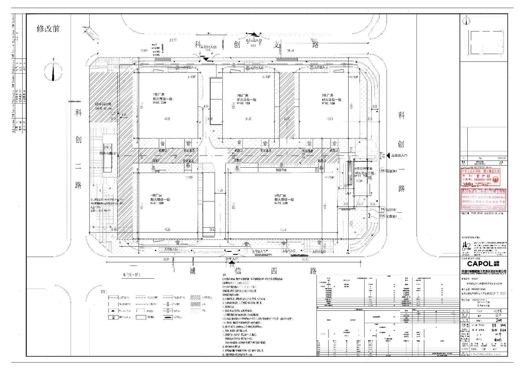
宝龙生物医药创新生态产业园项目用地位于龙岗区宝龙街道科创一路与诚信西路交会处西北侧,宗地号为G02113-0061。该项目于2024年4月22日取得《建设工程规划许可证》(建字第4403072024GG0093410号)。根据《中华人民共和国城乡规划法》等相关规定,我局对宝龙生物医药创新生态产业园项目总平面图修改情况公示如下:
一、主要修改内容
(一)新增西侧隐形消防出入口;
(二)调整西侧雨水收集池位置,增加场地南北侧出入口减速带;
(三)5栋取消露台出挑,4栋取消格栅构件。
二、公示时间
2026年2月12日至2026年3月3日(10个工作日)
三、公示渠道
本事项同时在下列网站和实地公示:
(一)网站公示
1.深圳市规划和自然资源局门户网站
http://pnr.sz.gov.cn/
2.深圳市规划和自然资源局龙岗管理局门户网站
http://pnr.sz.gov.cn/lg/
(二)实地公示
1.深圳市规划和自然资源局龙岗管理局
地址:深圳市龙岗区龙城街道行政路2号建设大厦
2.项目现场
地址:深圳市龙岗区宝龙街道科创一路与诚信西路交会处西北侧
四、意见反馈方式
公示期间,任何单位、组织和个人均可就公示内容提出书面意见或建议,个人提交反馈意见的应当提供真实姓名(须由提交人签名)、有效身份证明复印件、住址及联系方式,单位或组织提交反馈意见的应当加盖公章、提交单位法定代表人、委托代理人的有效身份证明复印件并注明联系人及联系方式。请通过以下渠道书面反馈:
(一)邮寄。邮寄地址:深圳市龙岗区龙城街道行政路2号建设大厦812室;收件人:赖工;联系电话:0755-28918639;并在信封上注明“宝龙生物医药创新生态产业园项目总平面图修改公示反馈意见”字样(日期以邮戳为准);
(二)电子邮件。请将意见发送至邮箱:laishh@pnr.sz.gov.cn,邮件标题请按照“宝龙生物医药创新生态产业园项目总平面图修改公示反馈意见+姓名(或单位名称)”格式填写。
公众意见征询截止日期为2026年3月3日,我局将按照相关规定对公众意见进行认真研究和处理后,按程序审批。
特此公示。
附件:1.项目修改前总平面图
2.项目修改后总平面图
深圳市规划和自然资源局龙岗管理局
2026年2月11日
相关文档:
