深圳市规划和自然资源局龙岗管理局关于公布金源科技大楼项目《建设工程规划许可证》及总平面图的通告
日期: 2025-10-31 来源:
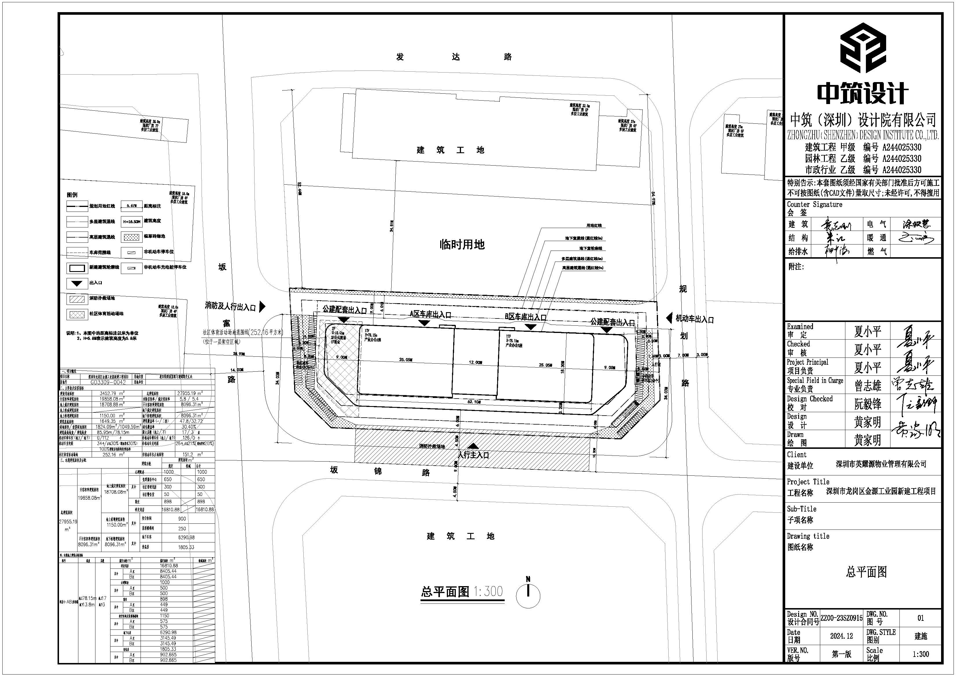
陈荣辉、吴福强申请办理金源科技大楼项目的建设工程规划许可证(建筑类)。经审查,现已取得《建设工程规划许可证》(建字第4403072025GG0210576(改1)号)。
根据《中华人民共和国城乡规划法》第四十条规定,现将本次核发的《建设工程规划许可证》及总平面图予以公布。
特此通告。
附件:1.建设工程规划许可证
2.建设工程设计文件核查表
3.项目总平面图
深圳市规划和自然资源局龙岗管理局
2025年10月31日
相关文档:
