深圳市规划和自然资源局龙岗管理局关于雪岗大厦(G03307-0033号宗地)总平面图修改的公示
日期: 2025-08-08 来源:
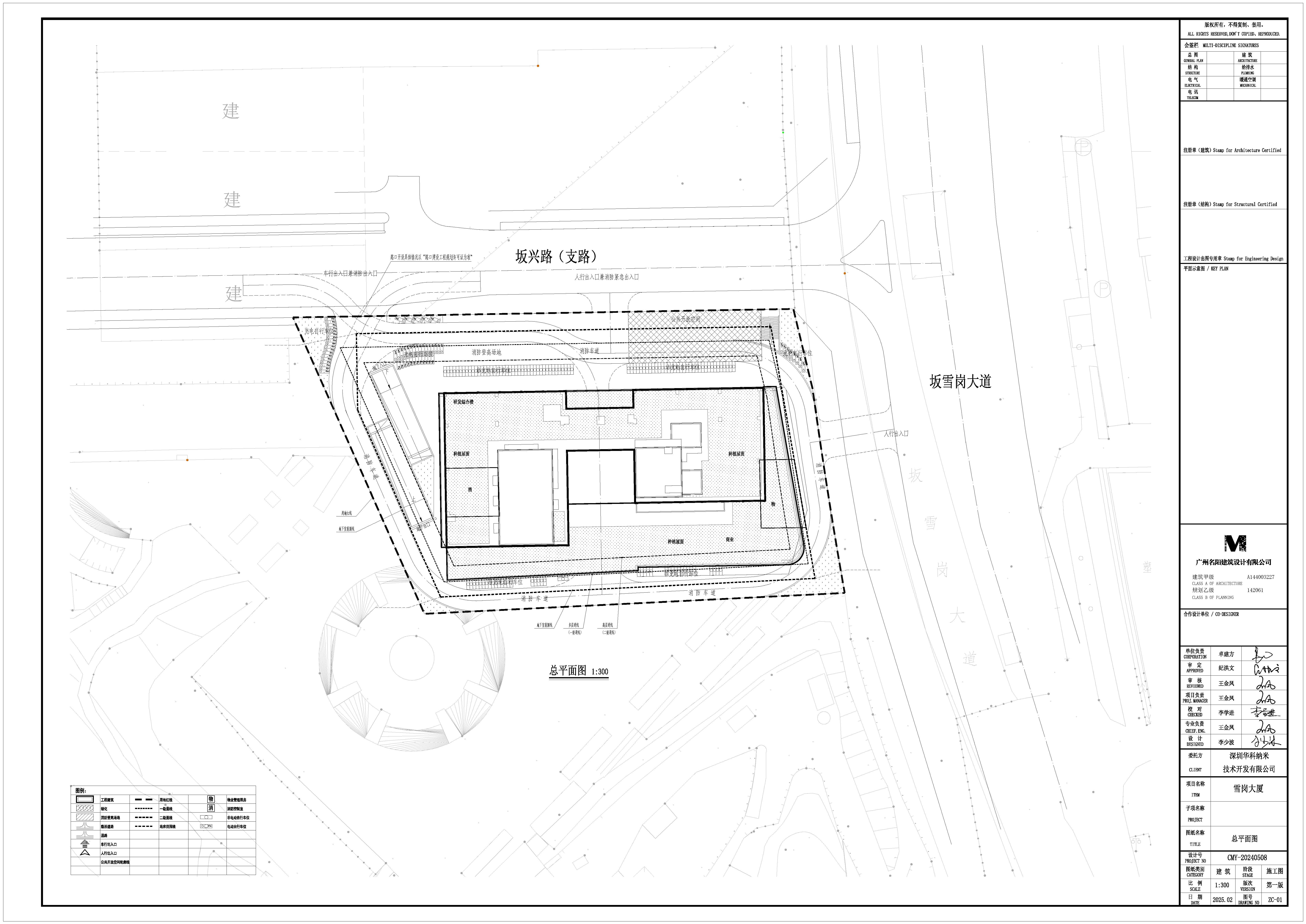
深圳华科纳米技术开发有限公司向我局申请办理雪岗大厦(G03307-0033号宗地)的建设工程设计文件修改备案,该项目位于龙岗区坂田街道坂雪岗大道与坂兴路交界,用地单位于2025年3月10日取得《建设工程规划许可证》(建字第4403072025GG0054521号)。本次申请修改内容涉及已批总平面图相关内容调整(详见云线圈注部分),现根据《中华人民共和国城乡规划法》相关规定予以公示。
一、主要修改内容
(一)项目车行出入口,调整人行出入口位置。
(二)调整充电自行车位布局。
(三)图纸日期,版次及图号调整。
二、公示时间
公示期为10个工作日(2025年8月8日至2025年8月21日)。
三、公示地点
(一)深圳市规划和自然资源局龙岗管理局
地址:龙岗区龙城街道行政路2号建设大厦一楼大厅
(二)项目现场
地址:龙岗区坂田街道坂雪岗大道与坂兴路交界
(三)网上展示
1.深圳市规划和自然资源局网站
网址:http://pnr.sz.gov.cn
2.深圳市规划和自然资源局龙岗管理局网站
网址:http://pnr.sz.gov.cn/lg/
四、意见反馈
公示期间如对该事项有意见或建议,请使用真实姓名及有效联系方式将意见通过邮寄或电子邮件反馈:
(一)邮寄。邮寄地址:深圳市龙岗区龙城街道行政路2号建设大厦812室;收件人:建筑设计科1105室,陈工;联系电话:0755-28918619;并在信封上注明“雪岗大厦(G03307-0033号宗地)公示意见”字样(日期以邮戳为准)。
(二)电子邮件。请将意见发至邮箱:laishh@pnr.sz.gov.cn,邮件标题请按“雪岗大厦(G03307-0033号宗地)公示意见+姓名(或单位名称)”格式填写。
公众意见征询截止日期为2025年8月21日。深圳市规划和自然资源局龙岗管理局将按相关规定对公众意见进行研究和处理。
特此公示。
附件:1.修改前总平面图
2.修改后总平面图
深圳市规划和自然资源局龙岗管理局
2025年8月8日
相关文档:
